Ref : 1414235-0V_MA
Vente Bureau
BUREAUX - A VENDRE - LIMONEST - 483 m² - Stationnements nombreux
Limonest (69760)
Prix : 1 014 300 €
Surface 483 m²
Description du bien
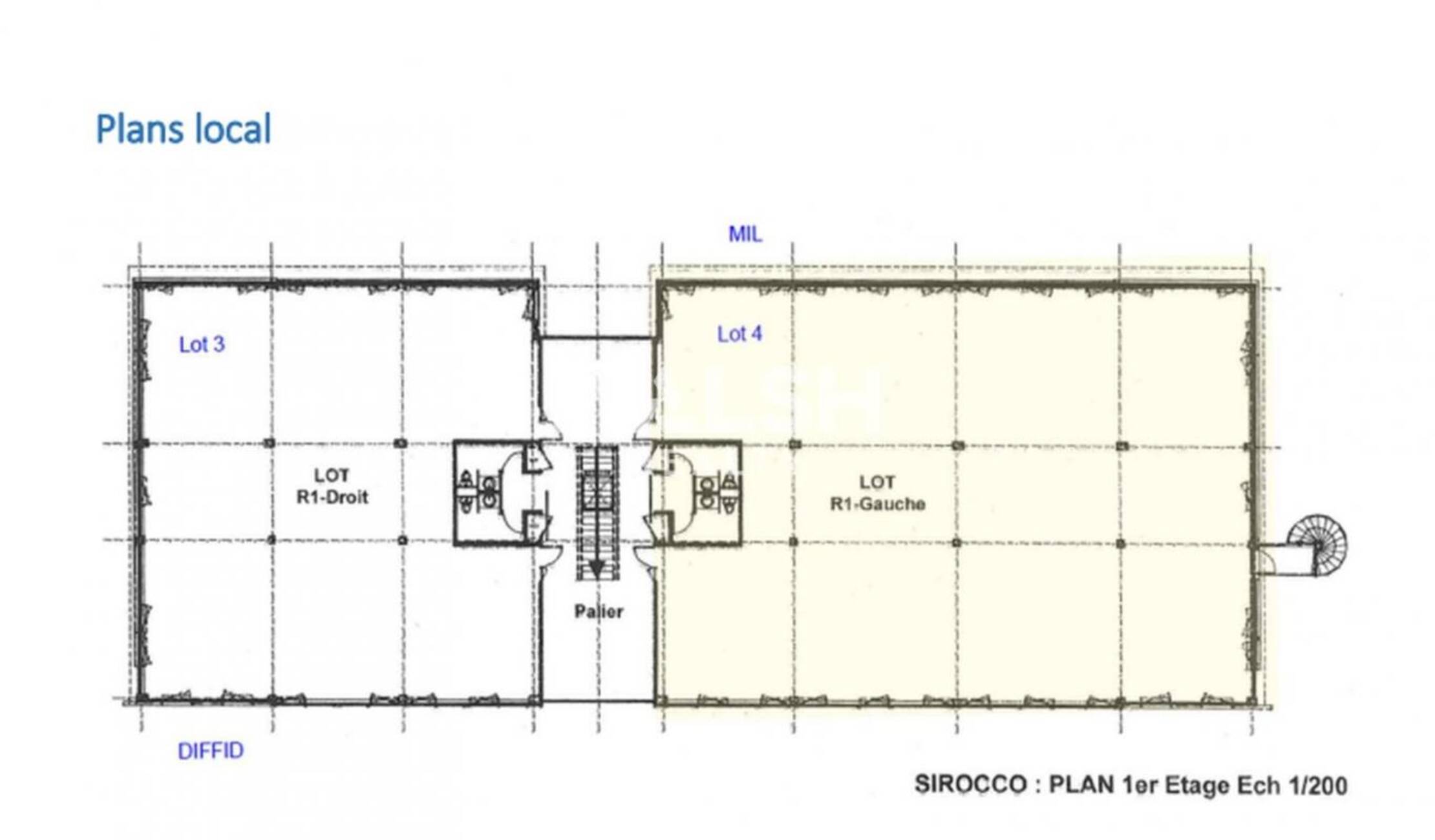
MALSH Realty vous propose à la vente des bureaux d'une surface de 483 m², idéalement situés à Limonest à proximité immédiate de l'A6, au sein d'un parc tertiaire sécurisé et arboré. Ces locaux modernes, cloisonnés et lumineux bénéficient d'une climatisation intégrale et offrent un cadre de travail confortable et fonctionnel. Le bien dispose en outre de 13 places de stationnement extérieures privatives.
Prestations du bien
- Composition :
- Grand accueil
- Bureaux individuels
- Grands bureaux
- Salle de réunion
- Open spaces
- Cuisine & réfectoire
- Local technique & archive
- Prestations :
- Situés dans un immeuble tertiaire sécurisé et arboré
- Bureaux cloisonnés et lumineux
- Cloisons vitrées et portes tout hauteur
- Climatisation réversibles
- Faux plafond
- Dalles moquette au sol
- Luminaires encastrés
- Fenêtres doubles vitrages et stores
- Câblage RJ45 et fibre optique
- Baie de brassage
- Cuisine
- Interphone
Informations financières
- Taxe foncière : 10 124 €
Ce local professionnel vous est présenté par
Vous souhaitez nous joindre ?
Surfaces des locaux
| Étage | Bâtiment | Type | Surfaces | Disponibilité | Loyer | Charges | Honoraires | Fiscal | Bail | Révision annuelle | Prix | Charges | Honoraires | Fiscal | Paiement Loyer | lot | Coworking | |
|---|---|---|---|---|---|---|---|---|---|---|---|---|---|---|---|---|---|---|
| R+1 | Bureaux | 483 | 31 décembre 2025 | 2 100 m² HD | 1 663,17 HT/An | 4% HT du montant de la vente HDE, à la charge de l'acquéreur | Droits d'enregistrement | |||||||||||
| Parkings | - | 31 décembre 2025 | 6 500 l'unité HD | 4% HT du montant de la vente HDE, à la charge de l'acquéreur | Droits d'enregistrement | |||||||||||||
| Total | 483 m² | |||||||||||||||||
| 13 | ||||||||||||||||||
Localisation et accessibilité
- Bus: Lignes 3, 10, 21 et 61
- SCNF: Dardilly-Le-Jubin (Gare SNCF)
- Metro: Place Guichard (Ligne B), Hôtel de Ville L. Pradel
- Autoroute: A 89 (Entrée Techlid-Pôle Économique), A 6 (Entrée), A 6 (Sortie), A 89 (Sortie Techlid-Pôle Économique)
| Étage | Bâtiment | Type | Surfaces | Disponibilité | Loyer | Charges | Honoraires | Fiscal | Bail | Révision annuelle | Prix | Charges | Honoraires | Fiscal | Paiement Loyer | lot | Coworking | |
|---|---|---|---|---|---|---|---|---|---|---|---|---|---|---|---|---|---|---|
| R+1 | Bureaux | 483 | 31 décembre 2025 | 2 100 m² HD | 1 663,17 HT/An | 4% HT du montant de la vente HDE, à la charge de l'acquéreur | Droits d'enregistrement | |||||||||||
| Parkings | - | 31 décembre 2025 | 6 500 l'unité HD | 4% HT du montant de la vente HDE, à la charge de l'acquéreur | Droits d'enregistrement | |||||||||||||
| Total | 483 m² | |||||||||||||||||
| 13 | ||||||||||||||||||




















































































