Ref : 2146686-0V_MA
Vente Bureau
À VENDRE - Bureaux 148 m² - LYON 9
Lyon (69009)
Prix : 580 000 €
Surface 148 m²
Description du bien
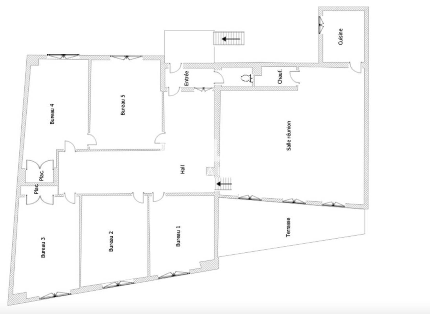
MALSH Realty vous propose des bureaux à vendre d'une surface de 148 m², idéalement situés sur les quais de Saône dans le 9e arrondissement, à seulement 10 minutes à pied du métro D. Traversant et lumineux, ce bien bénéficie d'un fort potentiel d'aménagement pour s'adapter à vos besoins professionnels.
Prestations du bien
- Composition :
- 5 bureaux
- 1 open space
- 1 balcon donnant sur la Saône
- 2 locaux d'archive
- 1 Sanitaire et une douche
- 2 portes palière
- Prestations :
- Bureaux lumineux et traversant
- Vue sur la Saône
- Interphone
- Cloisonnés
- Belle hauteur sous-plafond
- Faux plafond
- Moquette au sol
- Cablage RJ45 et fibre optique
- Chauffage collectif gaz
Informations financières
- Taxe foncière : 2 400 €
Ce local professionnel vous est présenté par
Vous souhaitez nous joindre ?
Surfaces des locaux
| Étage | Bâtiment | Type | Surfaces | Disponibilité | Loyer | Charges | Honoraires | Fiscal | Bail | Révision annuelle | Prix | Charges | Honoraires | Fiscal | Paiement Loyer | lot | Coworking | |
|---|---|---|---|---|---|---|---|---|---|---|---|---|---|---|---|---|---|---|
| R+1 | Bureaux | 148 | Immédiate | 3 918,92 HD/m² | 4 000 /an | 5 % HT du prix de vente HDE, à la charge de l'acquéreur, payables à la signature de l'acte | Droits d'enregistrement | |||||||||||
| Total | 148 m² |
Localisation et accessibilité
- SCNF: Lyon-Gorge-de-Loup (SNCF)
Ces biens pourraient vous intéresser
| Étage | Bâtiment | Type | Surfaces | Disponibilité | Loyer | Charges | Honoraires | Fiscal | Bail | Révision annuelle | Prix | Charges | Honoraires | Fiscal | Paiement Loyer | lot | Coworking | |
|---|---|---|---|---|---|---|---|---|---|---|---|---|---|---|---|---|---|---|
| R+1 | Bureaux | 148 | Immédiate | 3 918,92 HD/m² | 4 000 /an | 5 % HT du prix de vente HDE, à la charge de l'acquéreur, payables à la signature de l'acte | Droits d'enregistrement | |||||||||||
| Total | 148 m² |

















































