Ref : 3448219226_TH
Vente Bureau
BUREAUX A VENDRE
Mauguio (34130)
Prix : 900 000 €
Surface 400 m²
Description du bien
Thélène Entreprises vous propose à la vente, 400m² de bureaux de standing en excellent état.
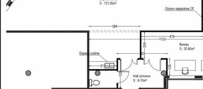
Les locaux sont sur 2 niveaux, 100m² en RDC et 300m² au 1er étage, l'ensemble répond aux normes d'accessibilités PMR et ERP grâce a son ascenseur privatif.
Le RDC est agencé avec un espace accueil et 3 bureaux.
Le R+1 est agencé avec un grand espace ouvert, une cuisine équipée et 6 grands espaces, tous sont équipés de domotique et de point d'eau privatif.
Les locaux sont climatisés et disposent également de la fibre optique.
6 places de parking privatives sont attribuées avec ces bureaux, et de nombreuses places de parking sont accessibles à proximité du bâtiment.
Prix de vente : 1 000 000 Euros net vendeur
Honoraires de commercialisation : 5 % HT du prix de vente net vendeur
Ces locaux pourraient parfaitement convenir pour des activités tertiaires, médicales, paramédicales ou de formation.
Retrouvez l'ensemble de nos offres sur notre site : https://www.thelene-entreprises.com/
THELENE ENTREPRISES 04.67.66.43.44
contact@thelene-entreprises.com
Retrouvez l'ensemble de nos offres sur notre site : https://www.thelene-entreprises.com/
Les informations sur les risques auxquels ce bien est exposé sont disponibles sur le site Géorisques : www.georisques.gouv.fr
Prestations du bien
- Accès PMR
- Ascenseur
- Banque d'accueil
- Bureaux cloisonnés
- Climatisation réversible
- Douche(s)
- Etablissement recevant du public
- Fibre optique
- Kitchenette
- Luminaires faux plafond
- Nbre Parkings extérieurs privatifs : 6
- Salle de réunion
- Sanitaires privés
Informations financières
- Taxe foncière : 2 447 €
Ce local professionnel vous est présenté par
Vous souhaitez nous joindre ?
Localisation et accessibilité
| Batiment - Lot | Etage | Type | Surface | Prix vente | Prix vente m2 | Parkings | Disponibilité |

















































