Ref : 1232246-0V_MA
Vente Bureau
MONTLUEL - Bureaux de 904 m² divisibles à partir de 93 m² - A VENDRE
Montluel (01120)
Prix : 2 035 644 €
Surface 904 m²
Divisible dès 92 m²
Description du bien
MALSH Realty & Property vous propose à la vente, 904 m² de bureaux divisibles dès 93 m², situés au sein d'un nouveau parc à Montluel. Des stationnements complètent ce bien.
Prestations du bien
- Moquette au sol
- Faux plafond
- Luminaires encastrés
- Sanitaires équipés
- Chauffage et rafraichissement d'air réversible
- Ascenseur
Ce local professionnel vous est présenté par
Vous souhaitez nous joindre ?
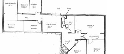
Surfaces des locaux
| Étage | Bâtiment | Type | Surfaces | Disponibilité | Loyer | Charges | Honoraires | Fiscal | Bail | Révision annuelle | Prix | Charges | Honoraires | Fiscal | Paiement Loyer | lot | Coworking | |
|---|---|---|---|---|---|---|---|---|---|---|---|---|---|---|---|---|---|---|
| 3 | Bureaux | 197,02 | Immédiate | 2 255,58 HT/m² | 5 % HT du prix de vente HT à la charge de l'acquéreur, payables à la signature de l'acte | TVA | Bureau 03 | |||||||||||
| 3 | Bureaux | 189,62 | Immédiate | 2 226,57 HT/m² | 5 % HT du prix de vente HT à la charge de l'acquéreur, payables à la signature de l'acte | TVA | Bureau 06 | |||||||||||
| 3 | Bureaux | 189,62 | Immédiate | 2 226,57 HT/m² | 5 % HT du prix de vente HT à la charge de l'acquéreur, payables à la signature de l'acte | TVA | Bureau 09 | |||||||||||
| 3 | Bureaux | 122,23 | Immédiate | 2 263,63 HT/m² | 5 % HT du prix de vente HT à la charge de l'acquéreur, payables à la signature de l'acte | TVA | Bureau 05 | |||||||||||
| 3 | Bureaux | 113,02 | Immédiate | 2 343,69 HT/m² | 5 % HT du prix de vente HT à la charge de l'acquéreur, payables à la signature de l'acte | TVA | Bureau 02 | |||||||||||
| 3 | Bureaux | 92,99 | Immédiate | 2 207,54 HT/m² | 5 % HT du prix de vente HT à la charge de l'acquéreur, payables à la signature de l'acte | TVA | Bureau 01 | |||||||||||
| Total | 904,5 m² |
Localisation et accessibilité
- SCNF: Gare de Montluel à 300 m
- Autoroute: A proximité immédiate de l'A42 (sortie 5.1 Monluel La Boisse) à 1 km
| Étage | Bâtiment | Type | Surfaces | Disponibilité | Loyer | Charges | Honoraires | Fiscal | Bail | Révision annuelle | Prix | Charges | Honoraires | Fiscal | Paiement Loyer | lot | Coworking | |
|---|---|---|---|---|---|---|---|---|---|---|---|---|---|---|---|---|---|---|
| 3 | Bureaux | 197,02 | Immédiate | 2 255,58 HT/m² | 5 % HT du prix de vente HT à la charge de l'acquéreur, payables à la signature de l'acte | TVA | Bureau 03 | |||||||||||
| 3 | Bureaux | 189,62 | Immédiate | 2 226,57 HT/m² | 5 % HT du prix de vente HT à la charge de l'acquéreur, payables à la signature de l'acte | TVA | Bureau 06 | |||||||||||
| 3 | Bureaux | 189,62 | Immédiate | 2 226,57 HT/m² | 5 % HT du prix de vente HT à la charge de l'acquéreur, payables à la signature de l'acte | TVA | Bureau 09 | |||||||||||
| 3 | Bureaux | 122,23 | Immédiate | 2 263,63 HT/m² | 5 % HT du prix de vente HT à la charge de l'acquéreur, payables à la signature de l'acte | TVA | Bureau 05 | |||||||||||
| 3 | Bureaux | 113,02 | Immédiate | 2 343,69 HT/m² | 5 % HT du prix de vente HT à la charge de l'acquéreur, payables à la signature de l'acte | TVA | Bureau 02 | |||||||||||
| 3 | Bureaux | 92,99 | Immédiate | 2 207,54 HT/m² | 5 % HT du prix de vente HT à la charge de l'acquéreur, payables à la signature de l'acte | TVA | Bureau 01 | |||||||||||
| Total | 904,5 m² |







































