Ref : 95_0061_IN
Vente Bureau
BUREAUX A VENDRE
Montmagny (95360)
Prix : 5 264 000 €
Surface 1 600 m²
Divisible dès 56 m²
Description du bien
VENTE EN VEFA ! INVEST CONSEIL vous propose des Bureaux de 56 m² à 177 m² situé Montmagny.
Les + :
- Programme neuf aux portes du Grand Paris, dans un parc multi activités
- Agglomération dynamique en pleine expansion
- Excellent réseau de transport
- Bureaux avec balcon
- Places de parking incluses dans le prix de vente
Prestations du bien
- Accès PMR
- Ascenseur
- Borne de rechargement électrique :
- Câblage RJ45
- Chauffage réversible
- Climatisation réversible
- Double vitrage
- Fibre optique
- Goulotte technique
- Immeuble indépendant
- Label BREEAM Very Good
- Open Space
- Parking en sous sol
- RT 2012
- Sanitaires communs
- Sanitaires PMR
- Type de chauffage : électrique
- Panneaux photovoltaïques
- Terrasse/Balcon
- Immeuble accessible 24h/24 7J/7, accessible par système d'interphone ou vidéophone.
- L'immeuble comporte des vestiaires/douches Hommes et Femmes.
- Local à vélo dédié aux 2 roues
Ce local professionnel vous est présenté par
Vous souhaitez nous joindre ?
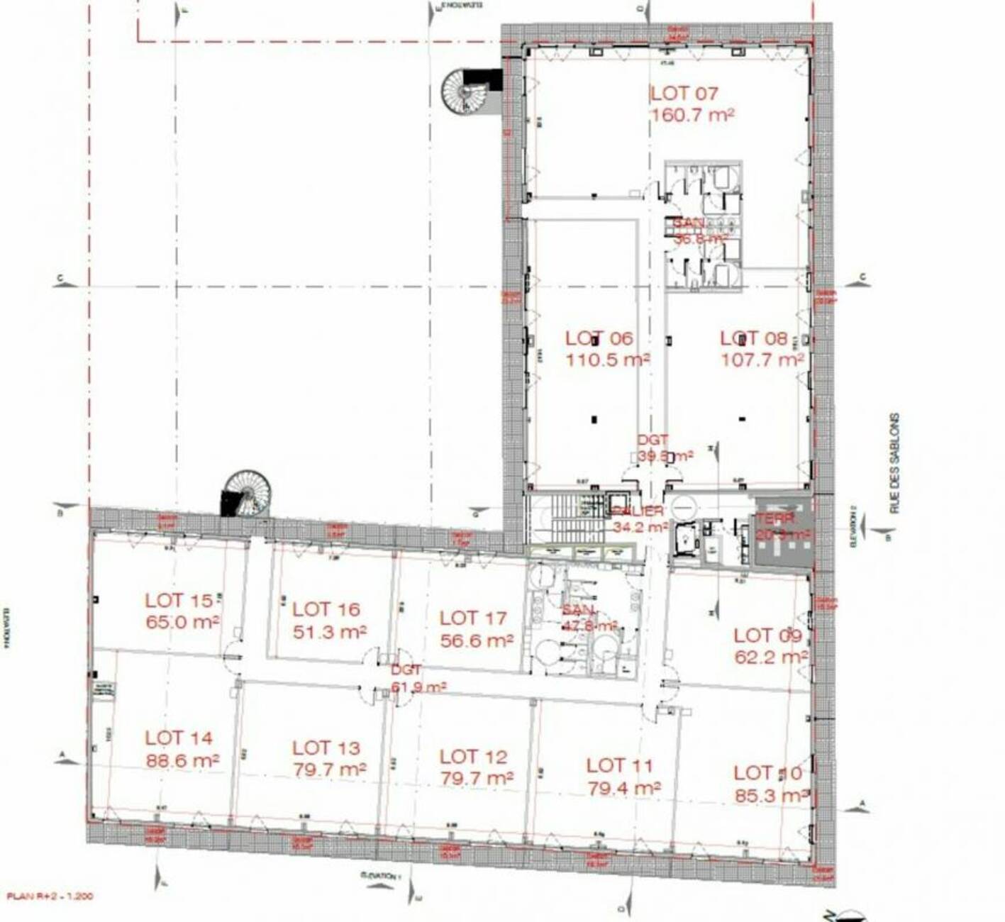
Surfaces des locaux
| Lot | Etage | Balcon | Surface totale (en m2) | Parking | Prix de vente net vendeur HT | Disponibilité |
| Lot 3 | 110,3 (R+1) | 21,9 | 132,2 | 3 | 434 955,00 € | 1T 2026 |
| Lot 4 | 145,10 (R+1) | 28,9 | 174 | 4 | 572 184,00 € | 1T 2026 |
| Lot 5 | 128,3 (R+1) | 25,5 | 153,8 | 3 | 505 936,00 € | 1T 2026 |
| Lot 6 | 110,5 (R+2) | 11,8 | 122,3 | 3 | 408 868,00 € | 1T 2026 |
| Lot 7 | 160,7 (R+2) | 17,1 | 177,8 | 4 | 590 636,00 € | 1T 2026 |
| Lot 8 | 112,8 (R+2) | 12 | 124,8 | 3 | 417 378,00 € | 1T 2026 |
| Lot 9 | 62,2 (R+2) | 6,6 | 68,8 | 2 | 235 444,00 € | 1T 2026 |
| Lot 10 | 85,3 (R+2) | 9,1 | 94,4 | 2 | 322 884,00 € | 1T 2026 |
| Lot 11 | 79,4 (R+2) | 8,5 | 87,9 | 2 | 300 551,00 € | 1T 2026 |
| Lot 12 | 79,7 (R+2) | 8,5 | 88,2 | 2 | 301 686,00 € | 1T 2026 |
| Lot 13 | 79,7 (R+2) | 8,5 | 88,2 | 2 | 301 686,00 € | 1T 2026 |
| Lot 14 | 88,5 (R+2) | 9,4 | 97,9 | 2 | 334 997,00 € | 1T 2026 |
| Lot 15 | 64 (R+2) | 6,8 | 70,8 | 2 | 242 257,00 € | 1T 2026 |
| Lot 16 | 51,3 (R+2) | 5,5 | 56,8 | 2 | 196 766,00 € | 1T 2026 |
| Lot 17 | 56,6 (R+2) | 6 | 62,9 | 2 | 214 246,00 € | 1T 2026 |
Localisation et accessibilité
- Bus: Ligne H - Gare d'Epinay sur Sein
Nombreuses lignes de bus
Tramway T11 - Autoroute: N328 / N14 / N1
Ces biens pourraient vous intéresser
| Lot | Etage | Balcon | Surface totale (en m2) | Parking | Prix de vente net vendeur HT | Disponibilité |
| Lot 3 | 110,3 (R+1) | 21,9 | 132,2 | 3 | 434 955,00 € | 1T 2026 |
| Lot 4 | 145,10 (R+1) | 28,9 | 174 | 4 | 572 184,00 € | 1T 2026 |
| Lot 5 | 128,3 (R+1) | 25,5 | 153,8 | 3 | 505 936,00 € | 1T 2026 |
| Lot 6 | 110,5 (R+2) | 11,8 | 122,3 | 3 | 408 868,00 € | 1T 2026 |
| Lot 7 | 160,7 (R+2) | 17,1 | 177,8 | 4 | 590 636,00 € | 1T 2026 |
| Lot 8 | 112,8 (R+2) | 12 | 124,8 | 3 | 417 378,00 € | 1T 2026 |
| Lot 9 | 62,2 (R+2) | 6,6 | 68,8 | 2 | 235 444,00 € | 1T 2026 |
| Lot 10 | 85,3 (R+2) | 9,1 | 94,4 | 2 | 322 884,00 € | 1T 2026 |
| Lot 11 | 79,4 (R+2) | 8,5 | 87,9 | 2 | 300 551,00 € | 1T 2026 |
| Lot 12 | 79,7 (R+2) | 8,5 | 88,2 | 2 | 301 686,00 € | 1T 2026 |
| Lot 13 | 79,7 (R+2) | 8,5 | 88,2 | 2 | 301 686,00 € | 1T 2026 |
| Lot 14 | 88,5 (R+2) | 9,4 | 97,9 | 2 | 334 997,00 € | 1T 2026 |
| Lot 15 | 64 (R+2) | 6,8 | 70,8 | 2 | 242 257,00 € | 1T 2026 |
| Lot 16 | 51,3 (R+2) | 5,5 | 56,8 | 2 | 196 766,00 € | 1T 2026 |
| Lot 17 | 56,6 (R+2) | 6 | 62,9 | 2 | 214 246,00 € | 1T 2026 |



























