Ref : 3448219763_TH
Vente Bureau
BUREAUX A VENDRE
Montpellier (34070)
Prix : 500 000 €
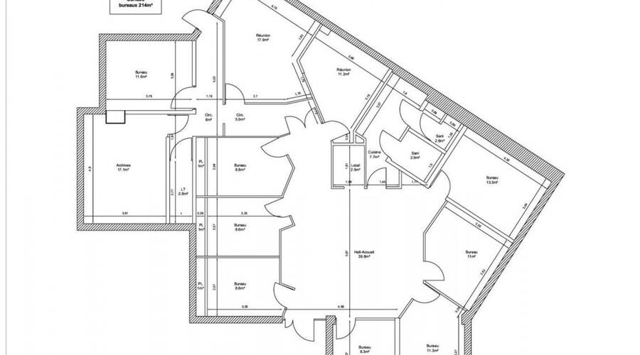
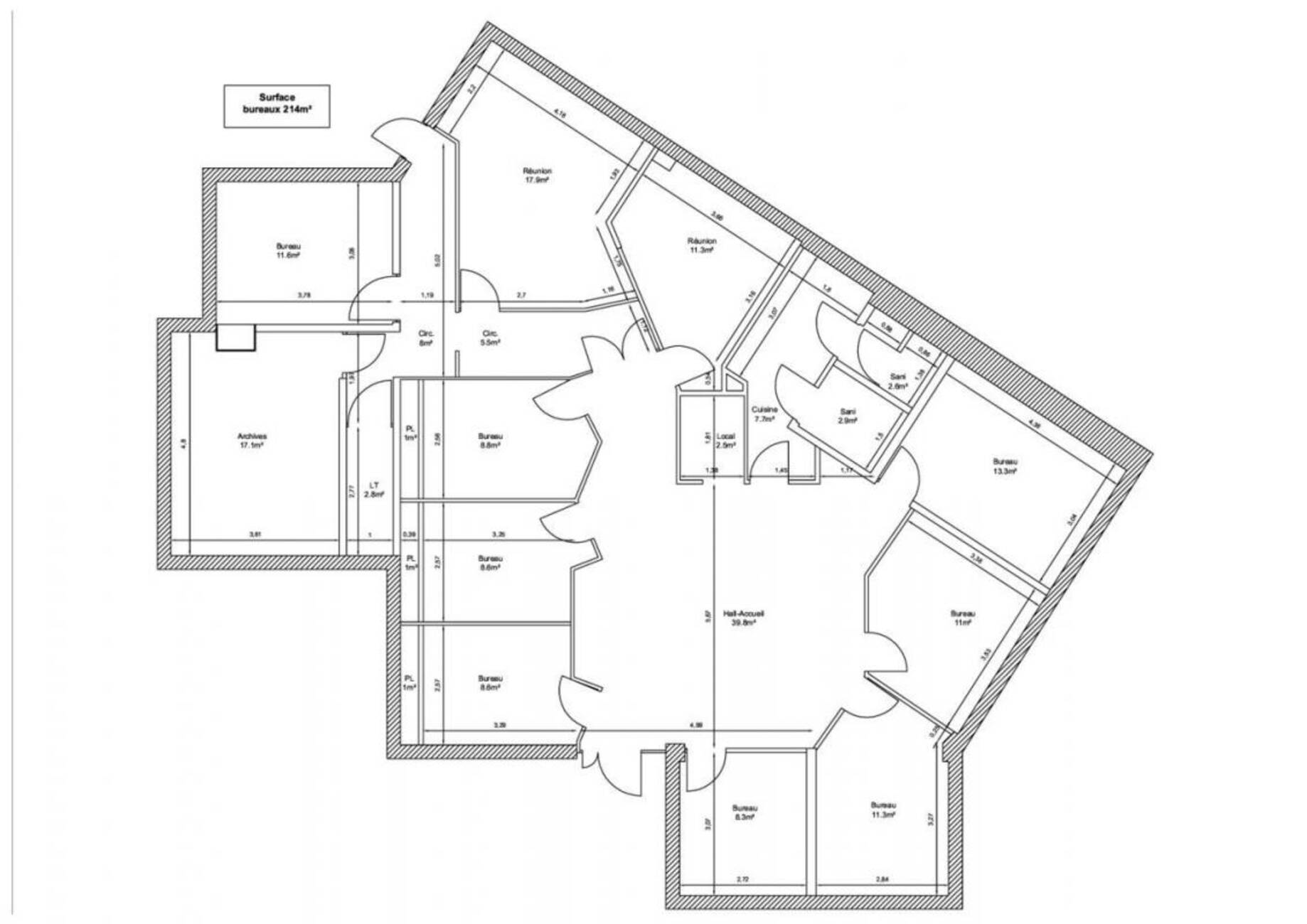
Surface 214 m²
Description du bien
À proximité immédiate d'un centre commercial, de l'A709 et des transports,
THELENE ENTREPRISES vous propose à l'acquisition, une surface de bureaux de 227 m² environ en rez-de-chaussée, répartie comme suit :
Un hall d'accueil, 8 bureaux cloisonnés, 2 salles de réunion, une pièce d'archive de 17 m², une kitchenette et 2 sanitaires.
Locaux bien desservis (bus à 400 m) et disposant de 6 de places de stationnement privatives extérieur sur un parking clos et sécurisé.
Prix de vente : 500 000 Euros (honoraires de commercialisation en sus : 5% ht du prix de vente)
Retrouvez l'ensemble de nos offres sur notre site : https://www.thelene-entreprises.com/
Les informations sur les risques auxquels ce bien est exposé sont disponibles sur le site Géorisques : www.georisques.gouv.fr
Prestations du bien
- Climatisation
- Climatisation réversible
- Nbre Parkings extérieurs : 6
- Parking Extérieur
- Rez-de-chaussée
Informations financières
- Taxe foncière : 4 886 €
Ce local professionnel vous est présenté par
Vous souhaitez nous joindre ?
Localisation et accessibilité
| Batiment - Lot | Etage | Type | Surface | Prix vente | Prix vente m2 | Parkings | Disponibilité |

















































