Ref : 3448219918_TH
Vente Bureau
BUREAUX A VENDRE
Montpellier (34080)
Prix : 290 000 €
Surface 198 m²
Description du bien
Thélène Entreprises vous propose à la vente les murs d'un ensemble de bureaux idéalement situé sur un axe à très fort passage.
D'une superficie totale d'environ 198 m², cet ensemble bénéficie d'une configuration fonctionnelle et lumineuse, parfaitement adaptée à de nombreuses activités tertiaires ou de services.
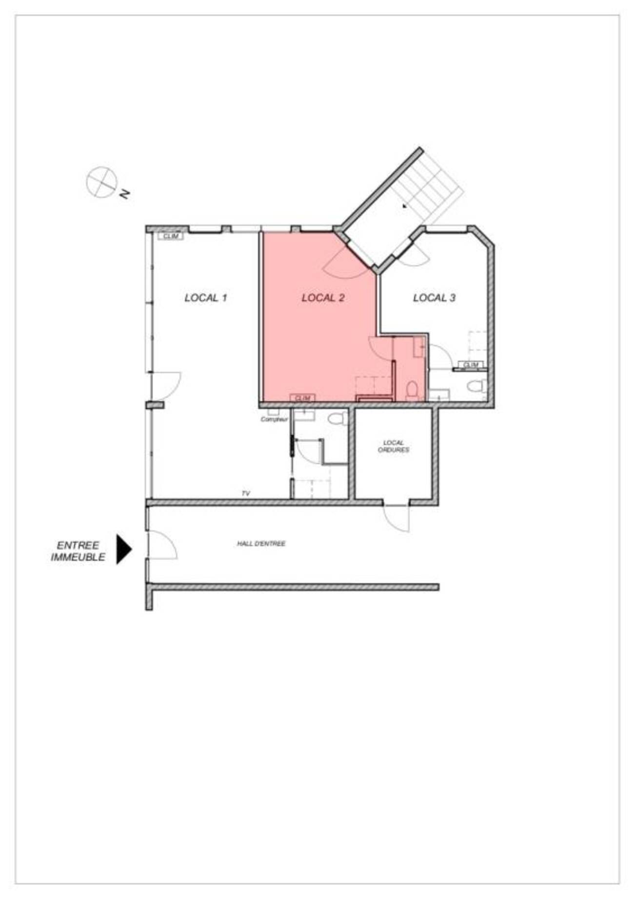
Composition des locaux :
Local 1 (R+1) : 38 m²
Local 2 ((R+1) : 23 m²
Local 3 ((R+1) : 27 m²
Local 4 et 5 : 50 m²
Local 6 (RDC) : 30 m²
Local 7 (RDC) : 30 m²
Atouts majeurs :
Emplacement stratégique sur un axe majeur à forte visibilité
Fort potentiel locatif ou d'exploitation directe
Accès facile et stationnement à proximité
Répartition modulable permettant plusieurs configurations d'usage
Conditions financières :
Prix de vente : 290 000 Euros net vendeur
Honoraires d'agence : 5 % HT du prix de vente (à la charge de l'acquéreur)
Retrouvez l'ensemble de nos offres sur notre site : https://www.thelene-entreprises.com/
Les informations sur les risques auxquels ce bien est exposé sont disponibles sur le site Géorisques : www.georisques.gouv.fr
Prestations du bien
- Bureaux cloisonnés
- Eclairage
- Hall accueillant
- Nombre de bureaux :
Informations financières
- Taxe foncière : 4 585 €
Ce local professionnel vous est présenté par
Vous souhaitez nous joindre ?
Localisation et accessibilité
- Bus: Tramway ligne 3 au pied du bâtiment
Bus ligne 10 / 15 à 500 m
| Batiment - Lot | Etage | Type | Surface | Prix vente | Prix vente m2 | Parkings | Disponibilité |














































