Ref : 84_1484_BA
Vente Bureau
BUREAUX A VENDRE
Sorgues (84700)
Prix : 333 900 €
Surface 120 m²
Description du bien
Vos futurs bureaux en zone commerciale d'Auchan Nord!
Projet de construction de bureaux neufs dans la zone commerciale d'Avignon NORD à proximité immédiate du PIXEL et de tous les accès routiers (voie rapide / A7 Sortie Avignon Nord)
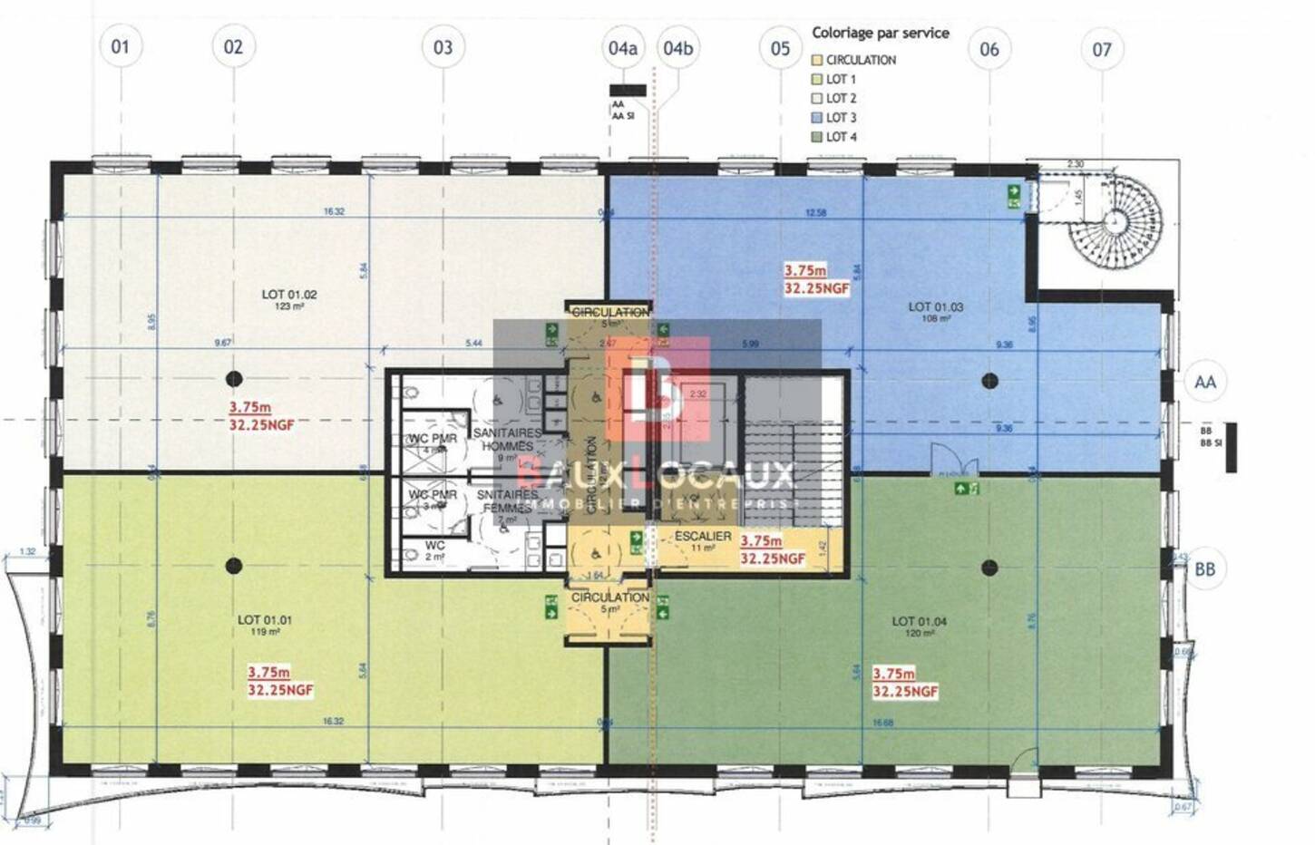
Bureaux de standing en R+1 du bâtiment C d' environ 120m².
Vous disposerez également des parties communes de l'étage qui sont composées de 2 douches PMR, 3WC dont 2 PMR, ainsi qu'un sas avec escalier et passage de circulation.
Ce projet se tourne vers une approche environnementale positive pour la planète avec la démarche BDM "Bâtiment Durable Méditerranée" niveau Argent (https://www.envirobatdm.eu/)
Les bureaux seront livrés bruts, hors d'eau hors d'air.
Places de parking privatives incluses
NB / Cette surface est également disponible en R+2 et R+3
Prestations du bien
- Livré Brut
- Hors d'eau / Hors d'air
- Sanitaires PMR
- Douches PMR
- Parking 94 places comprenant 2 places PMR
- 3 bornes électriques + 5 covoiturages
- Ascenseur
Ce local professionnel vous est présenté par
Vous souhaitez nous joindre ?
Localisation et accessibilité
- Autoroute: Proximité immédiate sortie autoroute A7 Avignon Nord
| Batiment - Lot | Etage | Type | Surface | Prix vente | Prix vente m2 | Parkings | Disponibilité |






























