Ref : 1112187-0_MA
Vente Bureau
Bureau Tarare
Tarare (69170)
Prix : 4 639 991 €
Surface 2 351 m²
Divisible dès 93 m²
Description du bien
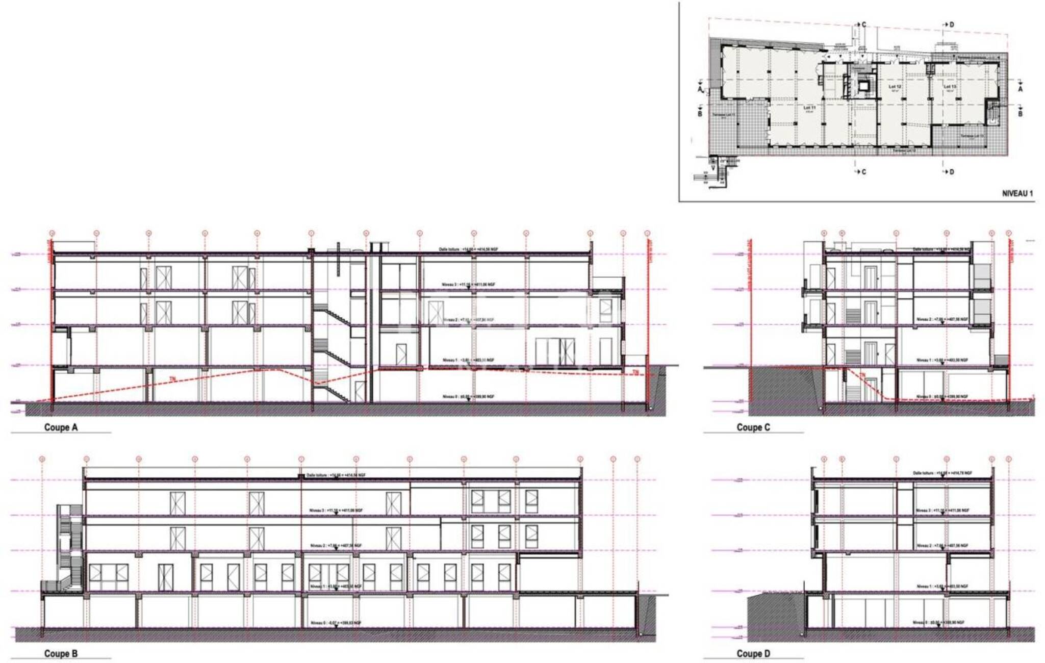
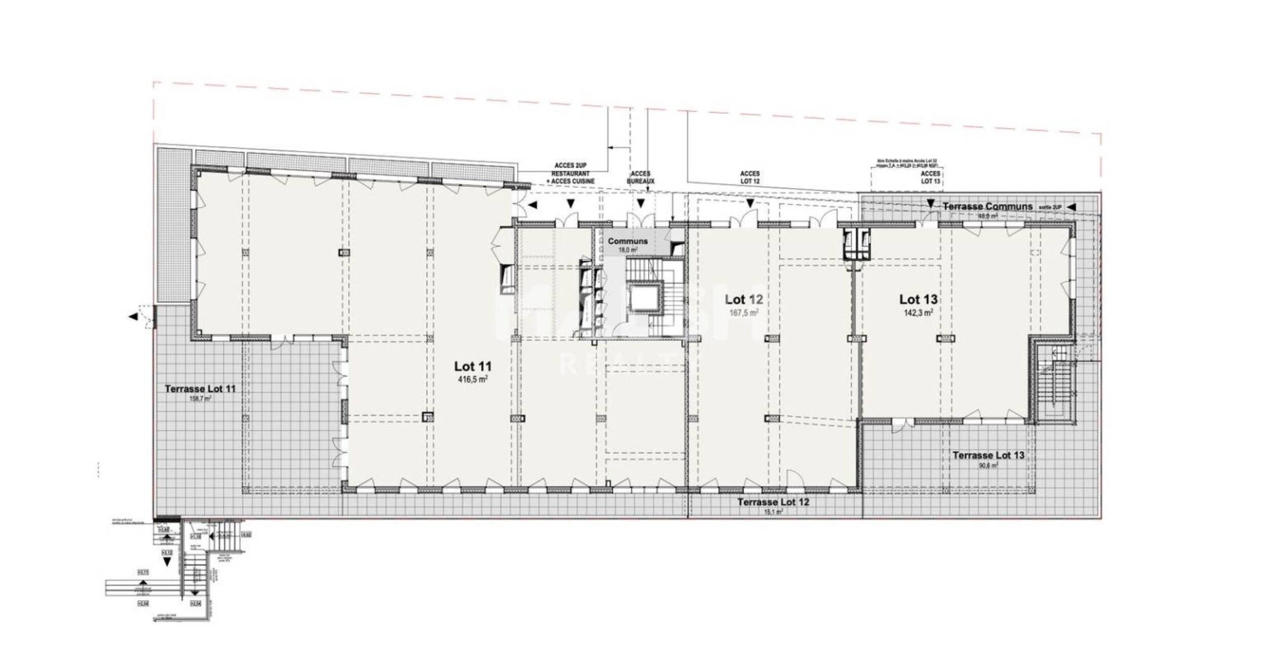
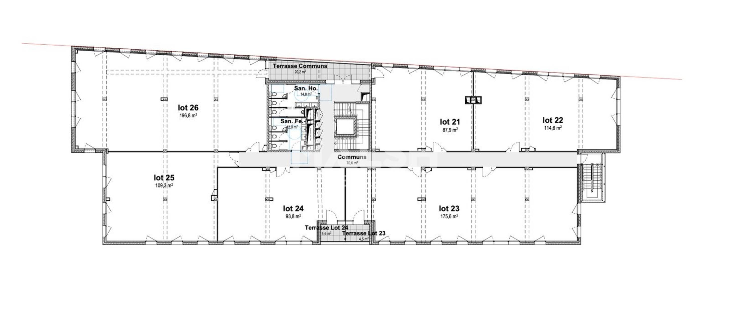
MALSH Realty & Property vous propose à la vente ou à la location, au sein d'un nouveau parc d'activités composé de 6 bâtiments à Tarare, nous vous proposons à la vente ou à la location, des bureaux et showroom neufs d'une surface totale d'environ 2351 m² divisibles en plusieurs lots à partir de 93 m². Terrasse selon les lots. Belle visibilité sur la rue de Paris, nombreux stationnements en commun.
Disponible immédiatement !
Prestations du bien
- Structure métallique par bac acier - étanchéité multicouche
- Bardage panneaux sandwich
- Menuiserie Alu avec rupture de pont thermique
- Dalle béton quartz pouvant recevoir un sol collé
- Prestations bureaux :
- Moquette en dalles au sol
- Faux-plafond luminaires encastrés
- Mur doublage de type placostyl, finition peinture
- Plinthe périphérique double compartiment, avec courant fort installé et courant faible à la charge de l'acquéreur
- Chauffage et rafraîchissement par ventilo-convecteurs réversibles, en cassettes encastrées dans les faux-plafonds, reliés à une pompe à chaleur
- Sanitaires complets en parties communes
- Accessibilité terrasse suivant les lots
- Places de parking en commun
Informations financières
- Bail : commercial 3-6-9 ans
- Informations location :
Conditions particulières à la vente : Refacturation de la taxe d'urbanisme à prévoir
- Dépôt de garantie : 3 mois de loyer HT/HC
Ce local professionnel vous est présenté par
Vous souhaitez nous joindre ?
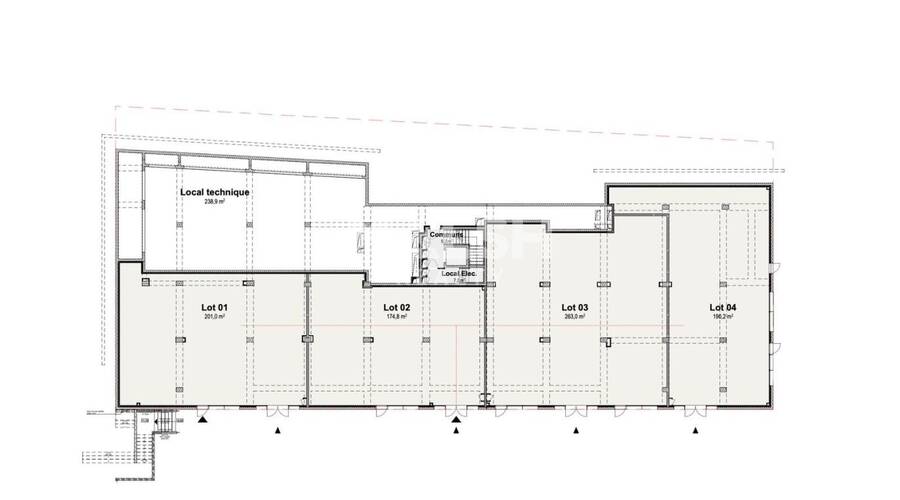
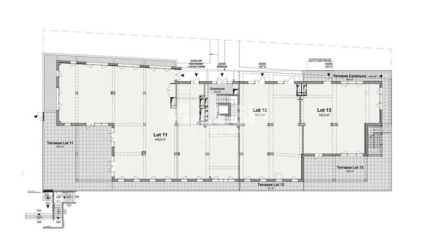
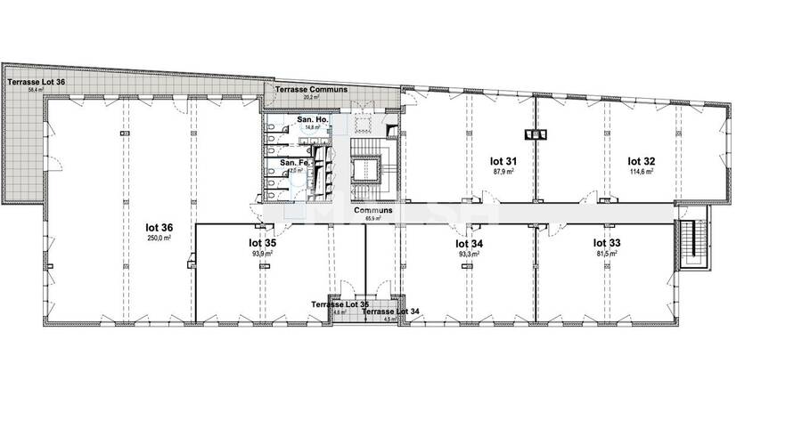
Surfaces des locaux
| Étage | Bâtiment | Type | Surfaces | Disponibilité | Loyer | Charges | Honoraires | Fiscal | Bail | Révision annuelle | Prix | Charges | Honoraires | Fiscal | Paiement Loyer | lot | Coworking | |
|---|---|---|---|---|---|---|---|---|---|---|---|---|---|---|---|---|---|---|
| 3 | Bureaux | 285,57 | Immédiate | 150 HT/HC/m²/an | 15 % HT du loyer annuel HT/HC à la charge du preneur, payables à la signature du bail | T.V.A. (20%) | commercial 3-6-9 ans | ILAT Indice des Loyers des Activités Tertiaires | 1 949,99 HT/m² | 3 % HT du prix de vente HT, à la charge de l'acquéreur | TVA | Trimestriel d'avance | G36 | |||||
| 3 | Bureaux | 130,9 | Immédiate | 150,01 HT/HC/m²/an | 15 % HT du loyer annuel HT/HC à la charge du preneur, payables à la signature du bail | T.V.A. (20%) | commercial 3-6-9 ans | ILAT Indice des Loyers des Activités Tertiaires | 2 000,08 HT/m² | 3 % HT du prix de vente HT, à la charge de l'acquéreur | TVA | Trimestriel d'avance | G32 | |||||
| 3 | Bureaux | 107,26 | Immédiate | 155 HT/HC/m²/an | 15 % HT du loyer annuel HT/HC à la charge du preneur, payables à la signature du bail | T.V.A. (20%) | commercial 3-6-9 ans | ILAT Indice des Loyers des Activités Tertiaires | 1 999,99 HT/m² | 3 % HT du prix de vente HT, à la charge de l'acquéreur | TVA | Trimestriel d'avance | G35 | |||||
| 3 | Bureaux | 106,57 | Immédiate | 155,01 HT/HC/m²/an | 15 % HT du loyer annuel HT/HC à la charge du preneur, payables à la signature du bail | T.V.A. (20%) | commercial 3-6-9 ans | ILAT Indice des Loyers des Activités Tertiaires | 2 000,08 HT/m² | 3 % HT du prix de vente HT, à la charge de l'acquéreur | TVA | Trimestriel d'avance | G34 | |||||
| 3 | Bureaux | 100,41 | Immédiate | 140 HT/HC/m²/an | 15 % HT du loyer annuel HT/HC à la charge du preneur, payables à la signature du bail | T.V.A. (20%) | commercial 3-6-9 ans | ILAT Indice des Loyers des Activités Tertiaires | 1 899,92 HT/m² | 3 % HT du prix de vente HT, à la charge de l'acquéreur | TVA | Trimestriel d'avance | G31 | |||||
| 3 | Bureaux | 93,1 | Immédiate | 154,99 HT/HC/m²/an | 15 % HT du loyer annuel HT/HC à la charge du preneur, payables à la signature du bail | T.V.A. (20%) | commercial 3-6-9 ans | ILAT Indice des Loyers des Activités Tertiaires | 1 999,9 HT/m² | 3 % HT du prix de vente HT, à la charge de l'acquéreur | TVA | Trimestriel d'avance | G33 | |||||
| 2 | Bureaux | 224,8 | Immédiate | 150 HT/HC/m²/an | 15 % HT du loyer annuel HT/HC à la charge du preneur, payables à la signature du bail | T.V.A. (20%) | commercial 3-6-9 ans | ILAT Indice des Loyers des Activités Tertiaires | 1 950 HT/m² | 3 % HT du prix de vente HT, à la charge de l'acquéreur | TVA | Trimestriel d'avance | G26 | |||||
| 2 | Bureaux | 200,58 | Immédiate | 155 HT/HC/m²/an | 15 % HT du loyer annuel HT/HC à la charge du preneur, payables à la signature du bail | T.V.A. (20%) | commercial 3-6-9 ans | ILAT Indice des Loyers des Activités Tertiaires | 2 000,03 HT/m² | 3 % HT du prix de vente HT, à la charge de l'acquéreur | TVA | Trimestriel d'avance | G23 | |||||
| 2 | Bureaux | 130,9 | Immédiate | 150,01 HT/HC/m²/an | 15 % HT du loyer annuel HT/HC à la charge du preneur, payables à la signature du bail | T.V.A. (20%) | commercial 3-6-9 ans | ILAT Indice des Loyers des Activités Tertiaires | 2 000,08 HT/m² | 3 % HT du prix de vente HT, à la charge de l'acquéreur | TVA | Trimestriel d'avance | G22 | |||||
| 2 | Bureaux | 124,85 | Immédiate | 155 HT/HC/m²/an | 15 % HT du loyer annuel HT/HC à la charge du preneur, payables à la signature du bail | T.V.A. (20%) | commercial 3-6-9 ans | ILAT Indice des Loyers des Activités Tertiaires | 2 000,02 HT/m² | 3 % HT du prix de vente HT, à la charge de l'acquéreur | TVA | Trimestriel d'avance | G25 | |||||
| 2 | Bureaux | 107,15 | Immédiate | 155 HT/HC/m²/an | 15 % HT du loyer annuel HT/HC à la charge du preneur, payables à la signature du bail | T.V.A. (20%) | commercial 3-6-9 ans | ILAT Indice des Loyers des Activités Tertiaires | 1 999,92 HT/m² | 3 % HT du prix de vente HT, à la charge de l'acquéreur | TVA | Trimestriel d'avance | G24 | |||||
| 2 | Bureaux | 100,41 | Immédiate | 140 HT/HC/m²/an | 15 % HT du loyer annuel HT/HC à la charge du preneur, payables à la signature du bail | T.V.A. (20%) | commercial 3-6-9 ans | ILAT Indice des Loyers des Activités Tertiaires | 1 899,92 HT/m² | 3 % HT du prix de vente HT, à la charge de l'acquéreur | TVA | Trimestriel d'avance | G21 | |||||
| RDC | Show Room | 263 | Immédiate | 140 HT/HC/m²/an | 15 % HT du loyer annuel HT/HC à la charge du preneur, payables à la signature du bail | T.V.A. (20%) | commercial 3-6-9 ans | ILAT Indice des Loyers des Activités Tertiaires | 1 800 HT/m² | 3 % HT du prix de vente HT, à la charge de l'acquéreur | TVA | Trimestriel d'avance | G03 | |||||
| RDC | Show Room | 201 | Immédiate | 140 HT/HC/m²/an | 15 % HT du loyer annuel HT/HC à la charge du preneur, payables à la signature du bail | T.V.A. (20%) | commercial 3-6-9 ans | ILAT Indice des Loyers des Activités Tertiaires | 1 800 HT/m² | 3 % HT du prix de vente HT, à la charge de l'acquéreur | TVA | Trimestriel d'avance | G01 | |||||
| RDC | Show Room | 174,8 | Immédiate | 140 HT/HC/m²/an | 15 % HT du loyer annuel HT/HC à la charge du preneur, payables à la signature du bail | T.V.A. (20%) | commercial 3-6-9 ans | ILAT Indice des Loyers des Activités Tertiaires | 1 800 HT/m² | 3 % HT du prix de vente HT, à la charge de l'acquéreur | TVA | Trimestriel d'avance | G02 | |||||
| Total | 2 351,3 m² |
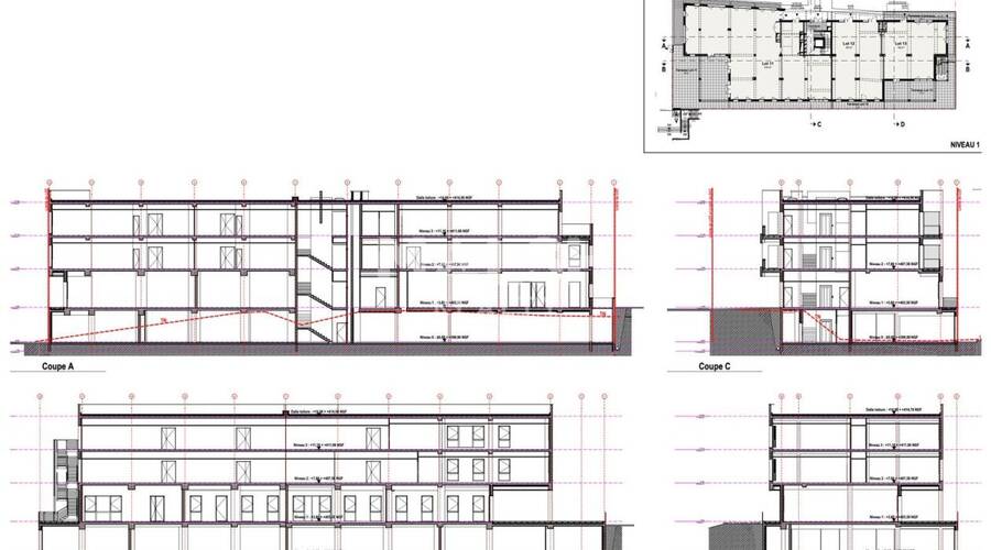
Localisation et accessibilité
- SCNF: Gare de Tarare à 2 km
- Autoroute: Autoroute A89 à proximité immédiate (sortie 34 à 5 km)
| Étage | Bâtiment | Type | Surfaces | Disponibilité | Loyer | Charges | Honoraires | Fiscal | Bail | Révision annuelle | Prix | Charges | Honoraires | Fiscal | Paiement Loyer | lot | Coworking | |
|---|---|---|---|---|---|---|---|---|---|---|---|---|---|---|---|---|---|---|
| 3 | Bureaux | 285,57 | Immédiate | 150 HT/HC/m²/an | 15 % HT du loyer annuel HT/HC à la charge du preneur, payables à la signature du bail | T.V.A. (20%) | commercial 3-6-9 ans | ILAT Indice des Loyers des Activités Tertiaires | 1 949,99 HT/m² | 3 % HT du prix de vente HT, à la charge de l'acquéreur | TVA | Trimestriel d'avance | G36 | |||||
| 3 | Bureaux | 130,9 | Immédiate | 150,01 HT/HC/m²/an | 15 % HT du loyer annuel HT/HC à la charge du preneur, payables à la signature du bail | T.V.A. (20%) | commercial 3-6-9 ans | ILAT Indice des Loyers des Activités Tertiaires | 2 000,08 HT/m² | 3 % HT du prix de vente HT, à la charge de l'acquéreur | TVA | Trimestriel d'avance | G32 | |||||
| 3 | Bureaux | 107,26 | Immédiate | 155 HT/HC/m²/an | 15 % HT du loyer annuel HT/HC à la charge du preneur, payables à la signature du bail | T.V.A. (20%) | commercial 3-6-9 ans | ILAT Indice des Loyers des Activités Tertiaires | 1 999,99 HT/m² | 3 % HT du prix de vente HT, à la charge de l'acquéreur | TVA | Trimestriel d'avance | G35 | |||||
| 3 | Bureaux | 106,57 | Immédiate | 155,01 HT/HC/m²/an | 15 % HT du loyer annuel HT/HC à la charge du preneur, payables à la signature du bail | T.V.A. (20%) | commercial 3-6-9 ans | ILAT Indice des Loyers des Activités Tertiaires | 2 000,08 HT/m² | 3 % HT du prix de vente HT, à la charge de l'acquéreur | TVA | Trimestriel d'avance | G34 | |||||
| 3 | Bureaux | 100,41 | Immédiate | 140 HT/HC/m²/an | 15 % HT du loyer annuel HT/HC à la charge du preneur, payables à la signature du bail | T.V.A. (20%) | commercial 3-6-9 ans | ILAT Indice des Loyers des Activités Tertiaires | 1 899,92 HT/m² | 3 % HT du prix de vente HT, à la charge de l'acquéreur | TVA | Trimestriel d'avance | G31 | |||||
| 3 | Bureaux | 93,1 | Immédiate | 154,99 HT/HC/m²/an | 15 % HT du loyer annuel HT/HC à la charge du preneur, payables à la signature du bail | T.V.A. (20%) | commercial 3-6-9 ans | ILAT Indice des Loyers des Activités Tertiaires | 1 999,9 HT/m² | 3 % HT du prix de vente HT, à la charge de l'acquéreur | TVA | Trimestriel d'avance | G33 | |||||
| 2 | Bureaux | 224,8 | Immédiate | 150 HT/HC/m²/an | 15 % HT du loyer annuel HT/HC à la charge du preneur, payables à la signature du bail | T.V.A. (20%) | commercial 3-6-9 ans | ILAT Indice des Loyers des Activités Tertiaires | 1 950 HT/m² | 3 % HT du prix de vente HT, à la charge de l'acquéreur | TVA | Trimestriel d'avance | G26 | |||||
| 2 | Bureaux | 200,58 | Immédiate | 155 HT/HC/m²/an | 15 % HT du loyer annuel HT/HC à la charge du preneur, payables à la signature du bail | T.V.A. (20%) | commercial 3-6-9 ans | ILAT Indice des Loyers des Activités Tertiaires | 2 000,03 HT/m² | 3 % HT du prix de vente HT, à la charge de l'acquéreur | TVA | Trimestriel d'avance | G23 | |||||
| 2 | Bureaux | 130,9 | Immédiate | 150,01 HT/HC/m²/an | 15 % HT du loyer annuel HT/HC à la charge du preneur, payables à la signature du bail | T.V.A. (20%) | commercial 3-6-9 ans | ILAT Indice des Loyers des Activités Tertiaires | 2 000,08 HT/m² | 3 % HT du prix de vente HT, à la charge de l'acquéreur | TVA | Trimestriel d'avance | G22 | |||||
| 2 | Bureaux | 124,85 | Immédiate | 155 HT/HC/m²/an | 15 % HT du loyer annuel HT/HC à la charge du preneur, payables à la signature du bail | T.V.A. (20%) | commercial 3-6-9 ans | ILAT Indice des Loyers des Activités Tertiaires | 2 000,02 HT/m² | 3 % HT du prix de vente HT, à la charge de l'acquéreur | TVA | Trimestriel d'avance | G25 | |||||
| 2 | Bureaux | 107,15 | Immédiate | 155 HT/HC/m²/an | 15 % HT du loyer annuel HT/HC à la charge du preneur, payables à la signature du bail | T.V.A. (20%) | commercial 3-6-9 ans | ILAT Indice des Loyers des Activités Tertiaires | 1 999,92 HT/m² | 3 % HT du prix de vente HT, à la charge de l'acquéreur | TVA | Trimestriel d'avance | G24 | |||||
| 2 | Bureaux | 100,41 | Immédiate | 140 HT/HC/m²/an | 15 % HT du loyer annuel HT/HC à la charge du preneur, payables à la signature du bail | T.V.A. (20%) | commercial 3-6-9 ans | ILAT Indice des Loyers des Activités Tertiaires | 1 899,92 HT/m² | 3 % HT du prix de vente HT, à la charge de l'acquéreur | TVA | Trimestriel d'avance | G21 | |||||
| RDC | Show Room | 263 | Immédiate | 140 HT/HC/m²/an | 15 % HT du loyer annuel HT/HC à la charge du preneur, payables à la signature du bail | T.V.A. (20%) | commercial 3-6-9 ans | ILAT Indice des Loyers des Activités Tertiaires | 1 800 HT/m² | 3 % HT du prix de vente HT, à la charge de l'acquéreur | TVA | Trimestriel d'avance | G03 | |||||
| RDC | Show Room | 201 | Immédiate | 140 HT/HC/m²/an | 15 % HT du loyer annuel HT/HC à la charge du preneur, payables à la signature du bail | T.V.A. (20%) | commercial 3-6-9 ans | ILAT Indice des Loyers des Activités Tertiaires | 1 800 HT/m² | 3 % HT du prix de vente HT, à la charge de l'acquéreur | TVA | Trimestriel d'avance | G01 | |||||
| RDC | Show Room | 174,8 | Immédiate | 140 HT/HC/m²/an | 15 % HT du loyer annuel HT/HC à la charge du preneur, payables à la signature du bail | T.V.A. (20%) | commercial 3-6-9 ans | ILAT Indice des Loyers des Activités Tertiaires | 1 800 HT/m² | 3 % HT du prix de vente HT, à la charge de l'acquéreur | TVA | Trimestriel d'avance | G02 | |||||
| Total | 2 351,3 m² |
























































