Ref : 1120445-0V_MA
Vente Bureau
TASSIN - Bureaux à VENDRE - 420 m² divisibles à partir de 140 m²
Tassin-la-Demi-Lune (69160)
Prix : 1 029 000 €
Surface 420 m²
Divisible dès 140 m²
Description du bien
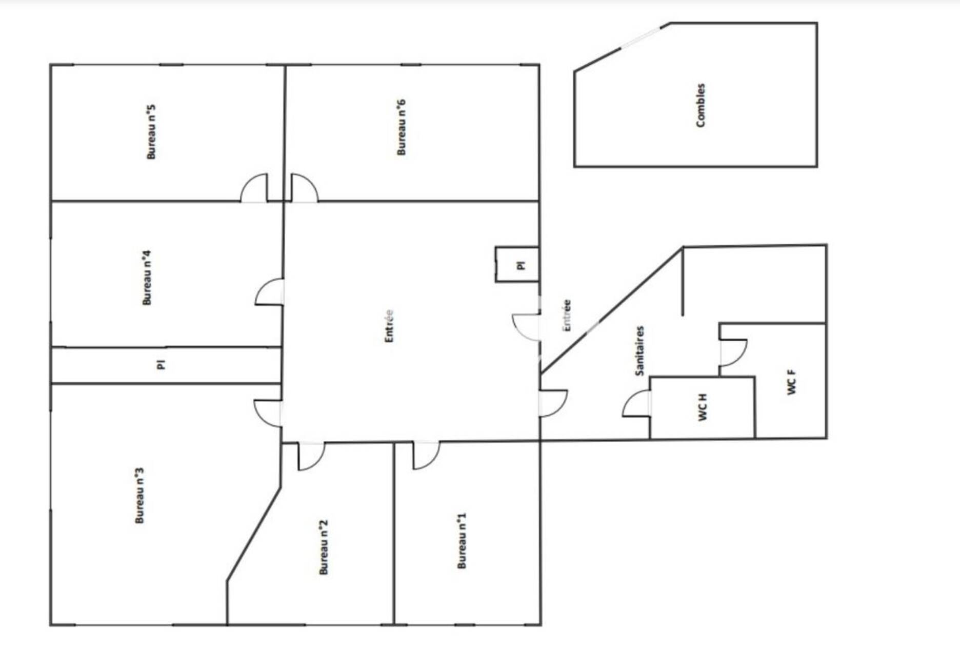
MALSH Realty vous propose à la vente des bureaux de 250 m² situés à Tassin-la-Demi-Lune. Ces bureaux sont entièrement équipés et cloisonnés, et divisibles à partir de 140 m². Profitez d'un open space, d'une salle de réunions, d'un espace détente, d'une cave et de bureaux individuels, au sein d'un parc sécurisé.
Prestations du bien
- PRESTATIONS :
- Sols, murs, plafond refaits à neuf
- Climatisation réversible
- Bureaux cloisonnés
- Faux plafond et faux parquet
- Luminaires encastrés LED
- Fenêtres doubles vitrages et stores
- Porte blindée
- Câblage informatique (RJ45)
- Baie de brassage
- Parc tertiaire sécurisé
- Façade immeuble rénovées
- Gardien
- COMPOSITION :
- Grande entrée/accueil
- Bureaux
- Salle de réunion
- Sanitaires
- Cave
- COMMUNS :
- Espace cuisine, cafétéria et salles de réunion communes disponibles
- Parkings extérieurs libres dans le parc
Informations financières
- Taxe foncière : 3 450 €
Ce local professionnel vous est présenté par
Vous souhaitez nous joindre ?
Surfaces des locaux
| Étage | Bâtiment | Type | Surfaces | Disponibilité | Loyer | Charges | Honoraires | Fiscal | Bail | Révision annuelle | Prix | Charges | Honoraires | Fiscal | Paiement Loyer | lot | Coworking | |
|---|---|---|---|---|---|---|---|---|---|---|---|---|---|---|---|---|---|---|
| 2 | Bureaux | 140 | Immédiate | 2 450 HD/m² | 3 % HT du prix de vente HDE, à la charge de l'acquéreur, payables à la signature de l'acte | Droits d'enregistrement | ||||||||||||
| 1 | Bureaux | 140 | Immédiate | 2 450 HD/m² | 3 % HT du prix de vente HDE, à la charge de l'acquéreur, payables à la signature de l'acte | Droits d'enregistrement | ||||||||||||
| Sous-Sol | Stockage | 140 | Immédiate | 750 HD/m² | 3 % HT du prix de vente HDE, à la charge de l'acquéreur, payables à la signature de l'acte | Droits d'enregistrement | ||||||||||||
| Parkings | - | Immédiate | 6 500 HD/unité | 3 % HT du prix de vente HDE, à la charge de l'acquéreur, payables à la signature de l'acte | Droits d'enregistrement | |||||||||||||
| Total | 420 m² | |||||||||||||||||
| 6 | ||||||||||||||||||
Localisation et accessibilité
- Bus: Bus lignes 72 et 5 Arrêt "Tassin Déperet"
- SCNF: Gare de Tassin à 5 min à pied
- Metro: Métro ligne D "Gorge de Loup"
- Autoroute: Autoroute A6 à proximité
Ces biens pourraient vous intéresser
| Étage | Bâtiment | Type | Surfaces | Disponibilité | Loyer | Charges | Honoraires | Fiscal | Bail | Révision annuelle | Prix | Charges | Honoraires | Fiscal | Paiement Loyer | lot | Coworking | |
|---|---|---|---|---|---|---|---|---|---|---|---|---|---|---|---|---|---|---|
| 2 | Bureaux | 140 | Immédiate | 2 450 HD/m² | 3 % HT du prix de vente HDE, à la charge de l'acquéreur, payables à la signature de l'acte | Droits d'enregistrement | ||||||||||||
| 1 | Bureaux | 140 | Immédiate | 2 450 HD/m² | 3 % HT du prix de vente HDE, à la charge de l'acquéreur, payables à la signature de l'acte | Droits d'enregistrement | ||||||||||||
| Sous-Sol | Stockage | 140 | Immédiate | 750 HD/m² | 3 % HT du prix de vente HDE, à la charge de l'acquéreur, payables à la signature de l'acte | Droits d'enregistrement | ||||||||||||
| Parkings | - | Immédiate | 6 500 HD/unité | 3 % HT du prix de vente HDE, à la charge de l'acquéreur, payables à la signature de l'acte | Droits d'enregistrement | |||||||||||||
| Total | 420 m² | |||||||||||||||||
| 6 | ||||||||||||||||||








































