Ref : 1286618-0V_MA
Vente Bureau
LA TOUR DE SALVAGNY - Bureaux dès 75,21 m² - A VENDRE - VEFA
Tour-de-Salvagny (69890)
Prix : 4 364 480 €
Surface 1 363 m²
Divisible dès 74 m²
Description du bien
MALSH Realty & Property vous propose plusieurs surfaces de bureaux dans un programme neuf situé au coeur du pôle économique de TECHLID, sur la commune de LA TOUR DE SALVAGNY.
Ce bien bénéficie d'un accès direct aux principaux axes routiers (A6 / A89).
La livraison de l'immeuble est prévu pour le 1er trimestre 2026.
Prestations du bien
- Plateau nu
- Faux plafond avec luminaire
- Climatisation chaud/froid géré par une centrale de traitement d'air de type double flux
- Sol à définir avec l'acquéreur
- Plinthe double compartiment en périphérique avec uniquement le courant fort
- BSO
- Terrasse extérieure selon les lots
- Ascenseur
- Sanitaires communs
- Places de parking en sous-sol (1 place/35 m²)
- Places de parking en libre accès
Ce local professionnel vous est présenté par
Vous souhaitez nous joindre ?
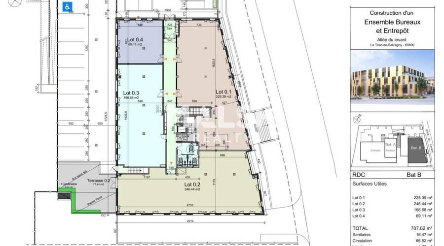
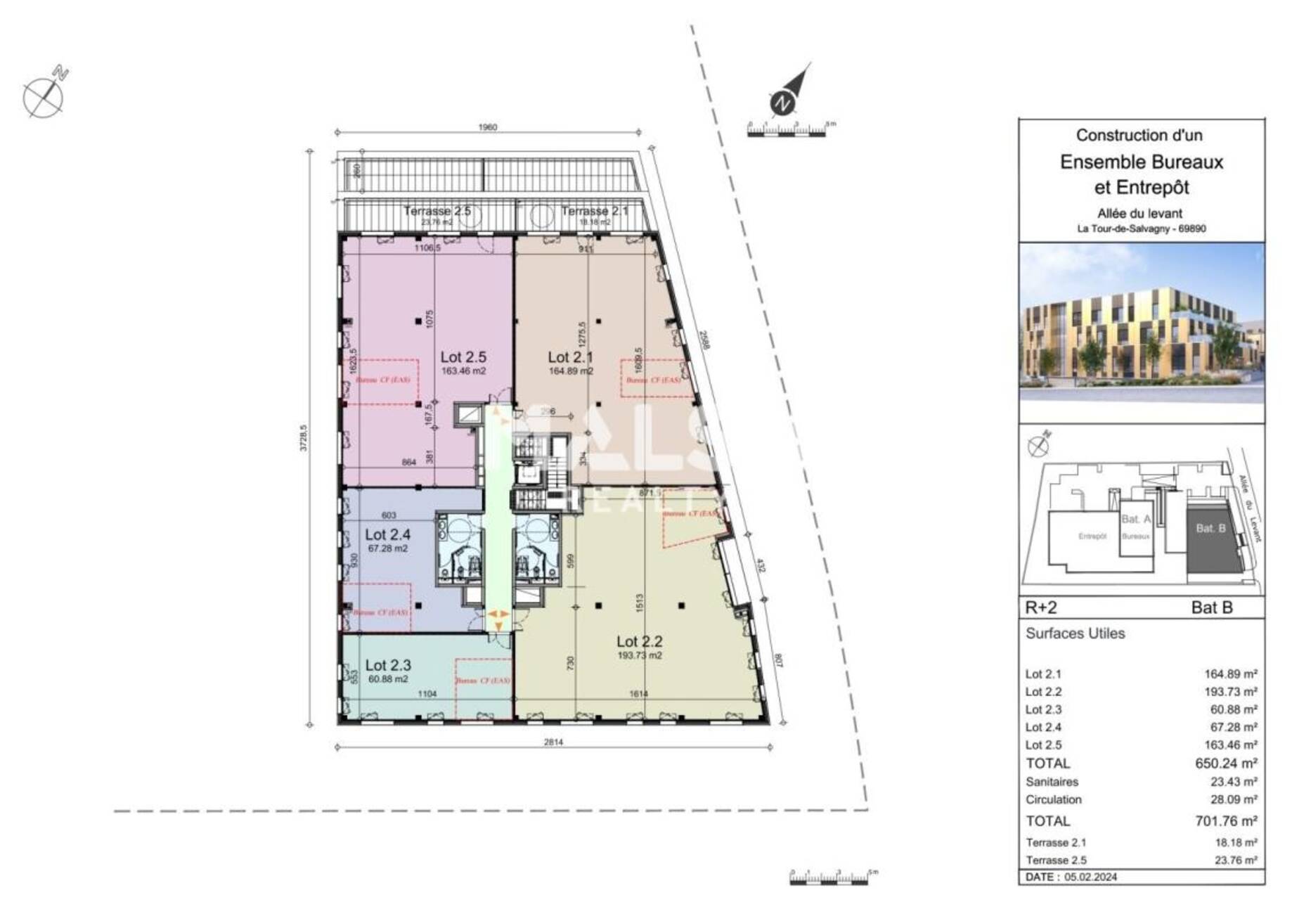
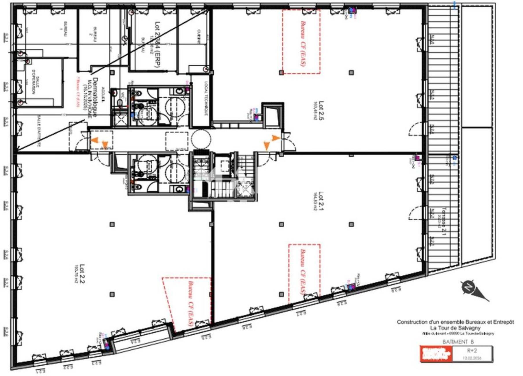
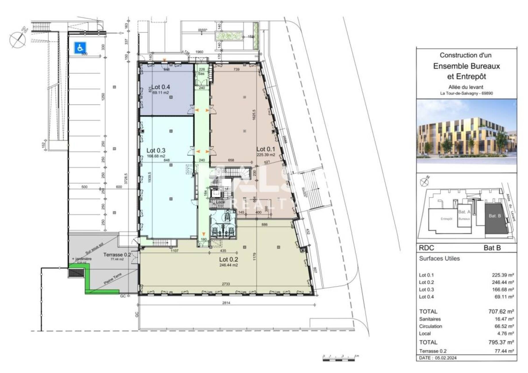
Surfaces des locaux
| Étage | Bâtiment | Type | Surfaces | Disponibilité | Loyer | Charges | Honoraires | Fiscal | Bail | Révision annuelle | Prix | Charges | Honoraires | Fiscal | Paiement Loyer | lot | Coworking | |
|---|---|---|---|---|---|---|---|---|---|---|---|---|---|---|---|---|---|---|
| 1 | Bureaux | 168,5 | Décembre 2025 | 2,5 % HT du prix de vente HT à la charge de l'acquéreur, payable à la signature de l'acte | TVA | |||||||||||||
| 1 | Terrasse | 19,31 | Décembre 2025 | 2,5 % HT du prix de vente HT à la charge de l'acquéreur, payable à la signature de l'acte | TVA | |||||||||||||
| Total Cellule R+1 - Lot 1.5 | Bureaux | 168,5 | Décembre 2025 | 3 200 m² HD | 2,5 % HT du prix de vente HT à la charge de l'acquéreur, payable à la signature de l'acte | TVA | R+1 - Lot 1.5 | |||||||||||
| 2 | Bureaux | 184,33 | Décembre 2025 | 2,5 % HT du prix de vente HT à la charge de l'acquéreur, payable à la signature de l'acte | TVA | |||||||||||||
| 2 | Terrasse | 18,18 | Décembre 2025 | 2,5 % HT du prix de vente HT à la charge de l'acquéreur, payable à la signature de l'acte | TVA | |||||||||||||
| Total Cellule R+2 - Lot 2.1 | Bureaux | 184,33 | Décembre 2025 | 3 200 m² HD | 2,5 % HT du prix de vente HT à la charge de l'acquéreur, payable à la signature de l'acte | TVA | R+2 - Lot 2.1 | |||||||||||
| 2 | Bureaux | 182,73 | Décembre 2025 | 2,5 % HT du prix de vente HT à la charge de l'acquéreur, payable à la signature de l'acte | TVA | |||||||||||||
| 2 | Terrasse | 23,76 | Décembre 2025 | 2,5 % HT du prix de vente HT à la charge de l'acquéreur, payable à la signature de l'acte | TVA | |||||||||||||
| Total Cellule R+2 - Lot 2.5 | Bureaux | 182,73 | Décembre 2025 | 3 200 m² HD | 2,5 % HT du prix de vente HT à la charge de l'acquéreur, payable à la signature de l'acte | TVA | R+2 - Lot 2.5 | |||||||||||
| RDC | Bureaux | 275,49 | Décembre 2025 | 2,5 % HT du prix de vente HT à la charge de l'acquéreur, payable à la signature de l'acte | TVA | |||||||||||||
| RDC | Terrasse | 77,44 | Décembre 2025 | 2,5 % HT du prix de vente HT à la charge de l'acquéreur, payable à la signature de l'acte | TVA | |||||||||||||
| Total Cellule RDC - Lot 0.2 | Bureaux | 275,49 | Décembre 2025 | 3 200 m² HD | 2,5 % HT du prix de vente HT à la charge de l'acquéreur, payable à la signature de l'acte | TVA | RDC - Lot 0.2 | |||||||||||
| 2 | Bureaux | 216,57 | Décembre 2025 | 3 200 m² HD | 2,5 % HT du prix de vente HT à la charge de l'acquéreur, payable à la signature de l'acte | TVA | Lot 2.2 | |||||||||||
| 2 | Bureaux | 75,21 | Décembre 2025 | 3 200 m² HD | 2,5 % HT du prix de vente HT à la charge de l'acquéreur, payable à la signature de l'acte | TVA | Lot 2.4 | |||||||||||
| 1 | Bureaux | 74,74 | Décembre 2025 | 3 200 m² HD | 2,5 % HT du prix de vente HT à la charge de l'acquéreur, payable à la signature de l'acte | TVA | Lot 1.3 | |||||||||||
| RDC | Bureaux | 186,33 | Décembre 2025 | 3 200 m² HD | 2,5 % HT du prix de vente HT à la charge de l'acquéreur, payable à la signature de l'acte | TVA | Lot 0.3 | |||||||||||
| Total | 1 502,59 m² |
Localisation et accessibilité
- Bus: Bus TCL lignes 86 et Ge4
| Étage | Bâtiment | Type | Surfaces | Disponibilité | Loyer | Charges | Honoraires | Fiscal | Bail | Révision annuelle | Prix | Charges | Honoraires | Fiscal | Paiement Loyer | lot | Coworking | |
|---|---|---|---|---|---|---|---|---|---|---|---|---|---|---|---|---|---|---|
| 1 | Bureaux | 168,5 | Décembre 2025 | 2,5 % HT du prix de vente HT à la charge de l'acquéreur, payable à la signature de l'acte | TVA | |||||||||||||
| 1 | Terrasse | 19,31 | Décembre 2025 | 2,5 % HT du prix de vente HT à la charge de l'acquéreur, payable à la signature de l'acte | TVA | |||||||||||||
| Total Cellule R+1 - Lot 1.5 | Bureaux | 168,5 | Décembre 2025 | 3 200 m² HD | 2,5 % HT du prix de vente HT à la charge de l'acquéreur, payable à la signature de l'acte | TVA | R+1 - Lot 1.5 | |||||||||||
| 2 | Bureaux | 184,33 | Décembre 2025 | 2,5 % HT du prix de vente HT à la charge de l'acquéreur, payable à la signature de l'acte | TVA | |||||||||||||
| 2 | Terrasse | 18,18 | Décembre 2025 | 2,5 % HT du prix de vente HT à la charge de l'acquéreur, payable à la signature de l'acte | TVA | |||||||||||||
| Total Cellule R+2 - Lot 2.1 | Bureaux | 184,33 | Décembre 2025 | 3 200 m² HD | 2,5 % HT du prix de vente HT à la charge de l'acquéreur, payable à la signature de l'acte | TVA | R+2 - Lot 2.1 | |||||||||||
| 2 | Bureaux | 182,73 | Décembre 2025 | 2,5 % HT du prix de vente HT à la charge de l'acquéreur, payable à la signature de l'acte | TVA | |||||||||||||
| 2 | Terrasse | 23,76 | Décembre 2025 | 2,5 % HT du prix de vente HT à la charge de l'acquéreur, payable à la signature de l'acte | TVA | |||||||||||||
| Total Cellule R+2 - Lot 2.5 | Bureaux | 182,73 | Décembre 2025 | 3 200 m² HD | 2,5 % HT du prix de vente HT à la charge de l'acquéreur, payable à la signature de l'acte | TVA | R+2 - Lot 2.5 | |||||||||||
| RDC | Bureaux | 275,49 | Décembre 2025 | 2,5 % HT du prix de vente HT à la charge de l'acquéreur, payable à la signature de l'acte | TVA | |||||||||||||
| RDC | Terrasse | 77,44 | Décembre 2025 | 2,5 % HT du prix de vente HT à la charge de l'acquéreur, payable à la signature de l'acte | TVA | |||||||||||||
| Total Cellule RDC - Lot 0.2 | Bureaux | 275,49 | Décembre 2025 | 3 200 m² HD | 2,5 % HT du prix de vente HT à la charge de l'acquéreur, payable à la signature de l'acte | TVA | RDC - Lot 0.2 | |||||||||||
| 2 | Bureaux | 216,57 | Décembre 2025 | 3 200 m² HD | 2,5 % HT du prix de vente HT à la charge de l'acquéreur, payable à la signature de l'acte | TVA | Lot 2.2 | |||||||||||
| 2 | Bureaux | 75,21 | Décembre 2025 | 3 200 m² HD | 2,5 % HT du prix de vente HT à la charge de l'acquéreur, payable à la signature de l'acte | TVA | Lot 2.4 | |||||||||||
| 1 | Bureaux | 74,74 | Décembre 2025 | 3 200 m² HD | 2,5 % HT du prix de vente HT à la charge de l'acquéreur, payable à la signature de l'acte | TVA | Lot 1.3 | |||||||||||
| RDC | Bureaux | 186,33 | Décembre 2025 | 3 200 m² HD | 2,5 % HT du prix de vente HT à la charge de l'acquéreur, payable à la signature de l'acte | TVA | Lot 0.3 | |||||||||||
| Total | 1 502,59 m² |












































