Ref : 91_018991_RX
Vente Entrepôt
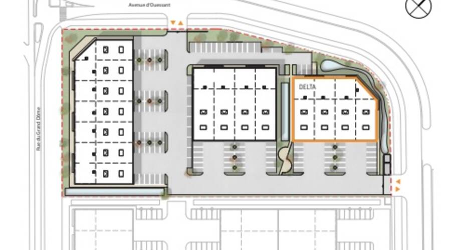
Entrepôt Villebon-sur-Yvette
Villebon-sur-Yvette (91140)
Prix : 4 917 675 €
Surface 2 465 m²
Divisible dès 490 m²
Prestations du bien
- - Conception certifiée aux règles RT 2012
- - Hauteur sous poutres : 7,50m
- - Hauteur sous mezzanine : 4m
- - Dallage industriel quartzé 3T/m²
- - Accès de plain-pied (portes sectionnelles 4mx4m)
- - Tarif jeune 50 KVA (tableau de répartition)
- - Sanitaires PMR
- - Contrôle d'accès (interphone portail +porte d'entrée)
- - Hôtel, restaurants, crèches, salles de sports, commerces à
- proximité immédiate.
Informations financières
- Taxe foncière : 22 050 €
Ce local professionnel vous est présenté par
Vous souhaitez nous joindre ?
Localisation et accessibilité
- Autoroute: En bordure de l'A10 sur l'axe Paris / Orléans
A 20 km au sud-ouest de Paris
A 10 km de l'aéroport d'Orly
Porte d'Orléans à 20 m
| Batiment - Lot | Activités-Accueil | Bureaux en R+1 | Surface globale |
| P 5.1 | 388 m² | 105 m² | 493 m² |
| P 5.2 | 388 m² | 105 m² | 493 m² |
| P 5.3 | 388 m² | 105 m² | 493 m² |
| P 5.4 | 388 m² | 105 m² | 493 m² |
| P 5.6 | 388 m² | 105 m² | 493 m² |












































