Ref : 3448220114_TH
Vente Local commercial
LOCAL COMMERCIAL NEUF A VENDRE OU A LOUER
Agde (34300)
Prix : 295 000 € HDE
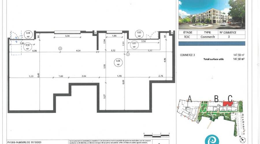
Surface 147 m²
Description du bien
Installez votre activité dans un local neuf en plein coeur d'Agde, à deux pas des commerces, services et flux piétons du centre-ville.
Disponible à l'acquisition en VEFA chez Thélène Entreprises :
Local commercial d'environ 147 m² en rez-de-chaussée d'une résidence neuve, idéalement situé en centre-ville d'Agde, dans un quartier animé et à fort passage.
Une opportunité d'acquérir un local neuf aux normes actuelles, dans une ville à fort potentiel entre mer et arrière-pays, à mi-chemin entre Montpellier et Béziers.
Livraison prévue T3 2027.
Prix de vente net vendeur : 2 000 Euros HT/m² Honoraires de commercialisation : 2,5 % HT du prix de vente
Retrouvez l'ensemble de nos offres sur notre site : https://www.thelene-entreprises.com/
Les informations sur les risques auxquels ce bien est exposé sont disponibles sur le site Géorisques : www.georisques.gouv.fr
Prestations du bien
- Eclairage
- Etablissement recevant du public
- Hall accueillant
Ce local professionnel vous est présenté par
Vous souhaitez nous joindre ?
Localisation et accessibilité
- Autoroute: A9
Ces biens pourraient vous intéresser
| Batiment - Lot | Etage | Type | Surface | Prix vente | Prix vente m2 | Parkings | Disponibilité |



































