Ref : 2032581-0_MA
Vente Local commercial
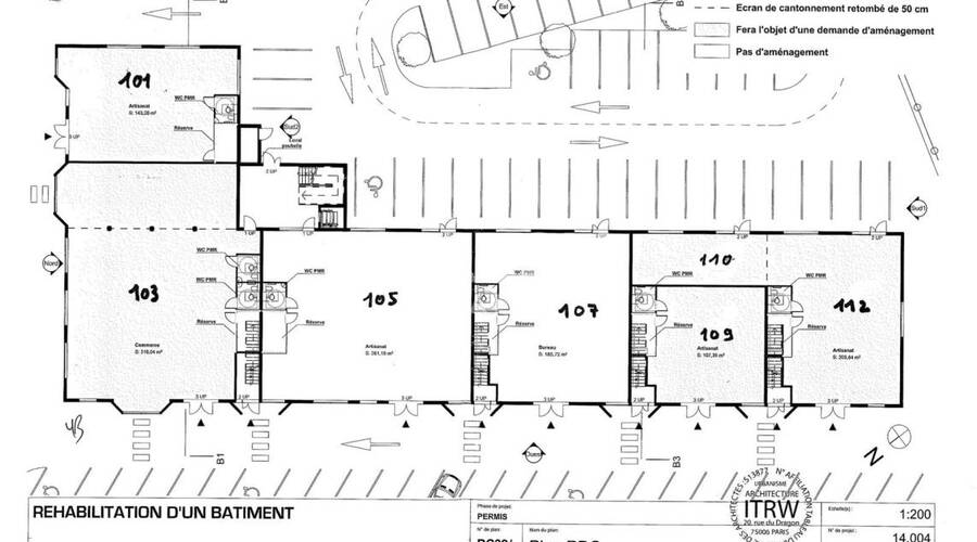
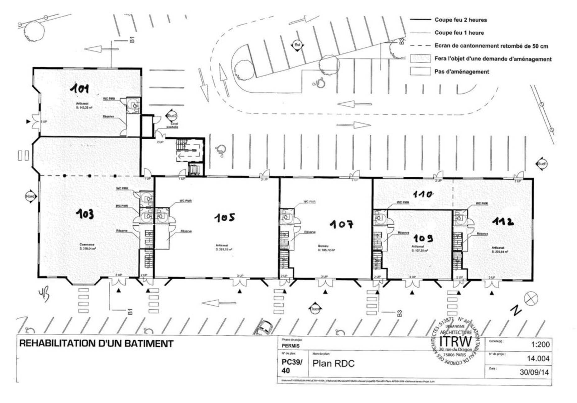
Vente ou Location Local commercial - Villefranche sur Saône (69400) - 142 m²
Villefranche-sur-Saône (69400)
Prix : Nous contacter
Surface 142 m²
Description du bien
MALSH Realty vous propose à la vente ou à la location à Villefranche-sur-Saône, un local commercial d'une surface totale d'environ 142 m² au RDC. Ce local bénéficie de 4 places de parking. Idéalement situé en façade de la Route D306 bénéficiant d'une très belle visibilité et à proximité immédiate de l'autoroute A6.
Disponible immédiatement !
Prestations du bien
- Luminaires encastrés
- Sol : carrelage et PVC
- Sanitaires
- Douches
- Climatisation réversible
- Stationnements : 4 places de parking
Informations financières
- Charges minimales : 250 €
- Bail : commercial 3-6-9 ans
- Taxe foncière : À définir
- Informations location :
Conditions particulières à la location : Assurance en sus à prévoir
Ce local professionnel vous est présenté par
Vous souhaitez nous joindre ?
Surfaces des locaux
| Étage | Bâtiment | Type | Surfaces | Disponibilité | Loyer | Charges | Honoraires | Fiscal | Bail | Révision annuelle | Prix | Charges | Honoraires | Fiscal | Paiement Loyer | lot | Coworking | |
|---|---|---|---|---|---|---|---|---|---|---|---|---|---|---|---|---|---|---|
| RDC | Locaux Commerciaux | 142 | Immédiate | 204,23 HT/HC/m²/an | 3 000 HT/an | 20 % HT du loyer annuel HT/HC, à la charge du Preneur, payables à la signature du bail | T.V.A. (20%) | commercial 3-6-9 ans | ILAT Indice des Loyers des Activités Tertiaires | 5 % HT du prix de vente HDE, à la charge de l'acquéreur, payables à la signature de l'acte | Droits d'enregistrement | Trimestriel d'avance | Lot copro 101 (L. 3) | |||||
| Parkings | - | Immédiate | 20 % HT du loyer annuel HT/HC, à la charge du Preneur, payables à la signature du bail | T.V.A. (20%) | commercial 3-6-9 ans | ILAT Indice des Loyers des Activités Tertiaires | 5 % HT du prix de vente HDE, à la charge de l'acquéreur, payables à la signature de l'acte | Droits d'enregistrement | Trimestriel d'avance | |||||||||
| Total | 142 m² | |||||||||||||||||
| 4 extérieur | ||||||||||||||||||
Localisation et accessibilité
- Bus: Bus TCL lignes 151 et 152 à proximité immédiate
- SCNF: Gare de Villefranche-sur-Saône à environ 5 min
- Autoroute: A proximité immédiate de l'autoroute A6 (sortie n° 31.2 Villefranche Sud)
Ces biens pourraient vous intéresser
| Étage | Bâtiment | Type | Surfaces | Disponibilité | Loyer | Charges | Honoraires | Fiscal | Bail | Révision annuelle | Prix | Charges | Honoraires | Fiscal | Paiement Loyer | lot | Coworking | |
|---|---|---|---|---|---|---|---|---|---|---|---|---|---|---|---|---|---|---|
| RDC | Locaux Commerciaux | 142 | Immédiate | 204,23 HT/HC/m²/an | 3 000 HT/an | 20 % HT du loyer annuel HT/HC, à la charge du Preneur, payables à la signature du bail | T.V.A. (20%) | commercial 3-6-9 ans | ILAT Indice des Loyers des Activités Tertiaires | 5 % HT du prix de vente HDE, à la charge de l'acquéreur, payables à la signature de l'acte | Droits d'enregistrement | Trimestriel d'avance | Lot copro 101 (L. 3) | |||||
| Parkings | - | Immédiate | 20 % HT du loyer annuel HT/HC, à la charge du Preneur, payables à la signature du bail | T.V.A. (20%) | commercial 3-6-9 ans | ILAT Indice des Loyers des Activités Tertiaires | 5 % HT du prix de vente HDE, à la charge de l'acquéreur, payables à la signature de l'acte | Droits d'enregistrement | Trimestriel d'avance | |||||||||
| Total | 142 m² | |||||||||||||||||
| 4 extérieur | ||||||||||||||||||










































