Ref : 1315148-0V_MA
Vente Local d'activités
Vente - Locaux d'Activités / ShowRooms / Bureaux neufs - Marcilly d'Azergues (69380) - 2580 m² divisibles à partir de 27 m²
Alix (69380)
Prix : 4 516 628 €
Surface 2 580 m²
Divisible dès 27 m²
Description du bien
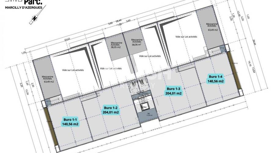
MALSH Realty & Property vous propose à vente, dans la ZAC des Ïles à Marcilly-d'Azergues, au sein d'un nouveau bâtiment le "Biz'Parc" à usage mixte, 4 locaux d'activités à partir de 187 m², 2 showrooms à partir de 256 m² et 12 plateaux de bureaux à partir de 27 m². Ce complexe moderne de 2580 m² offre un cadre idéal pour les entreprises souhaitant s'établir dans un environnement stratégique et dynamique.
Disponibilité 12 mois après le début des travaux !
Prestations du bien
- Accès de plain-pied / Accès semi
- Places de parking privatives pour chaque lot
- Locaux d'activités : 4 lots au RDC
- 1 porte sectionnelle par lot
- Showroom : 2 lots au RDC
- Bureaux :
- 4 lots au R+1
- 8 lots au R+2
Ce local professionnel vous est présenté par
Vous souhaitez nous joindre ?
Surfaces des locaux
| Étage | Bâtiment | Type | Surfaces | Disponibilité | Loyer | Charges | Honoraires | Fiscal | Bail | Révision annuelle | Prix | Charges | Honoraires | Fiscal | Paiement Loyer | lot | Coworking | |
|---|---|---|---|---|---|---|---|---|---|---|---|---|---|---|---|---|---|---|
| Mezzanine | 63,49 | 5 % HT du prix de vente HT, à la charge de l'acquéreur, payables à la signature de l'acte | TVA | |||||||||||||||
| RDC | Activités | 173,86 | 5 % HT du prix de vente HT, à la charge de l'acquéreur, payables à la signature de l'acte | TVA | ||||||||||||||
| Parkings | - | 5 % HT du prix de vente HT, à la charge de l'acquéreur, payables à la signature de l'acte | TVA | |||||||||||||||
| Total Cellule Acti 1 | Activités | 237,35 | 12 mois après début travaux | 1 750,16 HT/m² | 5 % HT du prix de vente HT, à la charge de l'acquéreur, payables à la signature de l'acte | TVA | Acti 1 | |||||||||||
| Mezzanine | 38,05 | 5 % HT du prix de vente HT, à la charge de l'acquéreur, payables à la signature de l'acte | TVA | |||||||||||||||
| RDC | Activités | 148,6 | 5 % HT du prix de vente HT, à la charge de l'acquéreur, payables à la signature de l'acte | TVA | ||||||||||||||
| Parkings | - | 5 % HT du prix de vente HT, à la charge de l'acquéreur, payables à la signature de l'acte | TVA | |||||||||||||||
| Total Cellule Acti 2 | Activités | 186,65 | 12 mois après début travaux | 1 749,8 HT/m² | 5 % HT du prix de vente HT, à la charge de l'acquéreur, payables à la signature de l'acte | TVA | Acti 2 | |||||||||||
| Mezzanine | 38,05 | 5 % HT du prix de vente HT, à la charge de l'acquéreur, payables à la signature de l'acte | TVA | |||||||||||||||
| RDC | Activités | 148,6 | 5 % HT du prix de vente HT, à la charge de l'acquéreur, payables à la signature de l'acte | TVA | ||||||||||||||
| Parkings | - | 5 % HT du prix de vente HT, à la charge de l'acquéreur, payables à la signature de l'acte | TVA | |||||||||||||||
| Total Cellule Acti 3 | Activités | 186,65 | 12 mois après début travaux | 1 749,8 HT/m² | 5 % HT du prix de vente HT, à la charge de l'acquéreur, payables à la signature de l'acte | TVA | Acti 3 | |||||||||||
| Mezzanine | 63,49 | 5 % HT du prix de vente HT, à la charge de l'acquéreur, payables à la signature de l'acte | TVA | |||||||||||||||
| RDC | Activités | 173,86 | 5 % HT du prix de vente HT, à la charge de l'acquéreur, payables à la signature de l'acte | TVA | ||||||||||||||
| Parkings | - | 5 % HT du prix de vente HT, à la charge de l'acquéreur, payables à la signature de l'acte | TVA | |||||||||||||||
| Total Cellule Acti 4 | Activités | 237,35 | 12 mois après début travaux | 1 750,16 HT/m² | 5 % HT du prix de vente HT, à la charge de l'acquéreur, payables à la signature de l'acte | TVA | Acti 4 | |||||||||||
| R+1 | Bureaux | 140,56 | 5 % HT du prix de vente HT, à la charge de l'acquéreur, payables à la signature de l'acte | TVA | ||||||||||||||
| Parkings | - | 5 % HT du prix de vente HT, à la charge de l'acquéreur, payables à la signature de l'acte | TVA | |||||||||||||||
| Total Cellule Buro 1-1 | Bureaux | 140,56 | 12 mois après début travaux | 2 655,09 HT/m² | 5 % HT du prix de vente HT, à la charge de l'acquéreur, payables à la signature de l'acte | TVA | Buro 1-1 | |||||||||||
| R+1 | Bureaux | 204,01 | 5 % HT du prix de vente HT, à la charge de l'acquéreur, payables à la signature de l'acte | TVA | ||||||||||||||
| Parkings | - | 5 % HT du prix de vente HT, à la charge de l'acquéreur, payables à la signature de l'acte | TVA | |||||||||||||||
| Total Cellule Buro 1-2 | Bureaux | 204,01 | 12 mois après début travaux | 2 654,77 HT/m² | 5 % HT du prix de vente HT, à la charge de l'acquéreur, payables à la signature de l'acte | TVA | Buro 1-2 | |||||||||||
| R+1 | Bureaux | 204,01 | 5 % HT du prix de vente HT, à la charge de l'acquéreur, payables à la signature de l'acte | TVA | ||||||||||||||
| Parkings | - | 5 % HT du prix de vente HT, à la charge de l'acquéreur, payables à la signature de l'acte | TVA | |||||||||||||||
| Total Cellule Buro 1-3 | Bureaux | 204,01 | 12 mois après début travaux | 2 654,77 HT/m² | 5 % HT du prix de vente HT, à la charge de l'acquéreur, payables à la signature de l'acte | TVA | Buro 1-3 | |||||||||||
| R+1 | Bureaux | 140,56 | 5 % HT du prix de vente HT, à la charge de l'acquéreur, payables à la signature de l'acte | TVA | ||||||||||||||
| Parkings | - | 5 % HT du prix de vente HT, à la charge de l'acquéreur, payables à la signature de l'acte | TVA | |||||||||||||||
| Total Cellule Buro 1-4 | Bureaux | 140,56 | 12 mois après début travaux | 2 655,09 HT/m² | 5 % HT du prix de vente HT, à la charge de l'acquéreur, payables à la signature de l'acte | TVA | Buro 1-4 | |||||||||||
| R+2 | Bureaux | 123,83 | 5 % HT du prix de vente HT, à la charge de l'acquéreur, payables à la signature de l'acte | TVA | ||||||||||||||
| Parkings | - | 5 % HT du prix de vente HT, à la charge de l'acquéreur, payables à la signature de l'acte | TVA | |||||||||||||||
| Total Cellule Buro 2-1 | Bureaux | 123,83 | 12 mois après début travaux | 3 070,49 HT/m² | 5 % HT du prix de vente HT, à la charge de l'acquéreur, payables à la signature de l'acte | TVA | Buro 2-1 | |||||||||||
| R+2 | Bureaux | 40,33 | 5 % HT du prix de vente HT, à la charge de l'acquéreur, payables à la signature de l'acte | TVA | ||||||||||||||
| Parkings | - | 5 % HT du prix de vente HT, à la charge de l'acquéreur, payables à la signature de l'acte | TVA | |||||||||||||||
| Total Cellule Buro 2-2 | Bureaux | 40,33 | 12 mois après début travaux | 3 070,49 HT/m² | 5 % HT du prix de vente HT, à la charge de l'acquéreur, payables à la signature de l'acte | TVA | Buro 2-2 | |||||||||||
| R+2 | Bureaux | 32,9 | 5 % HT du prix de vente HT, à la charge de l'acquéreur, payables à la signature de l'acte | TVA | ||||||||||||||
| Parkings | - | 5 % HT du prix de vente HT, à la charge de l'acquéreur, payables à la signature de l'acte | TVA | |||||||||||||||
| Total Cellule Buro 2-3 | Bureaux | 32,9 | 12 mois après début travaux | 3 070,49 HT/m² | 5 % HT du prix de vente HT, à la charge de l'acquéreur, payables à la signature de l'acte | TVA | Buro 2-3 | |||||||||||
| R+2 | Bureaux | 40,33 | 5 % HT du prix de vente HT, à la charge de l'acquéreur, payables à la signature de l'acte | TVA | ||||||||||||||
| Parkings | - | 5 % HT du prix de vente HT, à la charge de l'acquéreur, payables à la signature de l'acte | TVA | |||||||||||||||
| Total Cellule Buro 2-4 | Bureaux | 40,33 | 12 mois après début travaux | 3 070,49 HT/m² | 5 % HT du prix de vente HT, à la charge de l'acquéreur, payables à la signature de l'acte | TVA | Buro 2-4 | |||||||||||
| R+2 | Bureaux | 27,11 | 5 % HT du prix de vente HT, à la charge de l'acquéreur, payables à la signature de l'acte | TVA | ||||||||||||||
| Parkings | - | 5 % HT du prix de vente HT, à la charge de l'acquéreur, payables à la signature de l'acte | TVA | |||||||||||||||
| Total Cellule Buro 2-5 | Bureaux | 27,11 | 12 mois après début travaux | 3 070,49 HT/m² | 5 % HT du prix de vente HT, à la charge de l'acquéreur, payables à la signature de l'acte | TVA | Buro 2-5 | |||||||||||
| R+2 | Bureaux | 73,79 | 5 % HT du prix de vente HT, à la charge de l'acquéreur, payables à la signature de l'acte | TVA | ||||||||||||||
| Parkings | - | 5 % HT du prix de vente HT, à la charge de l'acquéreur, payables à la signature de l'acte | TVA | |||||||||||||||
| Total Cellule Buro 2-6 | Bureaux | 73,79 | 12 mois après début travaux | 3 070,5 HT/m² | 5 % HT du prix de vente HT, à la charge de l'acquéreur, payables à la signature de l'acte | TVA | Buro 2-6 | |||||||||||
| R+2 | Bureaux | 67,9 | 5 % HT du prix de vente HT, à la charge de l'acquéreur, payables à la signature de l'acte | TVA | ||||||||||||||
| Parkings | - | 5 % HT du prix de vente HT, à la charge de l'acquéreur, payables à la signature de l'acte | TVA | |||||||||||||||
| Total Cellule Buro 2-7 | Bureaux | 67,9 | 12 mois après début travaux | 3 070,5 HT/m² | 5 % HT du prix de vente HT, à la charge de l'acquéreur, payables à la signature de l'acte | TVA | Buro 2-7 | |||||||||||
| R+2 | Bureaux | 124,03 | 5 % HT du prix de vente HT, à la charge de l'acquéreur, payables à la signature de l'acte | TVA | ||||||||||||||
| Parkings | - | 5 % HT du prix de vente HT, à la charge de l'acquéreur, payables à la signature de l'acte | TVA | |||||||||||||||
| Total Cellule Buro 2-8 | Bureaux | 124,03 | 12 mois après début travaux | 3 070,5 HT/m² | 5 % HT du prix de vente HT, à la charge de l'acquéreur, payables à la signature de l'acte | TVA | Buro 2-8 | |||||||||||
| RDC | Show Room | 256,32 | 5 % HT du prix de vente HT, à la charge de l'acquéreur, payables à la signature de l'acte | TVA | ||||||||||||||
| Parkings | - | 5 % HT du prix de vente HT, à la charge de l'acquéreur, payables à la signature de l'acte | TVA | |||||||||||||||
| Total Cellule ShowRoom 1 | Show Room | 256,32 | 12 mois après début travaux | 2 150,05 HT/m² | 5 % HT du prix de vente HT, à la charge de l'acquéreur, payables à la signature de l'acte | TVA | ShowRoom 1 | |||||||||||
| RDC | Show Room | 257,25 | 5 % HT du prix de vente HT, à la charge de l'acquéreur, payables à la signature de l'acte | TVA | ||||||||||||||
| Parkings | - | 5 % HT du prix de vente HT, à la charge de l'acquéreur, payables à la signature de l'acte | TVA | |||||||||||||||
| Total Cellule ShowRoom 2 | Show Room | 257,25 | 12 mois après début travaux | 2 150,05 HT/m² | 5 % HT du prix de vente HT, à la charge de l'acquéreur, payables à la signature de l'acte | TVA | ShowRoom 2 | |||||||||||
| Total | 2 580,93 m² | |||||||||||||||||
| 2 extérieur 2 extérieur 2 extérieur 2 extérieur 3 extérieur 3 extérieur 4 extérieur 5 extérieur 5 extérieur 4 extérieur 3 extérieur 1 extérieur 1 extérieur 1 extérieur 1 extérieur 2 extérieur 2 extérieur 3 extérieur | ||||||||||||||||||
Localisation et accessibilité
- SCNF: Gare TER de Civrieux-d'Azergues à 3 min
- Autoroute: A proximité immédiate de l'autoroute A6
Ces biens pourraient vous intéresser
| Étage | Bâtiment | Type | Surfaces | Disponibilité | Loyer | Charges | Honoraires | Fiscal | Bail | Révision annuelle | Prix | Charges | Honoraires | Fiscal | Paiement Loyer | lot | Coworking | |
|---|---|---|---|---|---|---|---|---|---|---|---|---|---|---|---|---|---|---|
| Mezzanine | 63,49 | 5 % HT du prix de vente HT, à la charge de l'acquéreur, payables à la signature de l'acte | TVA | |||||||||||||||
| RDC | Activités | 173,86 | 5 % HT du prix de vente HT, à la charge de l'acquéreur, payables à la signature de l'acte | TVA | ||||||||||||||
| Parkings | - | 5 % HT du prix de vente HT, à la charge de l'acquéreur, payables à la signature de l'acte | TVA | |||||||||||||||
| Total Cellule Acti 1 | Activités | 237,35 | 12 mois après début travaux | 1 750,16 HT/m² | 5 % HT du prix de vente HT, à la charge de l'acquéreur, payables à la signature de l'acte | TVA | Acti 1 | |||||||||||
| Mezzanine | 38,05 | 5 % HT du prix de vente HT, à la charge de l'acquéreur, payables à la signature de l'acte | TVA | |||||||||||||||
| RDC | Activités | 148,6 | 5 % HT du prix de vente HT, à la charge de l'acquéreur, payables à la signature de l'acte | TVA | ||||||||||||||
| Parkings | - | 5 % HT du prix de vente HT, à la charge de l'acquéreur, payables à la signature de l'acte | TVA | |||||||||||||||
| Total Cellule Acti 2 | Activités | 186,65 | 12 mois après début travaux | 1 749,8 HT/m² | 5 % HT du prix de vente HT, à la charge de l'acquéreur, payables à la signature de l'acte | TVA | Acti 2 | |||||||||||
| Mezzanine | 38,05 | 5 % HT du prix de vente HT, à la charge de l'acquéreur, payables à la signature de l'acte | TVA | |||||||||||||||
| RDC | Activités | 148,6 | 5 % HT du prix de vente HT, à la charge de l'acquéreur, payables à la signature de l'acte | TVA | ||||||||||||||
| Parkings | - | 5 % HT du prix de vente HT, à la charge de l'acquéreur, payables à la signature de l'acte | TVA | |||||||||||||||
| Total Cellule Acti 3 | Activités | 186,65 | 12 mois après début travaux | 1 749,8 HT/m² | 5 % HT du prix de vente HT, à la charge de l'acquéreur, payables à la signature de l'acte | TVA | Acti 3 | |||||||||||
| Mezzanine | 63,49 | 5 % HT du prix de vente HT, à la charge de l'acquéreur, payables à la signature de l'acte | TVA | |||||||||||||||
| RDC | Activités | 173,86 | 5 % HT du prix de vente HT, à la charge de l'acquéreur, payables à la signature de l'acte | TVA | ||||||||||||||
| Parkings | - | 5 % HT du prix de vente HT, à la charge de l'acquéreur, payables à la signature de l'acte | TVA | |||||||||||||||
| Total Cellule Acti 4 | Activités | 237,35 | 12 mois après début travaux | 1 750,16 HT/m² | 5 % HT du prix de vente HT, à la charge de l'acquéreur, payables à la signature de l'acte | TVA | Acti 4 | |||||||||||
| R+1 | Bureaux | 140,56 | 5 % HT du prix de vente HT, à la charge de l'acquéreur, payables à la signature de l'acte | TVA | ||||||||||||||
| Parkings | - | 5 % HT du prix de vente HT, à la charge de l'acquéreur, payables à la signature de l'acte | TVA | |||||||||||||||
| Total Cellule Buro 1-1 | Bureaux | 140,56 | 12 mois après début travaux | 2 655,09 HT/m² | 5 % HT du prix de vente HT, à la charge de l'acquéreur, payables à la signature de l'acte | TVA | Buro 1-1 | |||||||||||
| R+1 | Bureaux | 204,01 | 5 % HT du prix de vente HT, à la charge de l'acquéreur, payables à la signature de l'acte | TVA | ||||||||||||||
| Parkings | - | 5 % HT du prix de vente HT, à la charge de l'acquéreur, payables à la signature de l'acte | TVA | |||||||||||||||
| Total Cellule Buro 1-2 | Bureaux | 204,01 | 12 mois après début travaux | 2 654,77 HT/m² | 5 % HT du prix de vente HT, à la charge de l'acquéreur, payables à la signature de l'acte | TVA | Buro 1-2 | |||||||||||
| R+1 | Bureaux | 204,01 | 5 % HT du prix de vente HT, à la charge de l'acquéreur, payables à la signature de l'acte | TVA | ||||||||||||||
| Parkings | - | 5 % HT du prix de vente HT, à la charge de l'acquéreur, payables à la signature de l'acte | TVA | |||||||||||||||
| Total Cellule Buro 1-3 | Bureaux | 204,01 | 12 mois après début travaux | 2 654,77 HT/m² | 5 % HT du prix de vente HT, à la charge de l'acquéreur, payables à la signature de l'acte | TVA | Buro 1-3 | |||||||||||
| R+1 | Bureaux | 140,56 | 5 % HT du prix de vente HT, à la charge de l'acquéreur, payables à la signature de l'acte | TVA | ||||||||||||||
| Parkings | - | 5 % HT du prix de vente HT, à la charge de l'acquéreur, payables à la signature de l'acte | TVA | |||||||||||||||
| Total Cellule Buro 1-4 | Bureaux | 140,56 | 12 mois après début travaux | 2 655,09 HT/m² | 5 % HT du prix de vente HT, à la charge de l'acquéreur, payables à la signature de l'acte | TVA | Buro 1-4 | |||||||||||
| R+2 | Bureaux | 123,83 | 5 % HT du prix de vente HT, à la charge de l'acquéreur, payables à la signature de l'acte | TVA | ||||||||||||||
| Parkings | - | 5 % HT du prix de vente HT, à la charge de l'acquéreur, payables à la signature de l'acte | TVA | |||||||||||||||
| Total Cellule Buro 2-1 | Bureaux | 123,83 | 12 mois après début travaux | 3 070,49 HT/m² | 5 % HT du prix de vente HT, à la charge de l'acquéreur, payables à la signature de l'acte | TVA | Buro 2-1 | |||||||||||
| R+2 | Bureaux | 40,33 | 5 % HT du prix de vente HT, à la charge de l'acquéreur, payables à la signature de l'acte | TVA | ||||||||||||||
| Parkings | - | 5 % HT du prix de vente HT, à la charge de l'acquéreur, payables à la signature de l'acte | TVA | |||||||||||||||
| Total Cellule Buro 2-2 | Bureaux | 40,33 | 12 mois après début travaux | 3 070,49 HT/m² | 5 % HT du prix de vente HT, à la charge de l'acquéreur, payables à la signature de l'acte | TVA | Buro 2-2 | |||||||||||
| R+2 | Bureaux | 32,9 | 5 % HT du prix de vente HT, à la charge de l'acquéreur, payables à la signature de l'acte | TVA | ||||||||||||||
| Parkings | - | 5 % HT du prix de vente HT, à la charge de l'acquéreur, payables à la signature de l'acte | TVA | |||||||||||||||
| Total Cellule Buro 2-3 | Bureaux | 32,9 | 12 mois après début travaux | 3 070,49 HT/m² | 5 % HT du prix de vente HT, à la charge de l'acquéreur, payables à la signature de l'acte | TVA | Buro 2-3 | |||||||||||
| R+2 | Bureaux | 40,33 | 5 % HT du prix de vente HT, à la charge de l'acquéreur, payables à la signature de l'acte | TVA | ||||||||||||||
| Parkings | - | 5 % HT du prix de vente HT, à la charge de l'acquéreur, payables à la signature de l'acte | TVA | |||||||||||||||
| Total Cellule Buro 2-4 | Bureaux | 40,33 | 12 mois après début travaux | 3 070,49 HT/m² | 5 % HT du prix de vente HT, à la charge de l'acquéreur, payables à la signature de l'acte | TVA | Buro 2-4 | |||||||||||
| R+2 | Bureaux | 27,11 | 5 % HT du prix de vente HT, à la charge de l'acquéreur, payables à la signature de l'acte | TVA | ||||||||||||||
| Parkings | - | 5 % HT du prix de vente HT, à la charge de l'acquéreur, payables à la signature de l'acte | TVA | |||||||||||||||
| Total Cellule Buro 2-5 | Bureaux | 27,11 | 12 mois après début travaux | 3 070,49 HT/m² | 5 % HT du prix de vente HT, à la charge de l'acquéreur, payables à la signature de l'acte | TVA | Buro 2-5 | |||||||||||
| R+2 | Bureaux | 73,79 | 5 % HT du prix de vente HT, à la charge de l'acquéreur, payables à la signature de l'acte | TVA | ||||||||||||||
| Parkings | - | 5 % HT du prix de vente HT, à la charge de l'acquéreur, payables à la signature de l'acte | TVA | |||||||||||||||
| Total Cellule Buro 2-6 | Bureaux | 73,79 | 12 mois après début travaux | 3 070,5 HT/m² | 5 % HT du prix de vente HT, à la charge de l'acquéreur, payables à la signature de l'acte | TVA | Buro 2-6 | |||||||||||
| R+2 | Bureaux | 67,9 | 5 % HT du prix de vente HT, à la charge de l'acquéreur, payables à la signature de l'acte | TVA | ||||||||||||||
| Parkings | - | 5 % HT du prix de vente HT, à la charge de l'acquéreur, payables à la signature de l'acte | TVA | |||||||||||||||
| Total Cellule Buro 2-7 | Bureaux | 67,9 | 12 mois après début travaux | 3 070,5 HT/m² | 5 % HT du prix de vente HT, à la charge de l'acquéreur, payables à la signature de l'acte | TVA | Buro 2-7 | |||||||||||
| R+2 | Bureaux | 124,03 | 5 % HT du prix de vente HT, à la charge de l'acquéreur, payables à la signature de l'acte | TVA | ||||||||||||||
| Parkings | - | 5 % HT du prix de vente HT, à la charge de l'acquéreur, payables à la signature de l'acte | TVA | |||||||||||||||
| Total Cellule Buro 2-8 | Bureaux | 124,03 | 12 mois après début travaux | 3 070,5 HT/m² | 5 % HT du prix de vente HT, à la charge de l'acquéreur, payables à la signature de l'acte | TVA | Buro 2-8 | |||||||||||
| RDC | Show Room | 256,32 | 5 % HT du prix de vente HT, à la charge de l'acquéreur, payables à la signature de l'acte | TVA | ||||||||||||||
| Parkings | - | 5 % HT du prix de vente HT, à la charge de l'acquéreur, payables à la signature de l'acte | TVA | |||||||||||||||
| Total Cellule ShowRoom 1 | Show Room | 256,32 | 12 mois après début travaux | 2 150,05 HT/m² | 5 % HT du prix de vente HT, à la charge de l'acquéreur, payables à la signature de l'acte | TVA | ShowRoom 1 | |||||||||||
| RDC | Show Room | 257,25 | 5 % HT du prix de vente HT, à la charge de l'acquéreur, payables à la signature de l'acte | TVA | ||||||||||||||
| Parkings | - | 5 % HT du prix de vente HT, à la charge de l'acquéreur, payables à la signature de l'acte | TVA | |||||||||||||||
| Total Cellule ShowRoom 2 | Show Room | 257,25 | 12 mois après début travaux | 2 150,05 HT/m² | 5 % HT du prix de vente HT, à la charge de l'acquéreur, payables à la signature de l'acte | TVA | ShowRoom 2 | |||||||||||
| Total | 2 580,93 m² | |||||||||||||||||
| 2 extérieur 2 extérieur 2 extérieur 2 extérieur 3 extérieur 3 extérieur 4 extérieur 5 extérieur 5 extérieur 4 extérieur 3 extérieur 1 extérieur 1 extérieur 1 extérieur 1 extérieur 2 extérieur 2 extérieur 3 extérieur | ||||||||||||||||||






















































































