Ref : 1249196-0V_MA
Vente Local d'activités
Vente (VEFA) Locaux d'activités - Dagneux (01120) - 5066 m² divisibles à partir de 315 m²
Dagneux (01120)
Prix : 7 599 000 €
Surface 5 066 m²
Divisible dès 315 m²
Description du bien
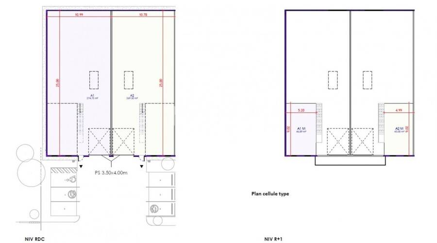
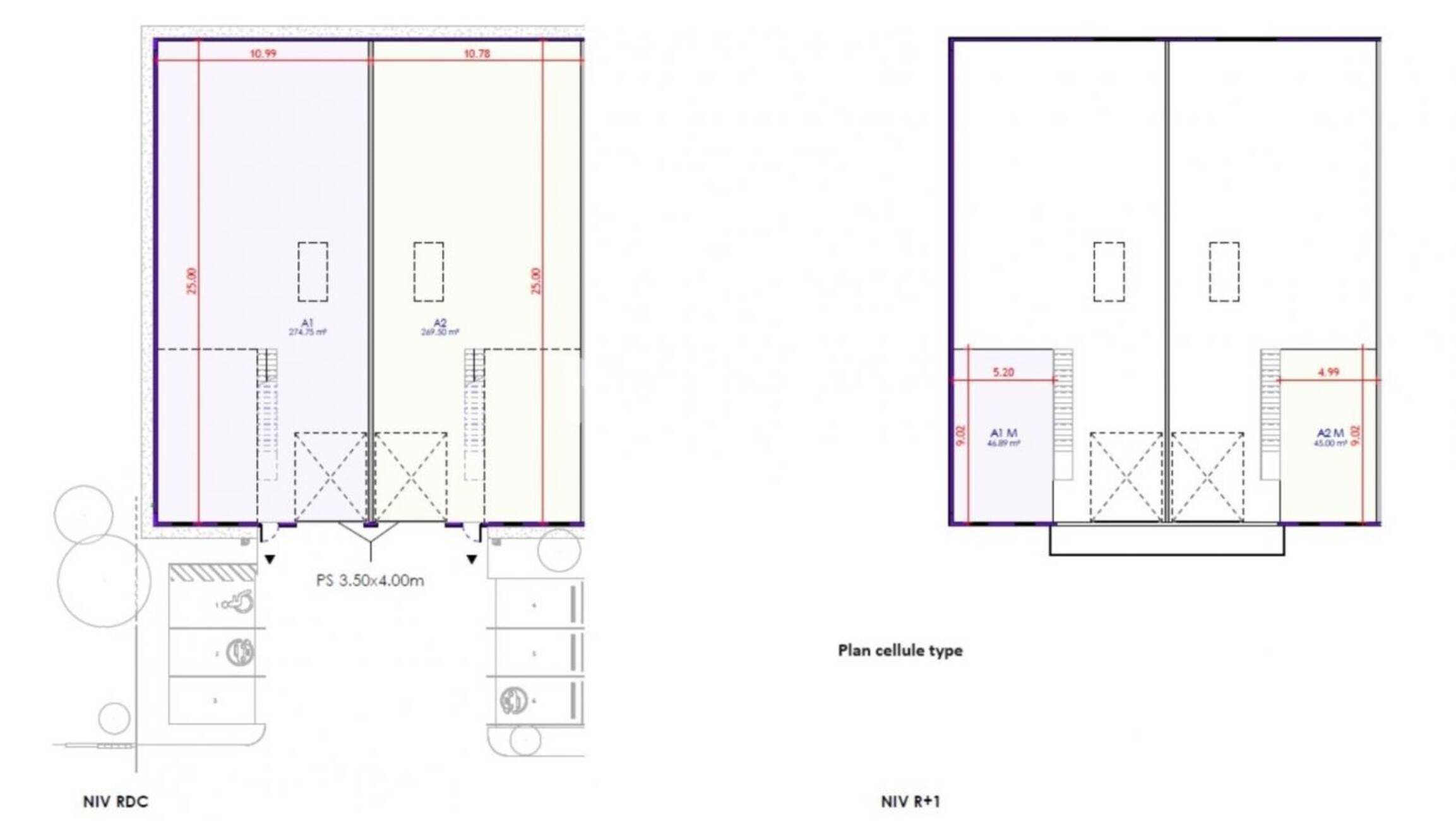
MALSH Realty & Property vous propose à la vente en VEFA à Dagneux, au sein d'un nouveau parc d'activités composé de 2 bâtiments, 16 cellules d'activités neuves à partir de 315 m², livrées fluides en attente avec mezzanine .
Chaque cellule dispose de 3 places de parking avec fourreau en attente pour bornes de recharges.
Livraison : 18 mois après signature !
Prestations du bien
- Portail motorisé avec horloge programmable
- Portes sectionnelles motorisées
- Réseau en attente pour électrification des places de parking
- Charpente métallique
- Bardage vertical double peau isolé
- Couverture : bac acier
- Sol en dalle béton quartzée
- Charge admissible 2,5 T/m²
- Mezzanines R+1
- Charge admissible 250 kg/m²
- Compteurs individuels tarif bleu
- Fluides en attente
- Compris escaliers métalliques / garde-corps
- Surface terrain : 9717
Ce local professionnel vous est présenté par
Vous souhaitez nous joindre ?
Surfaces des locaux
| Étage | Bâtiment | Type | Surfaces | Disponibilité | Loyer | Charges | Honoraires | Fiscal | Bail | Révision annuelle | Prix | Charges | Honoraires | Fiscal | Paiement Loyer | lot | Coworking | |
|---|---|---|---|---|---|---|---|---|---|---|---|---|---|---|---|---|---|---|
| Mezzanine | 46 | 3 % HT du prix de vente HT à la charge de l'acquéreur, payables à la signature de l'acte | TVA | |||||||||||||||
| RDC | Activités | 275 | 3 % HT du prix de vente HT à la charge de l'acquéreur, payables à la signature de l'acte | TVA | ||||||||||||||
| Parkings | - | 3 % HT du prix de vente HT à la charge de l'acquéreur, payables à la signature de l'acte | TVA | |||||||||||||||
| Total Cellule A1 | Activités | 321 | Livraison : nous consulter | 1 500 HT/m² | 3 % HT du prix de vente HT à la charge de l'acquéreur, payables à la signature de l'acte | TVA | A1 | |||||||||||
| Mezzanine | 45 | 3 % HT du prix de vente HT à la charge de l'acquéreur, payables à la signature de l'acte | TVA | |||||||||||||||
| RDC | Activités | 270 | 3 % HT du prix de vente HT à la charge de l'acquéreur, payables à la signature de l'acte | TVA | ||||||||||||||
| Parkings | - | 3 % HT du prix de vente HT à la charge de l'acquéreur, payables à la signature de l'acte | TVA | |||||||||||||||
| Total Cellule A2 | Activités | 315 | Livraison : nous consulter | 1 500 HT/m² | 3 % HT du prix de vente HT à la charge de l'acquéreur, payables à la signature de l'acte | TVA | A2 | |||||||||||
| Mezzanine | 45 | 3 % HT du prix de vente HT à la charge de l'acquéreur, payables à la signature de l'acte | TVA | |||||||||||||||
| RDC | Activités | 270 | 3 % HT du prix de vente HT à la charge de l'acquéreur, payables à la signature de l'acte | TVA | ||||||||||||||
| Parkings | - | 3 % HT du prix de vente HT à la charge de l'acquéreur, payables à la signature de l'acte | TVA | |||||||||||||||
| Total Cellule A3 | Activités | 315 | Livraison : nous consulter | 1 500 HT/m² | 3 % HT du prix de vente HT à la charge de l'acquéreur, payables à la signature de l'acte | TVA | A3 | |||||||||||
| Mezzanine | 45 | 3 % HT du prix de vente HT à la charge de l'acquéreur, payables à la signature de l'acte | TVA | |||||||||||||||
| RDC | Activités | 270 | 3 % HT du prix de vente HT à la charge de l'acquéreur, payables à la signature de l'acte | TVA | ||||||||||||||
| Parkings | - | 3 % HT du prix de vente HT à la charge de l'acquéreur, payables à la signature de l'acte | TVA | |||||||||||||||
| Total Cellule A4 | Activités | 315 | Livraison : nous consulter | 1 500 HT/m² | 3 % HT du prix de vente HT à la charge de l'acquéreur, payables à la signature de l'acte | TVA | A4 | |||||||||||
| Mezzanine | 45 | 3 % HT du prix de vente HT à la charge de l'acquéreur, payables à la signature de l'acte | TVA | |||||||||||||||
| RDC | Activités | 270 | 3 % HT du prix de vente HT à la charge de l'acquéreur, payables à la signature de l'acte | TVA | ||||||||||||||
| Parkings | - | 3 % HT du prix de vente HT à la charge de l'acquéreur, payables à la signature de l'acte | TVA | |||||||||||||||
| Total Cellule A5 | Activités | 315 | Livraison : nous consulter | 1 500 HT/m² | 3 % HT du prix de vente HT à la charge de l'acquéreur, payables à la signature de l'acte | TVA | A5 | |||||||||||
| Mezzanine | 45 | 3 % HT du prix de vente HT à la charge de l'acquéreur, payables à la signature de l'acte | TVA | |||||||||||||||
| RDC | Activités | 270 | 3 % HT du prix de vente HT à la charge de l'acquéreur, payables à la signature de l'acte | TVA | ||||||||||||||
| Parkings | - | 3 % HT du prix de vente HT à la charge de l'acquéreur, payables à la signature de l'acte | TVA | |||||||||||||||
| Total Cellule A6 | Activités | 315 | Livraison : nous consulter | 1 500 HT/m² | 3 % HT du prix de vente HT à la charge de l'acquéreur, payables à la signature de l'acte | TVA | A6 | |||||||||||
| Mezzanine | 45 | 3 % HT du prix de vente HT à la charge de l'acquéreur, payables à la signature de l'acte | TVA | |||||||||||||||
| RDC | Activités | 270 | 3 % HT du prix de vente HT à la charge de l'acquéreur, payables à la signature de l'acte | TVA | ||||||||||||||
| Parkings | - | 3 % HT du prix de vente HT à la charge de l'acquéreur, payables à la signature de l'acte | TVA | |||||||||||||||
| Total Cellule A7 | Activités | 315 | Livraison : nous consulter | 1 500 HT/m² | 3 % HT du prix de vente HT à la charge de l'acquéreur, payables à la signature de l'acte | TVA | A7 | |||||||||||
| Mezzanine | 46 | 3 % HT du prix de vente HT à la charge de l'acquéreur, payables à la signature de l'acte | TVA | |||||||||||||||
| RDC | Activités | 275 | 3 % HT du prix de vente HT à la charge de l'acquéreur, payables à la signature de l'acte | TVA | ||||||||||||||
| Parkings | - | 3 % HT du prix de vente HT à la charge de l'acquéreur, payables à la signature de l'acte | TVA | |||||||||||||||
| Total Cellule A8 | Activités | 321 | Livraison : nous consulter | 1 500 HT/m² | 3 % HT du prix de vente HT à la charge de l'acquéreur, payables à la signature de l'acte | TVA | A8 | |||||||||||
| Mezzanine | 47 | 3 % HT du prix de vente HT à la charge de l'acquéreur, payables à la signature de l'acte | TVA | |||||||||||||||
| RDC | Activités | 275 | 3 % HT du prix de vente HT à la charge de l'acquéreur, payables à la signature de l'acte | TVA | ||||||||||||||
| Parkings | - | 3 % HT du prix de vente HT à la charge de l'acquéreur, payables à la signature de l'acte | TVA | |||||||||||||||
| Total Cellule B1 | Activités | 322 | Livraison : nous consulter | 1 500 HT/m² | 3 % HT du prix de vente HT à la charge de l'acquéreur, payables à la signature de l'acte | TVA | B1 | |||||||||||
| Mezzanine | 45 | 3 % HT du prix de vente HT à la charge de l'acquéreur, payables à la signature de l'acte | TVA | |||||||||||||||
| RDC | Activités | 270 | 3 % HT du prix de vente HT à la charge de l'acquéreur, payables à la signature de l'acte | TVA | ||||||||||||||
| Parkings | - | 3 % HT du prix de vente HT à la charge de l'acquéreur, payables à la signature de l'acte | TVA | |||||||||||||||
| Total Cellule B2 | Activités | 315 | Livraison : nous consulter | 1 500 HT/m² | 3 % HT du prix de vente HT à la charge de l'acquéreur, payables à la signature de l'acte | TVA | B2 | |||||||||||
| Mezzanine | 45 | 3 % HT du prix de vente HT à la charge de l'acquéreur, payables à la signature de l'acte | TVA | |||||||||||||||
| RDC | Activités | 270 | 3 % HT du prix de vente HT à la charge de l'acquéreur, payables à la signature de l'acte | TVA | ||||||||||||||
| Parkings | - | 3 % HT du prix de vente HT à la charge de l'acquéreur, payables à la signature de l'acte | TVA | |||||||||||||||
| Total Cellule B3 | Activités | 315 | Livraison : nous consulter | 1 500 HT/m² | 3 % HT du prix de vente HT à la charge de l'acquéreur, payables à la signature de l'acte | TVA | B3 | |||||||||||
| Mezzanine | 45 | 3 % HT du prix de vente HT à la charge de l'acquéreur, payables à la signature de l'acte | TVA | |||||||||||||||
| RDC | Activités | 270 | 3 % HT du prix de vente HT à la charge de l'acquéreur, payables à la signature de l'acte | TVA | ||||||||||||||
| Parkings | - | 3 % HT du prix de vente HT à la charge de l'acquéreur, payables à la signature de l'acte | TVA | |||||||||||||||
| Total Cellule B4 | Activités | 315 | Livraison : nous consulter | 1 500 HT/m² | 3 % HT du prix de vente HT à la charge de l'acquéreur, payables à la signature de l'acte | TVA | B4 | |||||||||||
| Mezzanine | 45 | 3 % HT du prix de vente HT à la charge de l'acquéreur, payables à la signature de l'acte | TVA | |||||||||||||||
| RDC | Activités | 270 | 3 % HT du prix de vente HT à la charge de l'acquéreur, payables à la signature de l'acte | TVA | ||||||||||||||
| Parkings | - | 3 % HT du prix de vente HT à la charge de l'acquéreur, payables à la signature de l'acte | TVA | |||||||||||||||
| Total Cellule B5 | Activités | 315 | Livraison : nous consulter | 1 500 HT/m² | 3 % HT du prix de vente HT à la charge de l'acquéreur, payables à la signature de l'acte | TVA | B5 | |||||||||||
| Mezzanine | 45 | 3 % HT du prix de vente HT à la charge de l'acquéreur, payables à la signature de l'acte | TVA | |||||||||||||||
| RDC | Activités | 270 | 3 % HT du prix de vente HT à la charge de l'acquéreur, payables à la signature de l'acte | TVA | ||||||||||||||
| Parkings | - | 3 % HT du prix de vente HT à la charge de l'acquéreur, payables à la signature de l'acte | TVA | |||||||||||||||
| Total Cellule B6 | Activités | 315 | Livraison : nous consulter | 1 500 HT/m² | 3 % HT du prix de vente HT à la charge de l'acquéreur, payables à la signature de l'acte | TVA | B6 | |||||||||||
| Mezzanine | 45 | 3 % HT du prix de vente HT à la charge de l'acquéreur, payables à la signature de l'acte | TVA | |||||||||||||||
| RDC | Activités | 270 | 3 % HT du prix de vente HT à la charge de l'acquéreur, payables à la signature de l'acte | TVA | ||||||||||||||
| Parkings | - | 3 % HT du prix de vente HT à la charge de l'acquéreur, payables à la signature de l'acte | TVA | |||||||||||||||
| Total Cellule B7 | Activités | 315 | Livraison : nous consulter | 1 500 HT/m² | 3 % HT du prix de vente HT à la charge de l'acquéreur, payables à la signature de l'acte | TVA | B7 | |||||||||||
| Mezzanine | 47 | 3 % HT du prix de vente HT à la charge de l'acquéreur, payables à la signature de l'acte | TVA | |||||||||||||||
| RDC | Activités | 275 | 3 % HT du prix de vente HT à la charge de l'acquéreur, payables à la signature de l'acte | TVA | ||||||||||||||
| Parkings | - | 3 % HT du prix de vente HT à la charge de l'acquéreur, payables à la signature de l'acte | TVA | |||||||||||||||
| Total Cellule B8 | Activités | 322 | Livraison : nous consulter | 1 500 HT/m² | 3 % HT du prix de vente HT à la charge de l'acquéreur, payables à la signature de l'acte | TVA | B8 | |||||||||||
| Total | 5 066 m² | |||||||||||||||||
| 3 extérieur 3 extérieur 3 extérieur 3 extérieur 3 extérieur 3 extérieur 3 extérieur 3 extérieur 3 extérieur 3 extérieur 3 extérieur 3 extérieur 3 extérieur 3 extérieur 3 extérieur 3 extérieur | ||||||||||||||||||
Localisation et accessibilité
- Autoroute: A proximité immédiate de l'autoroute A42. A 10 min de l'A432.
Ces biens pourraient vous intéresser
| Étage | Bâtiment | Type | Surfaces | Disponibilité | Loyer | Charges | Honoraires | Fiscal | Bail | Révision annuelle | Prix | Charges | Honoraires | Fiscal | Paiement Loyer | lot | Coworking | |
|---|---|---|---|---|---|---|---|---|---|---|---|---|---|---|---|---|---|---|
| Mezzanine | 46 | 3 % HT du prix de vente HT à la charge de l'acquéreur, payables à la signature de l'acte | TVA | |||||||||||||||
| RDC | Activités | 275 | 3 % HT du prix de vente HT à la charge de l'acquéreur, payables à la signature de l'acte | TVA | ||||||||||||||
| Parkings | - | 3 % HT du prix de vente HT à la charge de l'acquéreur, payables à la signature de l'acte | TVA | |||||||||||||||
| Total Cellule A1 | Activités | 321 | Livraison : nous consulter | 1 500 HT/m² | 3 % HT du prix de vente HT à la charge de l'acquéreur, payables à la signature de l'acte | TVA | A1 | |||||||||||
| Mezzanine | 45 | 3 % HT du prix de vente HT à la charge de l'acquéreur, payables à la signature de l'acte | TVA | |||||||||||||||
| RDC | Activités | 270 | 3 % HT du prix de vente HT à la charge de l'acquéreur, payables à la signature de l'acte | TVA | ||||||||||||||
| Parkings | - | 3 % HT du prix de vente HT à la charge de l'acquéreur, payables à la signature de l'acte | TVA | |||||||||||||||
| Total Cellule A2 | Activités | 315 | Livraison : nous consulter | 1 500 HT/m² | 3 % HT du prix de vente HT à la charge de l'acquéreur, payables à la signature de l'acte | TVA | A2 | |||||||||||
| Mezzanine | 45 | 3 % HT du prix de vente HT à la charge de l'acquéreur, payables à la signature de l'acte | TVA | |||||||||||||||
| RDC | Activités | 270 | 3 % HT du prix de vente HT à la charge de l'acquéreur, payables à la signature de l'acte | TVA | ||||||||||||||
| Parkings | - | 3 % HT du prix de vente HT à la charge de l'acquéreur, payables à la signature de l'acte | TVA | |||||||||||||||
| Total Cellule A3 | Activités | 315 | Livraison : nous consulter | 1 500 HT/m² | 3 % HT du prix de vente HT à la charge de l'acquéreur, payables à la signature de l'acte | TVA | A3 | |||||||||||
| Mezzanine | 45 | 3 % HT du prix de vente HT à la charge de l'acquéreur, payables à la signature de l'acte | TVA | |||||||||||||||
| RDC | Activités | 270 | 3 % HT du prix de vente HT à la charge de l'acquéreur, payables à la signature de l'acte | TVA | ||||||||||||||
| Parkings | - | 3 % HT du prix de vente HT à la charge de l'acquéreur, payables à la signature de l'acte | TVA | |||||||||||||||
| Total Cellule A4 | Activités | 315 | Livraison : nous consulter | 1 500 HT/m² | 3 % HT du prix de vente HT à la charge de l'acquéreur, payables à la signature de l'acte | TVA | A4 | |||||||||||
| Mezzanine | 45 | 3 % HT du prix de vente HT à la charge de l'acquéreur, payables à la signature de l'acte | TVA | |||||||||||||||
| RDC | Activités | 270 | 3 % HT du prix de vente HT à la charge de l'acquéreur, payables à la signature de l'acte | TVA | ||||||||||||||
| Parkings | - | 3 % HT du prix de vente HT à la charge de l'acquéreur, payables à la signature de l'acte | TVA | |||||||||||||||
| Total Cellule A5 | Activités | 315 | Livraison : nous consulter | 1 500 HT/m² | 3 % HT du prix de vente HT à la charge de l'acquéreur, payables à la signature de l'acte | TVA | A5 | |||||||||||
| Mezzanine | 45 | 3 % HT du prix de vente HT à la charge de l'acquéreur, payables à la signature de l'acte | TVA | |||||||||||||||
| RDC | Activités | 270 | 3 % HT du prix de vente HT à la charge de l'acquéreur, payables à la signature de l'acte | TVA | ||||||||||||||
| Parkings | - | 3 % HT du prix de vente HT à la charge de l'acquéreur, payables à la signature de l'acte | TVA | |||||||||||||||
| Total Cellule A6 | Activités | 315 | Livraison : nous consulter | 1 500 HT/m² | 3 % HT du prix de vente HT à la charge de l'acquéreur, payables à la signature de l'acte | TVA | A6 | |||||||||||
| Mezzanine | 45 | 3 % HT du prix de vente HT à la charge de l'acquéreur, payables à la signature de l'acte | TVA | |||||||||||||||
| RDC | Activités | 270 | 3 % HT du prix de vente HT à la charge de l'acquéreur, payables à la signature de l'acte | TVA | ||||||||||||||
| Parkings | - | 3 % HT du prix de vente HT à la charge de l'acquéreur, payables à la signature de l'acte | TVA | |||||||||||||||
| Total Cellule A7 | Activités | 315 | Livraison : nous consulter | 1 500 HT/m² | 3 % HT du prix de vente HT à la charge de l'acquéreur, payables à la signature de l'acte | TVA | A7 | |||||||||||
| Mezzanine | 46 | 3 % HT du prix de vente HT à la charge de l'acquéreur, payables à la signature de l'acte | TVA | |||||||||||||||
| RDC | Activités | 275 | 3 % HT du prix de vente HT à la charge de l'acquéreur, payables à la signature de l'acte | TVA | ||||||||||||||
| Parkings | - | 3 % HT du prix de vente HT à la charge de l'acquéreur, payables à la signature de l'acte | TVA | |||||||||||||||
| Total Cellule A8 | Activités | 321 | Livraison : nous consulter | 1 500 HT/m² | 3 % HT du prix de vente HT à la charge de l'acquéreur, payables à la signature de l'acte | TVA | A8 | |||||||||||
| Mezzanine | 47 | 3 % HT du prix de vente HT à la charge de l'acquéreur, payables à la signature de l'acte | TVA | |||||||||||||||
| RDC | Activités | 275 | 3 % HT du prix de vente HT à la charge de l'acquéreur, payables à la signature de l'acte | TVA | ||||||||||||||
| Parkings | - | 3 % HT du prix de vente HT à la charge de l'acquéreur, payables à la signature de l'acte | TVA | |||||||||||||||
| Total Cellule B1 | Activités | 322 | Livraison : nous consulter | 1 500 HT/m² | 3 % HT du prix de vente HT à la charge de l'acquéreur, payables à la signature de l'acte | TVA | B1 | |||||||||||
| Mezzanine | 45 | 3 % HT du prix de vente HT à la charge de l'acquéreur, payables à la signature de l'acte | TVA | |||||||||||||||
| RDC | Activités | 270 | 3 % HT du prix de vente HT à la charge de l'acquéreur, payables à la signature de l'acte | TVA | ||||||||||||||
| Parkings | - | 3 % HT du prix de vente HT à la charge de l'acquéreur, payables à la signature de l'acte | TVA | |||||||||||||||
| Total Cellule B2 | Activités | 315 | Livraison : nous consulter | 1 500 HT/m² | 3 % HT du prix de vente HT à la charge de l'acquéreur, payables à la signature de l'acte | TVA | B2 | |||||||||||
| Mezzanine | 45 | 3 % HT du prix de vente HT à la charge de l'acquéreur, payables à la signature de l'acte | TVA | |||||||||||||||
| RDC | Activités | 270 | 3 % HT du prix de vente HT à la charge de l'acquéreur, payables à la signature de l'acte | TVA | ||||||||||||||
| Parkings | - | 3 % HT du prix de vente HT à la charge de l'acquéreur, payables à la signature de l'acte | TVA | |||||||||||||||
| Total Cellule B3 | Activités | 315 | Livraison : nous consulter | 1 500 HT/m² | 3 % HT du prix de vente HT à la charge de l'acquéreur, payables à la signature de l'acte | TVA | B3 | |||||||||||
| Mezzanine | 45 | 3 % HT du prix de vente HT à la charge de l'acquéreur, payables à la signature de l'acte | TVA | |||||||||||||||
| RDC | Activités | 270 | 3 % HT du prix de vente HT à la charge de l'acquéreur, payables à la signature de l'acte | TVA | ||||||||||||||
| Parkings | - | 3 % HT du prix de vente HT à la charge de l'acquéreur, payables à la signature de l'acte | TVA | |||||||||||||||
| Total Cellule B4 | Activités | 315 | Livraison : nous consulter | 1 500 HT/m² | 3 % HT du prix de vente HT à la charge de l'acquéreur, payables à la signature de l'acte | TVA | B4 | |||||||||||
| Mezzanine | 45 | 3 % HT du prix de vente HT à la charge de l'acquéreur, payables à la signature de l'acte | TVA | |||||||||||||||
| RDC | Activités | 270 | 3 % HT du prix de vente HT à la charge de l'acquéreur, payables à la signature de l'acte | TVA | ||||||||||||||
| Parkings | - | 3 % HT du prix de vente HT à la charge de l'acquéreur, payables à la signature de l'acte | TVA | |||||||||||||||
| Total Cellule B5 | Activités | 315 | Livraison : nous consulter | 1 500 HT/m² | 3 % HT du prix de vente HT à la charge de l'acquéreur, payables à la signature de l'acte | TVA | B5 | |||||||||||
| Mezzanine | 45 | 3 % HT du prix de vente HT à la charge de l'acquéreur, payables à la signature de l'acte | TVA | |||||||||||||||
| RDC | Activités | 270 | 3 % HT du prix de vente HT à la charge de l'acquéreur, payables à la signature de l'acte | TVA | ||||||||||||||
| Parkings | - | 3 % HT du prix de vente HT à la charge de l'acquéreur, payables à la signature de l'acte | TVA | |||||||||||||||
| Total Cellule B6 | Activités | 315 | Livraison : nous consulter | 1 500 HT/m² | 3 % HT du prix de vente HT à la charge de l'acquéreur, payables à la signature de l'acte | TVA | B6 | |||||||||||
| Mezzanine | 45 | 3 % HT du prix de vente HT à la charge de l'acquéreur, payables à la signature de l'acte | TVA | |||||||||||||||
| RDC | Activités | 270 | 3 % HT du prix de vente HT à la charge de l'acquéreur, payables à la signature de l'acte | TVA | ||||||||||||||
| Parkings | - | 3 % HT du prix de vente HT à la charge de l'acquéreur, payables à la signature de l'acte | TVA | |||||||||||||||
| Total Cellule B7 | Activités | 315 | Livraison : nous consulter | 1 500 HT/m² | 3 % HT du prix de vente HT à la charge de l'acquéreur, payables à la signature de l'acte | TVA | B7 | |||||||||||
| Mezzanine | 47 | 3 % HT du prix de vente HT à la charge de l'acquéreur, payables à la signature de l'acte | TVA | |||||||||||||||
| RDC | Activités | 275 | 3 % HT du prix de vente HT à la charge de l'acquéreur, payables à la signature de l'acte | TVA | ||||||||||||||
| Parkings | - | 3 % HT du prix de vente HT à la charge de l'acquéreur, payables à la signature de l'acte | TVA | |||||||||||||||
| Total Cellule B8 | Activités | 322 | Livraison : nous consulter | 1 500 HT/m² | 3 % HT du prix de vente HT à la charge de l'acquéreur, payables à la signature de l'acte | TVA | B8 | |||||||||||
| Total | 5 066 m² | |||||||||||||||||
| 3 extérieur 3 extérieur 3 extérieur 3 extérieur 3 extérieur 3 extérieur 3 extérieur 3 extérieur 3 extérieur 3 extérieur 3 extérieur 3 extérieur 3 extérieur 3 extérieur 3 extérieur 3 extérieur | ||||||||||||||||||




































