Ref : 95_0533_IN
Vente Local d'activités
LOCAL D'ACTIVITE A VENDRE
Ézanville (95460)
Prix : 3 225 360 €
Surface 1 812 m²
Description du bien
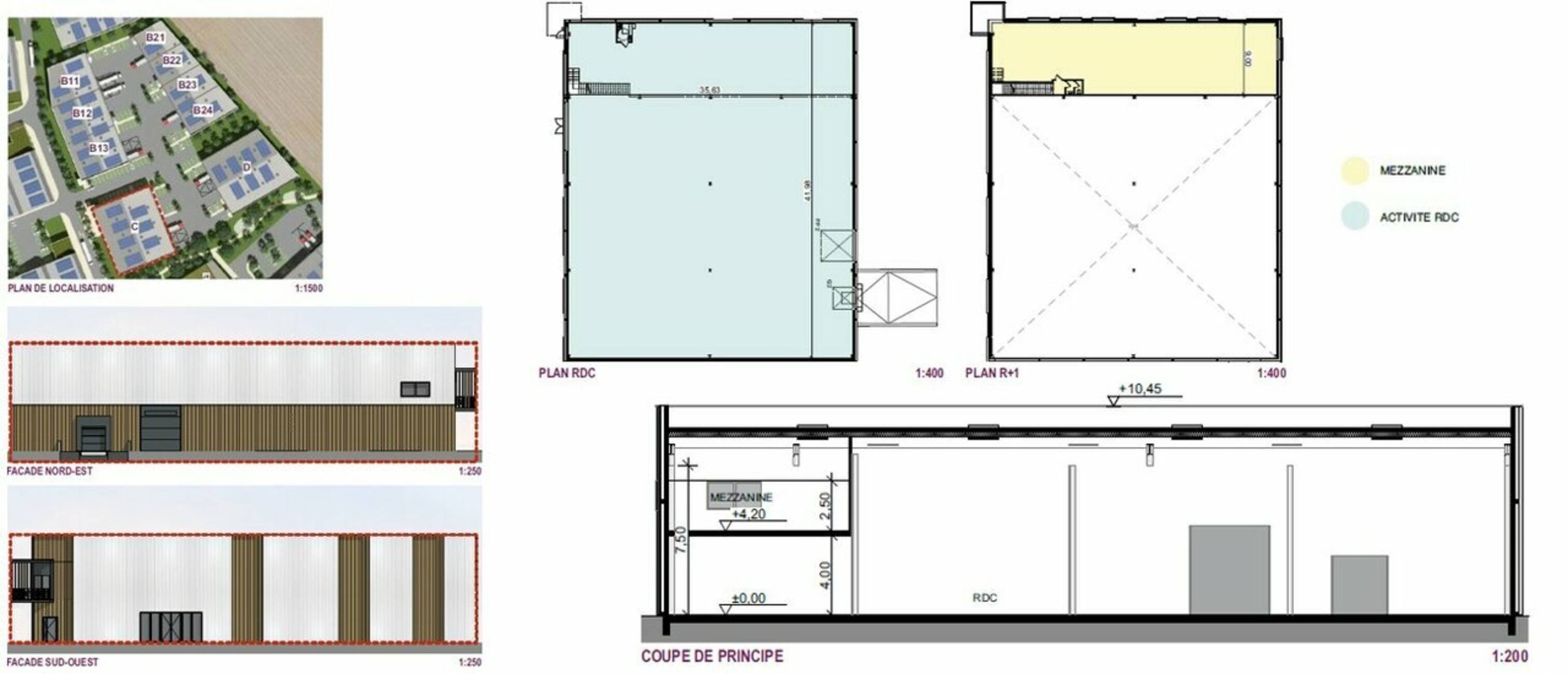
Neuf, moderne, évolutif : devenez propriétaire d'un bâtiment en VEFA de 1 812 m² situé à EZANVILLE conçu pour la performance !
N'hésitez plus contacter INVEST CONSEIL !
Prestations du bien
- Aire de manoeuvre
- Charge au sol : 3T/m²
- Eclairage LED
- Espaces verts
- Faux plafond
- Goulotte technique
- Hauteur sous plafond : 7,5 m à 4 m
- Portail sur horloge
- Porte sectionnelle : 4,5 m x 4 m
- Quai : niveleur de 2,80 m x 3 m
- Revêtement sol en moquette
- Revêtement sol quartzé
- Sanitaires PMR
- Site clos et sécurisé
- Tarif jaune
- Lots B11 à B13 :
- Hauteur libre de 7,50 m à 4 m
- Porte sectionnelle de 3,50 m x 3 m
- Quai niveleur de 2,80 m x 3 m
- Contre bardage intérieur blanc
- Eclairage industriel de 250 lux moyen
- Système d'interphone et commande du portail actionnable par téléphone GSM depuis chaque lot
- Mezzanine :
- Desservie par escalier métallique
- Plancher béton dimensionné pour 250 kg/m² de surcharge utile et 100 kg/m² de charge constante
Ce local professionnel vous est présenté par
Vous souhaitez nous joindre ?
Localisation et accessibilité
- Bus: SNCF : Ligne H
Lignes de bus à proximité - Autoroute: RD 301 / N104 / A16
Ces biens pourraient vous intéresser
| Batiment | Etage | Type | Surface totale (en m2) | Emplacement(s) de parking | Prix de vente net vendeur HT | Prix de vente au m2 HT | Disponibilité |
| Bâtiment C | Local d'activités / Bureaux | 1 812 | oui | 3 225 360 € | 1 780 € | 1er trimestre 2027 | |
| RDC | Activités | 1 502 | |||||
| R+1 | Bureaux | 310 |























