Ref : 95_0528_IN
Vente Local d'activités
LOCAL D'ACTIVITE A VENDRE
Ézanville (95460)
Prix : 21 922 250 €
Surface 12 527 m²
Divisible dès 458 m²
Description du bien
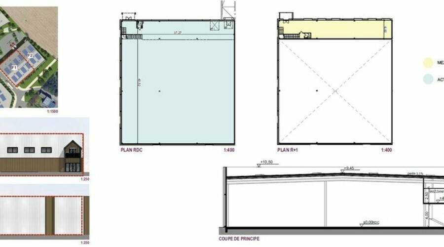
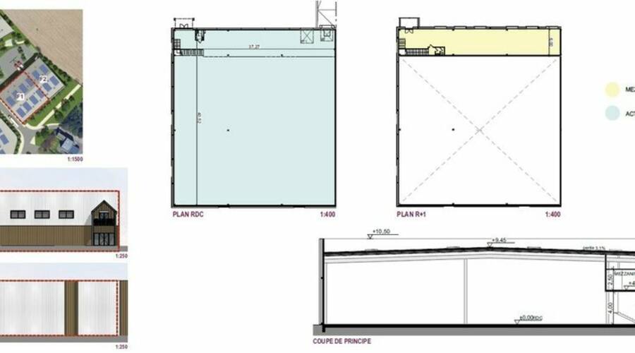
INVEST CONSEIL vous propose en VEFA des locaux d'activités de 458 m² à 1 866 m² situés dans la nouvelle zone d'activités du VAL D'EZANVILLE.
Les + :
- Offre flexible et polyvalente
- Locaux de taille variable à partir de 200 m²
- Situation au coeur de Plaine Vallée avec création d'une bretelle d'accès
Prestations du bien
- Aire de manoeuvre
- Charge au sol : 3T/m²
- Eclairage LED
- Espaces verts
- Faux plafond
- Goulotte technique
- Hauteur sous plafond : 7,5 m à 4 m
- Portail sur horloge
- Porte sectionnelle : 4,5 m x 4 m
- Quai : niveleur de 2,80 m x 3 m
- Revêtement sol en moquette
- Revêtement sol quartzé
- Sanitaires PMR
- Site clos et sécurisé
- Tarif jaune
- Lots B11 à B13 :
- Hauteur libre de 7,50 m à 4 m
- Porte sectionnelle de 3,50 m x 3 m
- Quai niveleur de 2,80 m x 3 m
- Contre bardage intérieur blanc
- Eclairage industriel de 250 lux moyen
- Système d'interphone et commande du portail actionnable par téléphone GSM depuis chaque lot
- Mezzanine :
- Desservie par escalier métallique
- Plancher béton dimensionné pour 250 kg/m² de surcharge utile et 100 kg/m² de charge constante
Ce local professionnel vous est présenté par
Vous souhaitez nous joindre ?
Surfaces des locaux
| Batiment - Lot | RDC | R+1 | Surface totale (en m2) | Parking | Prix de vente net vendeur HT | Prix de vente au m2 HT | Disponibilité |
| Bat A - Lot A2 | 1 322 | 321 | 1 643 m² | oui | 3 039 550 € | 1 850 € | 1er trimestre 2027 |
| Bâtiment B - lot B11 | 618 | 129 | 747 m² | 8 | 1 359 540 € | 1 820 € | 1er trimestre 2027 |
| Bâtiment B - lot B12 | 694 | 130 | 824 m² | 8 | 1 499 680 € | 1 820 € | 1er trimestre 2027 |
| Bâtiment B - lot B13 | 688 | 130 | 818 m² | 8 | 1 488 760 € | 1 820 € | 1er trimestre 2027 |
| Bâtiment B - lot B21 | 359 | 99 | 458 m² | 7 | 847 300 € | 1 850 € | 1er trimestre 2027 |
| Bâtiment B - lot B22 | 381 | 89 | 470 m² | 7 | 869 500 € | 1 850 € | 1er trimestre 2027 |
| Bâtiment B - lot B23 | 436 | 89 | 525 m² | 7 | 971 250 € | 1 850 € | 1er trimestre 2027 |
| Bâtiment B - lot B24 | 520 | 95 | 615 m² | 7 | 1 137 750 € | 1 850 € | 1er trimestre 2027 |
| Bâtiment C | 1 502 | 310 | 1 812 m² | oui | 3 225 360 € | 1 780 € | 1er trimestre 2027 |
| Bâtiment D | 1 544 | 322 | 1 866 m² | oui | 3 265 500 € | 1 750 € | 1er trimestre 2027 |
| Bâtiment F1 | 1 510 | 213 | 1 723 m² | oui | 3 015 250 € | 1 750 € | 1er trimestre 2027 |
| Bâtiment F2 | 900 | 126 | 1 026 m² | oui | 1 795 500 € | 1 750 € | 1er trimestre 2027 |
Localisation et accessibilité
- Bus: SNCF : Ligne H
Lignes de bus à proximité - Autoroute: RD 301 / N104 / A16
Ces biens pourraient vous intéresser
| Batiment - Lot | RDC | R+1 | Surface totale (en m2) | Parking | Prix de vente net vendeur HT | Prix de vente au m2 HT | Disponibilité |
| Bat A - Lot A2 | 1 322 | 321 | 1 643 m² | oui | 3 039 550 € | 1 850 € | 1er trimestre 2027 |
| Bâtiment B - lot B11 | 618 | 129 | 747 m² | 8 | 1 359 540 € | 1 820 € | 1er trimestre 2027 |
| Bâtiment B - lot B12 | 694 | 130 | 824 m² | 8 | 1 499 680 € | 1 820 € | 1er trimestre 2027 |
| Bâtiment B - lot B13 | 688 | 130 | 818 m² | 8 | 1 488 760 € | 1 820 € | 1er trimestre 2027 |
| Bâtiment B - lot B21 | 359 | 99 | 458 m² | 7 | 847 300 € | 1 850 € | 1er trimestre 2027 |
| Bâtiment B - lot B22 | 381 | 89 | 470 m² | 7 | 869 500 € | 1 850 € | 1er trimestre 2027 |
| Bâtiment B - lot B23 | 436 | 89 | 525 m² | 7 | 971 250 € | 1 850 € | 1er trimestre 2027 |
| Bâtiment B - lot B24 | 520 | 95 | 615 m² | 7 | 1 137 750 € | 1 850 € | 1er trimestre 2027 |
| Bâtiment C | 1 502 | 310 | 1 812 m² | oui | 3 225 360 € | 1 780 € | 1er trimestre 2027 |
| Bâtiment D | 1 544 | 322 | 1 866 m² | oui | 3 265 500 € | 1 750 € | 1er trimestre 2027 |
| Bâtiment F1 | 1 510 | 213 | 1 723 m² | oui | 3 015 250 € | 1 750 € | 1er trimestre 2027 |
| Bâtiment F2 | 900 | 126 | 1 026 m² | oui | 1 795 500 € | 1 750 € | 1er trimestre 2027 |























