Ref : 95_0537_IN
Vente Local d'activités
LOCAL D'ACTIVITE A VENDRE
Ézanville (95460)
Prix : 8 598 200 €
Surface 6 614 m²
Description du bien
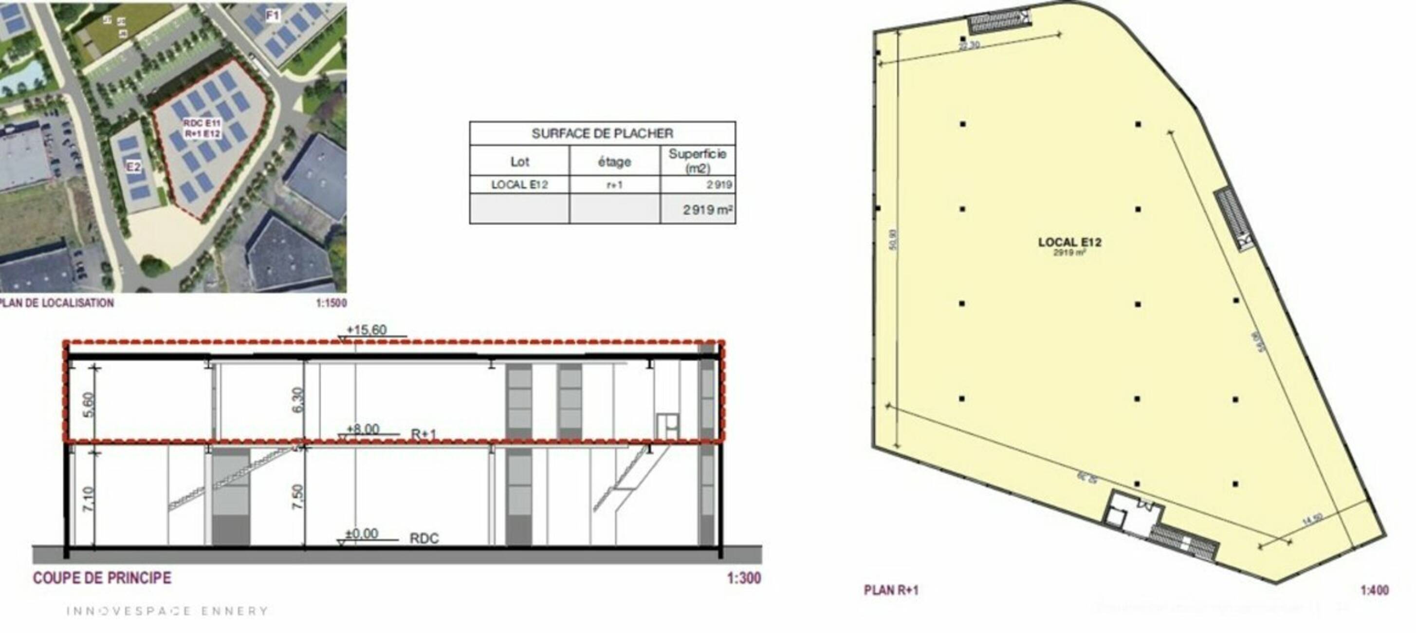
INVEST CONSEIL vous propose une vente en VEFA de locaux destinés à la création d'un Pôle Loisirs de 6 614 m² situé dans la ZAC d'EZANVILLE.
Prestations du bien
- Espaces verts
- Hauteur sous plafond : RDC : 7,50 m
- Portail sur horloge
- Revêtement sol quartzé
- Site clos et sécurisé
- Tarif bleu
- Tarif jaune
- Hauteur sous plafond en R+1 : 6,30 m
- Vitrages de type retardateur d'effraction
- Toiture-terrasse mêlant végétalisation et espaces partagés
- Lots livrés brut de béton avec fluides en attente
Ce local professionnel vous est présenté par
Vous souhaitez nous joindre ?
Localisation et accessibilité
- Bus: SNCF : Ligne H
Lignes de bus à proximité - Autoroute: N104 / N104 / A16
Ces biens pourraient vous intéresser
| Lot | RDC | R+1 | Surface totale (en m2) | Emplacement(s) de parking | Prix de vente net vendeur HT | Prix de vente au m2 HT | Disponibilité |
| Lot E1 | 2 895 | ||||||
| Lot E1 | 2 919 | 2 919 | |||||
| Lot E2 | 800 | 800 |























