Ref : 1345650-0V_MA
Vente Local d'activités
FIRMINY - A VENDRE - LOCAUX D'ACTIVITÉS
Firminy (42700)
Prix : 865 792 €
Surface 1 389 m²
Divisible dès 245 m²
Description du bien
MALSH Realty & Property propose à la vente plusieurs surfaces industrielles, ainsi qu'une surface tertiaire et une commerciale sur FIRMINY. Ces volumes peuvent être jouxtés et sont proposés à parti r de 245 m²
Prestations du bien
- Construction 1974 (stockage et bureaux) et 2009 pour l'exposition
- Trois bâtiments comme suit
- Stockage: 9 lots de 250 m² à 569 m²
- Structure métallique
- Toiture eternit avec isolation shedisol en sous toiture
- Bardage double peau
- Dalle en partie diamantée sur les circulations 4,50 m à 5 m
- 1 portail 4 m x 5 m pour chaque
- Mezzanine sur certains lots
- Exposition / Show Room: 380 m² (Lot 11)
- Structure métallique
- Bardage double peau
- Toiture bac acier multicouche
- Sol dalle moquette sur les deux niveaux
- Chauffage aérotherme gaz et climatisation à l'étage
- 1 w.c
- Terrain indépendant de 6 117 m² (4 639 m² utiles)
Informations financières
- Taxe foncière : 5 €
Ce local professionnel vous est présenté par
Vous souhaitez nous joindre ?
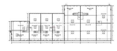
Surfaces des locaux
| Étage | Bâtiment | Type | Surfaces | Disponibilité | Loyer | Charges | Honoraires | Fiscal | Bail | Révision annuelle | Prix | Charges | Honoraires | Fiscal | Paiement Loyer | lot | Coworking | |
|---|---|---|---|---|---|---|---|---|---|---|---|---|---|---|---|---|---|---|
| RDC | Activités | 395,3 | 622,31 m² HD | Droits d'enregistrement | Lot 8 | |||||||||||||
| RDC | Show Room | 380 | 673,68 m² HD | Droits d'enregistrement | Lot 11 | |||||||||||||
| RDC | Activités | 369 | 617,89 m² HD | Droits d'enregistrement | Lots 10 et 14 | |||||||||||||
| RDC | Activités | 245,1 | 632,39 m² HD | Droits d'enregistrement | Lot 9 | |||||||||||||
| Total | 1 389,4 m² |
Localisation et accessibilité
- Bus: SUPERMARCHE (BUS-33), ZONE COMMERCIALE (BUS-32)
- SCNF: Firminy (France)
- Autoroute: RN88 Sortie Firminy Chazeau
| Étage | Bâtiment | Type | Surfaces | Disponibilité | Loyer | Charges | Honoraires | Fiscal | Bail | Révision annuelle | Prix | Charges | Honoraires | Fiscal | Paiement Loyer | lot | Coworking | |
|---|---|---|---|---|---|---|---|---|---|---|---|---|---|---|---|---|---|---|
| RDC | Activités | 395,3 | 622,31 m² HD | Droits d'enregistrement | Lot 8 | |||||||||||||
| RDC | Show Room | 380 | 673,68 m² HD | Droits d'enregistrement | Lot 11 | |||||||||||||
| RDC | Activités | 369 | 617,89 m² HD | Droits d'enregistrement | Lots 10 et 14 | |||||||||||||
| RDC | Activités | 245,1 | 632,39 m² HD | Droits d'enregistrement | Lot 9 | |||||||||||||
| Total | 1 389,4 m² |

































