Indisponible
Ref : 95_0539_IN
Vente Local d'activités
LOCAL D'ACTIVITE A VENDRE
Groslay (95410)
Surface 467 m²
Description du bien
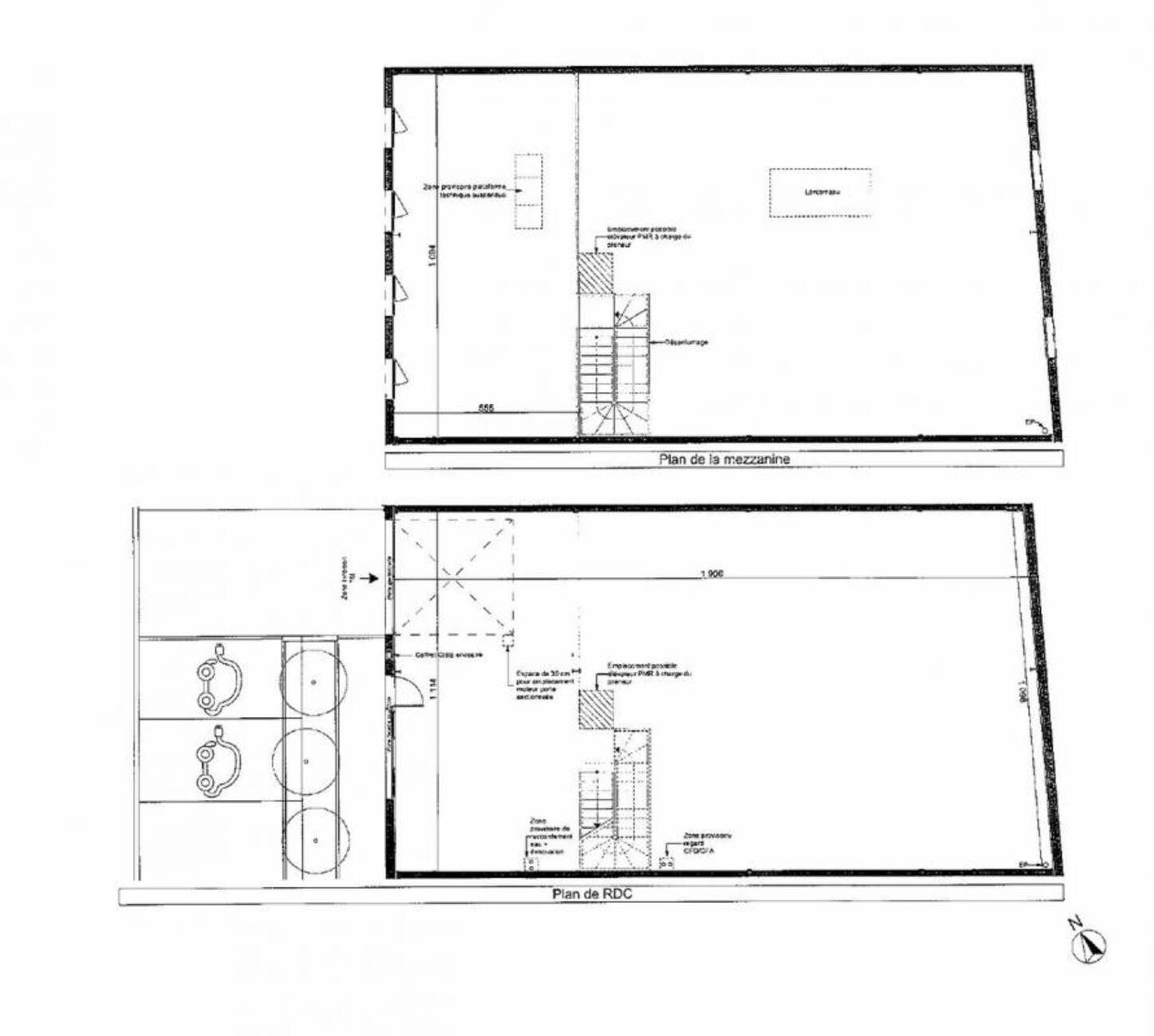
INVEST CONSEIL vous propose un local d'activités neufs de 467 m² dans la nouvelle ZAC des Monts du Val d'Oise à GROSLAY.
Les + :
- Cadre de vie agréable et animé
- Emplacement stratégique sur l'axe RN1
- Ecosystème végétal
Prestations du bien
- Accès de plain pied
- Accès poids lourds
- Charge au sol : 3T/m²
- Fluides en attente
- Hauteur libre sous poutre : 7 m dans la partie acti.
- Parking
- Porte sectionnelle : 3 m (l) x 3,5 m (h)
- RE 2020
- Revêtement sol quartzé
- Site clos et sécurisé
- Skydome
- Cellule livrée avec finition brute
- Mezzanine aménageable sur deux niveaux, en bureaux
- Aire de déchargement 16T disponible
- Labellisation BIODIVERSITY à l'échelle du quartier
Ce local professionnel vous est présenté par
Vous souhaitez nous joindre ?
Localisation et accessibilité
- Bus: Ligne H - Gare de "Groslay"
T5 - Sarcelles
Bus Transdev : Ligne 37 - Autoroute: N1 / A1 / N16 / A104
| Batiment - Lot | Etage | Type | Surface totale (en m2) | Emplacement(s) de parking | Prix de vente net vendeur HT | Prix de vente au m2 HT | Disponibilité |
| Bat 4E - Lot 04 | Local d'activités / Bureaux | 467 | 4 | 974 000,00 € | 2 085,65 € | Mai 2025 | |
| RDC | Activités | 254 | |||||
| R+1 | Bureaux | 149 | |||||
| R+2 | Bureaux | 64 |

































