Ref : 3448219499_TH
Vente Local d'activités
LOCAL D'ACTIVITE - ENTREPOT A VENDRE
Mauguio (34130)
Prix : 2 500 000 €
Surface 1 620 m²
Description du bien
Thélène Entreprises vous propose à la vente :
Un bâtiment indépendant d'une surface d'environ 1 620 m² sur une parcelle clôturée et goudronnée d'environ 2 920m².
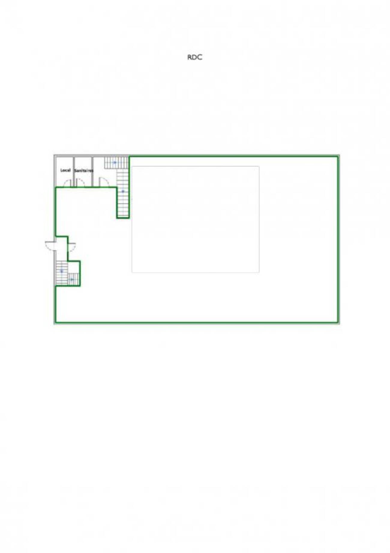
Entrepôt RDC de 1 440 m² équipé de 5 portes sectionnelles de 3m*4m de hauteur et 1 porte sectionnelle de 4m*5m de hauteur.
Grande Hauteur sous Plafond ( de 10m à 8m80 et de 5m20 sous la mezzanine des bureaux).
Dalle béton au sol, charpente métallique, bardage double peau et toiture isolée.
Bureaux en 1er étage d'environ 180 m² - lumineux, cloisonnés.
Environ 30 emplacements de parking.
Proche sortie A9, Aéroport et Gare TGV.
Prix de vente net vendeur : 2.500.000 Euros
Honoraires à la charge de l'acquéreur : 4% HT
Retrouvez l'ensemble de nos offres sur notre site : https://www.thelene-entreprises.com/
Les informations sur les risques auxquels ce bien est exposé sont disponibles sur le site Géorisques : www.georisques.gouv.fr
Prestations du bien
- Accès plain-pied
- Bureaux cloisonnés
- Façade bardage double peau
- Faux plafond
- Hauteur sous plafond : 10m
- Nbre Parkings extérieurs : 30
- Porte sectionnelle motorisée : 4m50 (H) x 4m (L)
- Portes plain-pied : 6
- Site clos
- Skydome
- Terrain bitumé
Informations financières
- Taxe foncière : 17 894 €
Ce local professionnel vous est présenté par
Vous souhaitez nous joindre ?
Localisation et accessibilité
- Autoroute: A9
| Batiment - Lot | Etage | Type | Surface |
| RDC | Entrepôt | 1440m² | |
| 1er étage | Bureaux | 180m² |













































