Ref : 1326048-0_MA
Vente Local d'activités
Vente ou Location Locaux d'Activités - Montmerle-sur-Saône (01090) - 945 m² divisibles en 7 lots de 135 m²
Montmerle-sur-Saône (01090)
Prix : 945 000 €
Surface 945 m²
Divisible dès 135 m²
Description du bien
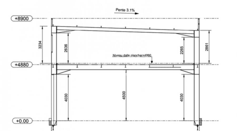
MALSH Realty vous propose à la vente ou à la location au sein d'un parc d'activités à Montmerle-sur-Saône, des locaux d'activités neufs d'une surface totale d'environ 945 m² divisibles en 7 lots de 135 m² comprenant 70 m² d'activités en RDC et 65 m² de bureaux en R+1.
Ce bâtiment se distingue par une charpente métallique, une hauteur sous plafond de 4,5 mètres, et une porte sectionnelle de 4 x 4 mètres pour chaque lot. La structure bénéficie d'un bardage double peau et d'une couverture isolée en bac acier, garantissant un environnement de travail performant. Deux places de parking privatives sont incluses par lot.
Disponible immédiatement !
Prestations du bien
- Accès de plain-pied / Accès semi
- 1 porte sectionnelle (4 m x 4 m) pour chaque lot
- Porte sectionnelle manuelle (motorisation possible)
- Enseigne possible en façade
- 2 places de parking privatives pour chaque lot
- Charpente métallique
- Hauteur : 4,5 mètres
- Structure : bardage double peau
- Couverture : bac acier / Isolation
- Dalle béton
- Charges au sol : 1,5T/m²
- Arrivée d'eau et évacuation
- Tableau électrique 16A
- Triphasé sur les 2 lots situés aux extrémités du bâtiment
- Bureaux en R+1
- Charge au sol : 350 kg/m²
- Aménagement à la charge du preneur
Informations financières
- Bail : commercial 3-6-9 ans
- Taxe foncière : 5 €
- Dépôt de garantie : 3 mois de loyer HT/HC
Ce local professionnel vous est présenté par
Vous souhaitez nous joindre ?
Surfaces des locaux
| Étage | Bâtiment | Type | Surfaces | Disponibilité | Loyer | Charges | Honoraires | Fiscal | Bail | Révision annuelle | Prix | Charges | Honoraires | Fiscal | Paiement Loyer | lot | Coworking | |
|---|---|---|---|---|---|---|---|---|---|---|---|---|---|---|---|---|---|---|
| R+1 | Bureaux | 65 | 15 % HT du loyer annuel HT/HC, à la charge du Preneur, payables à la signature du bail | T.V.A. (20%) | ILAT Indice des Loyers des Activités Tertiaires | 5 % HT du prix de vente HT, à la charge de l'acquéreur, payables à la signature de l'acte | TVA | Trimestriel d'avance | ||||||||||
| RDC | Activités | 70 | 15 % HT du loyer annuel HT/HC, à la charge du Preneur, payables à la signature du bail | T.V.A. (20%) | ILAT Indice des Loyers des Activités Tertiaires | 5 % HT du prix de vente HT, à la charge de l'acquéreur, payables à la signature de l'acte | TVA | Trimestriel d'avance | ||||||||||
| Total Cellule 1 | Activités | 135 | Immédiate | 90 HT/HC/m²/an | 15 % HT du loyer annuel HT/HC, à la charge du Preneur, payables à la signature du bail | T.V.A. (20%) | commercial 3-6-9 ans | ILAT Indice des Loyers des Activités Tertiaires | 1 000 HT/m² | 5 % HT du prix de vente HT, à la charge de l'acquéreur, payables à la signature de l'acte | TVA | Trimestriel d'avance | 1 | |||||
| R+1 | Bureaux | 65 | 15 % HT du loyer annuel HT/HC, à la charge du Preneur, payables à la signature du bail | T.V.A. (20%) | ILAT Indice des Loyers des Activités Tertiaires | 5 % HT du prix de vente HT, à la charge de l'acquéreur, payables à la signature de l'acte | TVA | Trimestriel d'avance | ||||||||||
| RDC | Activités | 70 | 15 % HT du loyer annuel HT/HC, à la charge du Preneur, payables à la signature du bail | T.V.A. (20%) | ILAT Indice des Loyers des Activités Tertiaires | 5 % HT du prix de vente HT, à la charge de l'acquéreur, payables à la signature de l'acte | TVA | Trimestriel d'avance | ||||||||||
| Total Cellule 2 | Activités | 135 | Immédiate | 90 HT/HC/m²/an | 15 % HT du loyer annuel HT/HC, à la charge du Preneur, payables à la signature du bail | T.V.A. (20%) | commercial 3-6-9 ans | ILAT Indice des Loyers des Activités Tertiaires | 1 000 HT/m² | 5 % HT du prix de vente HT, à la charge de l'acquéreur, payables à la signature de l'acte | TVA | Trimestriel d'avance | 2 | |||||
| R+1 | Bureaux | 65 | 15 % HT du loyer annuel HT/HC, à la charge du Preneur, payables à la signature du bail | T.V.A. (20%) | ILAT Indice des Loyers des Activités Tertiaires | 5 % HT du prix de vente HT, à la charge de l'acquéreur, payables à la signature de l'acte | TVA | Trimestriel d'avance | ||||||||||
| RDC | Activités | 70 | 15 % HT du loyer annuel HT/HC, à la charge du Preneur, payables à la signature du bail | T.V.A. (20%) | ILAT Indice des Loyers des Activités Tertiaires | 5 % HT du prix de vente HT, à la charge de l'acquéreur, payables à la signature de l'acte | TVA | Trimestriel d'avance | ||||||||||
| Total Cellule 3 | Activités | 135 | Immédiate | 90 HT/HC/m²/an | 15 % HT du loyer annuel HT/HC, à la charge du Preneur, payables à la signature du bail | T.V.A. (20%) | commercial 3-6-9 ans | ILAT Indice des Loyers des Activités Tertiaires | 1 000 HT/m² | 5 % HT du prix de vente HT, à la charge de l'acquéreur, payables à la signature de l'acte | TVA | Trimestriel d'avance | 3 | |||||
| R+1 | Bureaux | 65 | 15 % HT du loyer annuel HT/HC, à la charge du Preneur, payables à la signature du bail | T.V.A. (20%) | ILAT Indice des Loyers des Activités Tertiaires | 5 % HT du prix de vente HT, à la charge de l'acquéreur, payables à la signature de l'acte | TVA | Trimestriel d'avance | ||||||||||
| RDC | Activités | 70 | 15 % HT du loyer annuel HT/HC, à la charge du Preneur, payables à la signature du bail | T.V.A. (20%) | ILAT Indice des Loyers des Activités Tertiaires | 5 % HT du prix de vente HT, à la charge de l'acquéreur, payables à la signature de l'acte | TVA | Trimestriel d'avance | ||||||||||
| Total Cellule 4 | Activités | 135 | Immédiate | 90 HT/HC/m²/an | 15 % HT du loyer annuel HT/HC, à la charge du Preneur, payables à la signature du bail | T.V.A. (20%) | commercial 3-6-9 ans | ILAT Indice des Loyers des Activités Tertiaires | 1 000 HT/m² | 5 % HT du prix de vente HT, à la charge de l'acquéreur, payables à la signature de l'acte | TVA | Trimestriel d'avance | 4 | |||||
| R+1 | Bureaux | 65 | 15 % HT du loyer annuel HT/HC, à la charge du Preneur, payables à la signature du bail | T.V.A. (20%) | ILAT Indice des Loyers des Activités Tertiaires | 5 % HT du prix de vente HT, à la charge de l'acquéreur, payables à la signature de l'acte | TVA | Trimestriel d'avance | ||||||||||
| RDC | Activités | 70 | 15 % HT du loyer annuel HT/HC, à la charge du Preneur, payables à la signature du bail | T.V.A. (20%) | ILAT Indice des Loyers des Activités Tertiaires | 5 % HT du prix de vente HT, à la charge de l'acquéreur, payables à la signature de l'acte | TVA | Trimestriel d'avance | ||||||||||
| Total Cellule 5 | Activités | 135 | Immédiate | 90 HT/HC/m²/an | 15 % HT du loyer annuel HT/HC, à la charge du Preneur, payables à la signature du bail | T.V.A. (20%) | commercial 3-6-9 ans | ILAT Indice des Loyers des Activités Tertiaires | 1 000 HT/m² | 5 % HT du prix de vente HT, à la charge de l'acquéreur, payables à la signature de l'acte | TVA | Trimestriel d'avance | 5 | |||||
| R+1 | Bureaux | 65 | 15 % HT du loyer annuel HT/HC, à la charge du Preneur, payables à la signature du bail | T.V.A. (20%) | ILAT Indice des Loyers des Activités Tertiaires | 5 % HT du prix de vente HT, à la charge de l'acquéreur, payables à la signature de l'acte | TVA | Trimestriel d'avance | ||||||||||
| RDC | Activités | 70 | 15 % HT du loyer annuel HT/HC, à la charge du Preneur, payables à la signature du bail | T.V.A. (20%) | ILAT Indice des Loyers des Activités Tertiaires | 5 % HT du prix de vente HT, à la charge de l'acquéreur, payables à la signature de l'acte | TVA | Trimestriel d'avance | ||||||||||
| Total Cellule 6 | Activités | 135 | Immédiate | 90 HT/HC/m²/an | 15 % HT du loyer annuel HT/HC, à la charge du Preneur, payables à la signature du bail | T.V.A. (20%) | commercial 3-6-9 ans | ILAT Indice des Loyers des Activités Tertiaires | 1 000 HT/m² | 5 % HT du prix de vente HT, à la charge de l'acquéreur, payables à la signature de l'acte | TVA | Trimestriel d'avance | 6 | |||||
| R+1 | Bureaux | 65 | 15 % HT du loyer annuel HT/HC, à la charge du Preneur, payables à la signature du bail | T.V.A. (20%) | ILAT Indice des Loyers des Activités Tertiaires | 5 % HT du prix de vente HT, à la charge de l'acquéreur, payables à la signature de l'acte | TVA | Trimestriel d'avance | ||||||||||
| RDC | Activités | 70 | 15 % HT du loyer annuel HT/HC, à la charge du Preneur, payables à la signature du bail | T.V.A. (20%) | ILAT Indice des Loyers des Activités Tertiaires | 5 % HT du prix de vente HT, à la charge de l'acquéreur, payables à la signature de l'acte | TVA | Trimestriel d'avance | ||||||||||
| Total Cellule 7 | Activités | 135 | Immédiate | 90 HT/HC/m²/an | 15 % HT du loyer annuel HT/HC, à la charge du Preneur, payables à la signature du bail | T.V.A. (20%) | commercial 3-6-9 ans | ILAT Indice des Loyers des Activités Tertiaires | 1 000 HT/m² | 5 % HT du prix de vente HT, à la charge de l'acquéreur, payables à la signature de l'acte | TVA | Trimestriel d'avance | 7 | |||||
| Total | 945 m² |
Localisation et accessibilité
- Autoroute: A proximité immédiate de l'autoroute A6 (sortie n° 30 Belleville-sur-Saône à 5 min)
Ces biens pourraient vous intéresser
| Étage | Bâtiment | Type | Surfaces | Disponibilité | Loyer | Charges | Honoraires | Fiscal | Bail | Révision annuelle | Prix | Charges | Honoraires | Fiscal | Paiement Loyer | lot | Coworking | |
|---|---|---|---|---|---|---|---|---|---|---|---|---|---|---|---|---|---|---|
| R+1 | Bureaux | 65 | 15 % HT du loyer annuel HT/HC, à la charge du Preneur, payables à la signature du bail | T.V.A. (20%) | ILAT Indice des Loyers des Activités Tertiaires | 5 % HT du prix de vente HT, à la charge de l'acquéreur, payables à la signature de l'acte | TVA | Trimestriel d'avance | ||||||||||
| RDC | Activités | 70 | 15 % HT du loyer annuel HT/HC, à la charge du Preneur, payables à la signature du bail | T.V.A. (20%) | ILAT Indice des Loyers des Activités Tertiaires | 5 % HT du prix de vente HT, à la charge de l'acquéreur, payables à la signature de l'acte | TVA | Trimestriel d'avance | ||||||||||
| Total Cellule 1 | Activités | 135 | Immédiate | 90 HT/HC/m²/an | 15 % HT du loyer annuel HT/HC, à la charge du Preneur, payables à la signature du bail | T.V.A. (20%) | commercial 3-6-9 ans | ILAT Indice des Loyers des Activités Tertiaires | 1 000 HT/m² | 5 % HT du prix de vente HT, à la charge de l'acquéreur, payables à la signature de l'acte | TVA | Trimestriel d'avance | 1 | |||||
| R+1 | Bureaux | 65 | 15 % HT du loyer annuel HT/HC, à la charge du Preneur, payables à la signature du bail | T.V.A. (20%) | ILAT Indice des Loyers des Activités Tertiaires | 5 % HT du prix de vente HT, à la charge de l'acquéreur, payables à la signature de l'acte | TVA | Trimestriel d'avance | ||||||||||
| RDC | Activités | 70 | 15 % HT du loyer annuel HT/HC, à la charge du Preneur, payables à la signature du bail | T.V.A. (20%) | ILAT Indice des Loyers des Activités Tertiaires | 5 % HT du prix de vente HT, à la charge de l'acquéreur, payables à la signature de l'acte | TVA | Trimestriel d'avance | ||||||||||
| Total Cellule 2 | Activités | 135 | Immédiate | 90 HT/HC/m²/an | 15 % HT du loyer annuel HT/HC, à la charge du Preneur, payables à la signature du bail | T.V.A. (20%) | commercial 3-6-9 ans | ILAT Indice des Loyers des Activités Tertiaires | 1 000 HT/m² | 5 % HT du prix de vente HT, à la charge de l'acquéreur, payables à la signature de l'acte | TVA | Trimestriel d'avance | 2 | |||||
| R+1 | Bureaux | 65 | 15 % HT du loyer annuel HT/HC, à la charge du Preneur, payables à la signature du bail | T.V.A. (20%) | ILAT Indice des Loyers des Activités Tertiaires | 5 % HT du prix de vente HT, à la charge de l'acquéreur, payables à la signature de l'acte | TVA | Trimestriel d'avance | ||||||||||
| RDC | Activités | 70 | 15 % HT du loyer annuel HT/HC, à la charge du Preneur, payables à la signature du bail | T.V.A. (20%) | ILAT Indice des Loyers des Activités Tertiaires | 5 % HT du prix de vente HT, à la charge de l'acquéreur, payables à la signature de l'acte | TVA | Trimestriel d'avance | ||||||||||
| Total Cellule 3 | Activités | 135 | Immédiate | 90 HT/HC/m²/an | 15 % HT du loyer annuel HT/HC, à la charge du Preneur, payables à la signature du bail | T.V.A. (20%) | commercial 3-6-9 ans | ILAT Indice des Loyers des Activités Tertiaires | 1 000 HT/m² | 5 % HT du prix de vente HT, à la charge de l'acquéreur, payables à la signature de l'acte | TVA | Trimestriel d'avance | 3 | |||||
| R+1 | Bureaux | 65 | 15 % HT du loyer annuel HT/HC, à la charge du Preneur, payables à la signature du bail | T.V.A. (20%) | ILAT Indice des Loyers des Activités Tertiaires | 5 % HT du prix de vente HT, à la charge de l'acquéreur, payables à la signature de l'acte | TVA | Trimestriel d'avance | ||||||||||
| RDC | Activités | 70 | 15 % HT du loyer annuel HT/HC, à la charge du Preneur, payables à la signature du bail | T.V.A. (20%) | ILAT Indice des Loyers des Activités Tertiaires | 5 % HT du prix de vente HT, à la charge de l'acquéreur, payables à la signature de l'acte | TVA | Trimestriel d'avance | ||||||||||
| Total Cellule 4 | Activités | 135 | Immédiate | 90 HT/HC/m²/an | 15 % HT du loyer annuel HT/HC, à la charge du Preneur, payables à la signature du bail | T.V.A. (20%) | commercial 3-6-9 ans | ILAT Indice des Loyers des Activités Tertiaires | 1 000 HT/m² | 5 % HT du prix de vente HT, à la charge de l'acquéreur, payables à la signature de l'acte | TVA | Trimestriel d'avance | 4 | |||||
| R+1 | Bureaux | 65 | 15 % HT du loyer annuel HT/HC, à la charge du Preneur, payables à la signature du bail | T.V.A. (20%) | ILAT Indice des Loyers des Activités Tertiaires | 5 % HT du prix de vente HT, à la charge de l'acquéreur, payables à la signature de l'acte | TVA | Trimestriel d'avance | ||||||||||
| RDC | Activités | 70 | 15 % HT du loyer annuel HT/HC, à la charge du Preneur, payables à la signature du bail | T.V.A. (20%) | ILAT Indice des Loyers des Activités Tertiaires | 5 % HT du prix de vente HT, à la charge de l'acquéreur, payables à la signature de l'acte | TVA | Trimestriel d'avance | ||||||||||
| Total Cellule 5 | Activités | 135 | Immédiate | 90 HT/HC/m²/an | 15 % HT du loyer annuel HT/HC, à la charge du Preneur, payables à la signature du bail | T.V.A. (20%) | commercial 3-6-9 ans | ILAT Indice des Loyers des Activités Tertiaires | 1 000 HT/m² | 5 % HT du prix de vente HT, à la charge de l'acquéreur, payables à la signature de l'acte | TVA | Trimestriel d'avance | 5 | |||||
| R+1 | Bureaux | 65 | 15 % HT du loyer annuel HT/HC, à la charge du Preneur, payables à la signature du bail | T.V.A. (20%) | ILAT Indice des Loyers des Activités Tertiaires | 5 % HT du prix de vente HT, à la charge de l'acquéreur, payables à la signature de l'acte | TVA | Trimestriel d'avance | ||||||||||
| RDC | Activités | 70 | 15 % HT du loyer annuel HT/HC, à la charge du Preneur, payables à la signature du bail | T.V.A. (20%) | ILAT Indice des Loyers des Activités Tertiaires | 5 % HT du prix de vente HT, à la charge de l'acquéreur, payables à la signature de l'acte | TVA | Trimestriel d'avance | ||||||||||
| Total Cellule 6 | Activités | 135 | Immédiate | 90 HT/HC/m²/an | 15 % HT du loyer annuel HT/HC, à la charge du Preneur, payables à la signature du bail | T.V.A. (20%) | commercial 3-6-9 ans | ILAT Indice des Loyers des Activités Tertiaires | 1 000 HT/m² | 5 % HT du prix de vente HT, à la charge de l'acquéreur, payables à la signature de l'acte | TVA | Trimestriel d'avance | 6 | |||||
| R+1 | Bureaux | 65 | 15 % HT du loyer annuel HT/HC, à la charge du Preneur, payables à la signature du bail | T.V.A. (20%) | ILAT Indice des Loyers des Activités Tertiaires | 5 % HT du prix de vente HT, à la charge de l'acquéreur, payables à la signature de l'acte | TVA | Trimestriel d'avance | ||||||||||
| RDC | Activités | 70 | 15 % HT du loyer annuel HT/HC, à la charge du Preneur, payables à la signature du bail | T.V.A. (20%) | ILAT Indice des Loyers des Activités Tertiaires | 5 % HT du prix de vente HT, à la charge de l'acquéreur, payables à la signature de l'acte | TVA | Trimestriel d'avance | ||||||||||
| Total Cellule 7 | Activités | 135 | Immédiate | 90 HT/HC/m²/an | 15 % HT du loyer annuel HT/HC, à la charge du Preneur, payables à la signature du bail | T.V.A. (20%) | commercial 3-6-9 ans | ILAT Indice des Loyers des Activités Tertiaires | 1 000 HT/m² | 5 % HT du prix de vente HT, à la charge de l'acquéreur, payables à la signature de l'acte | TVA | Trimestriel d'avance | 7 | |||||
| Total | 945 m² |































