Ref : 1351360-0V_MA
Vente Local d'activités
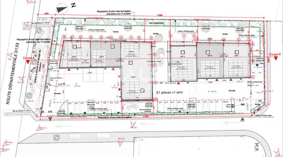
Vente Locaux d'Activités neufs - Saint Etienne la Varenne (69460) - 300 m² divisibles à partir de 137 m²
Saint-Étienne-la-Varenne (69460)
Prix : 435 000 €
Surface 300 m²
Divisible dès 137 m²
Description du bien
MALSH Realty & Property vous propose à la vente au coeur de la ZA de la Jonchère à Saint-Etienne-la-Varenne, au sein d'un nouveau parc d'activités clos composé de 2 bâtiments, nous vous proposons à la vente, des locaux d'activités neufs à partir de 137 m².
Livraison brut de béton, fluides en attente.
Plus que 2 lots disponibles !
Prestations du bien
- Livrés bruts de béton et fluides en attente
- Stationnements : 24 places de parking dont 1 PMR
Ce local professionnel vous est présenté par
Vous souhaitez nous joindre ?
Surfaces des locaux
| Étage | Bâtiment | Type | Surfaces | Disponibilité | Loyer | Charges | Honoraires | Fiscal | Bail | Révision annuelle | Prix | Charges | Honoraires | Fiscal | Paiement Loyer | lot | Coworking | |
|---|---|---|---|---|---|---|---|---|---|---|---|---|---|---|---|---|---|---|
| Mezzanine | 37 | 5 % HT du prix de vente HT, à la charge de l'acquéreur, payables à la signature de l'acte | TVA | |||||||||||||||
| RDC | Activités | 126 | 5 % HT du prix de vente HT, à la charge de l'acquéreur, payables à la signature de l'acte | TVA | ||||||||||||||
| Total Cellule 5 | Activités | 163 | Immédiate | 1 450 HT/m² | 5 % HT du prix de vente HT, à la charge de l'acquéreur, payables à la signature de l'acte | TVA | 5 | |||||||||||
| Mezzanine | 37 | 5 % HT du prix de vente HT, à la charge de l'acquéreur, payables à la signature de l'acte | TVA | |||||||||||||||
| RDC | Activités | 100 | 5 % HT du prix de vente HT, à la charge de l'acquéreur, payables à la signature de l'acte | TVA | ||||||||||||||
| Total Cellule 6 | Activités | 137 | Immédiate | 1 450 HT/m² | 5 % HT du prix de vente HT, à la charge de l'acquéreur, payables à la signature de l'acte | TVA | 6 | |||||||||||
| Total | 300 m² |
Localisation et accessibilité
- Autoroute: À 10 km de l'autoroute A6 (Belleville-en-Beaujolais ou Arnas)
Ces biens pourraient vous intéresser
| Étage | Bâtiment | Type | Surfaces | Disponibilité | Loyer | Charges | Honoraires | Fiscal | Bail | Révision annuelle | Prix | Charges | Honoraires | Fiscal | Paiement Loyer | lot | Coworking | |
|---|---|---|---|---|---|---|---|---|---|---|---|---|---|---|---|---|---|---|
| Mezzanine | 37 | 5 % HT du prix de vente HT, à la charge de l'acquéreur, payables à la signature de l'acte | TVA | |||||||||||||||
| RDC | Activités | 126 | 5 % HT du prix de vente HT, à la charge de l'acquéreur, payables à la signature de l'acte | TVA | ||||||||||||||
| Total Cellule 5 | Activités | 163 | Immédiate | 1 450 HT/m² | 5 % HT du prix de vente HT, à la charge de l'acquéreur, payables à la signature de l'acte | TVA | 5 | |||||||||||
| Mezzanine | 37 | 5 % HT du prix de vente HT, à la charge de l'acquéreur, payables à la signature de l'acte | TVA | |||||||||||||||
| RDC | Activités | 100 | 5 % HT du prix de vente HT, à la charge de l'acquéreur, payables à la signature de l'acte | TVA | ||||||||||||||
| Total Cellule 6 | Activités | 137 | Immédiate | 1 450 HT/m² | 5 % HT du prix de vente HT, à la charge de l'acquéreur, payables à la signature de l'acte | TVA | 6 | |||||||||||
| Total | 300 m² |



















































