Ref : 3448219927_TH
Vente Local d'activités
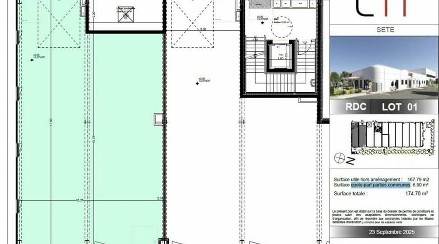
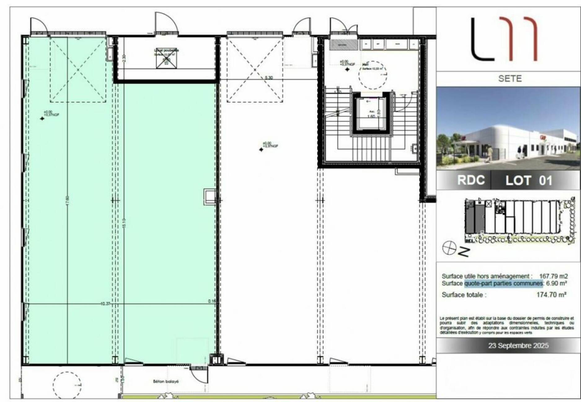
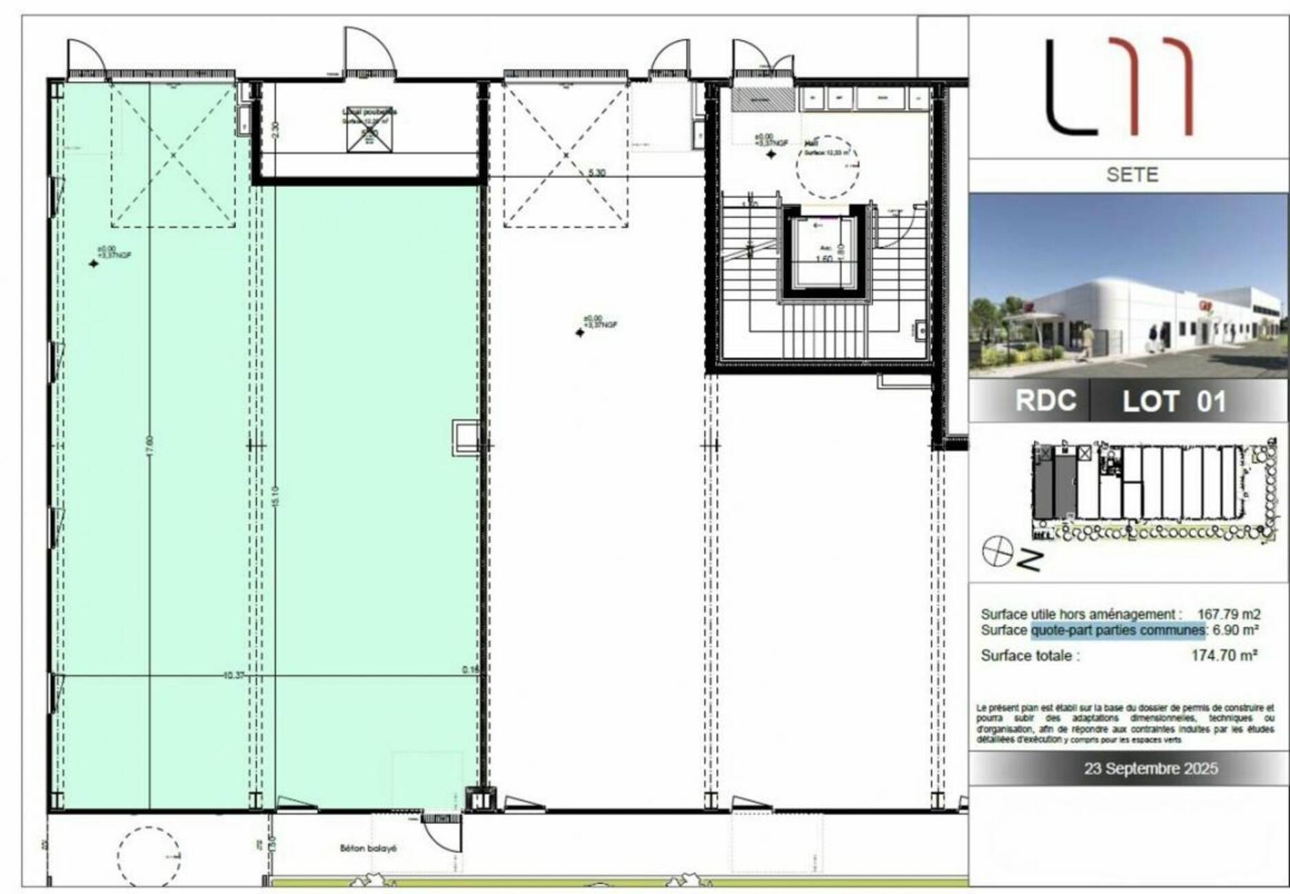
LOCAL D'ACTIVITE - ENTREPOT A VENDRE
Sète (34200)
Prix : 295 226 €
Surface 174 m²
Description du bien
Thélène Entreprises vous propose à la vente :
Situé dans la zone d'activité des Eaux Blanches, un local d'activité de 175 m² environ (quote-part parties communes incluses), livré brut de décoffrage.
2 places de parking privatives.
Possibilité d'acquérir une surface de bureaux complémentaire en R+1
Prix de vente parkings : 7 000 Euros HT/l'unité
Prix de vente : 1 690 Euros HT/m² (honoraires de commercialisation en sus : 3% HT du prix de vente HT)
Retrouvez l'ensemble de nos offres sur notre site : https://www.thelene-entreprises.com/
Les informations sur les risques auxquels ce bien est exposé sont disponibles sur le site Géorisques : www.georisques.gouv.fr
Prestations du bien
- Brut de décoffrage
- Nbre Parkings extérieurs privatifs : 2
Ce local professionnel vous est présenté par
Vous souhaitez nous joindre ?
Localisation et accessibilité
| Batiment - Lot | Etage | Type | Surface | Prix vente | Prix vente m2 | Parkings | Disponibilité |









































