Ref : 84_0860_BA
Location Bureau
BUREAUX A LOUER
Avignon (84000)
Loyer : 56 616 € / an
Surface 306 m²
Description du bien
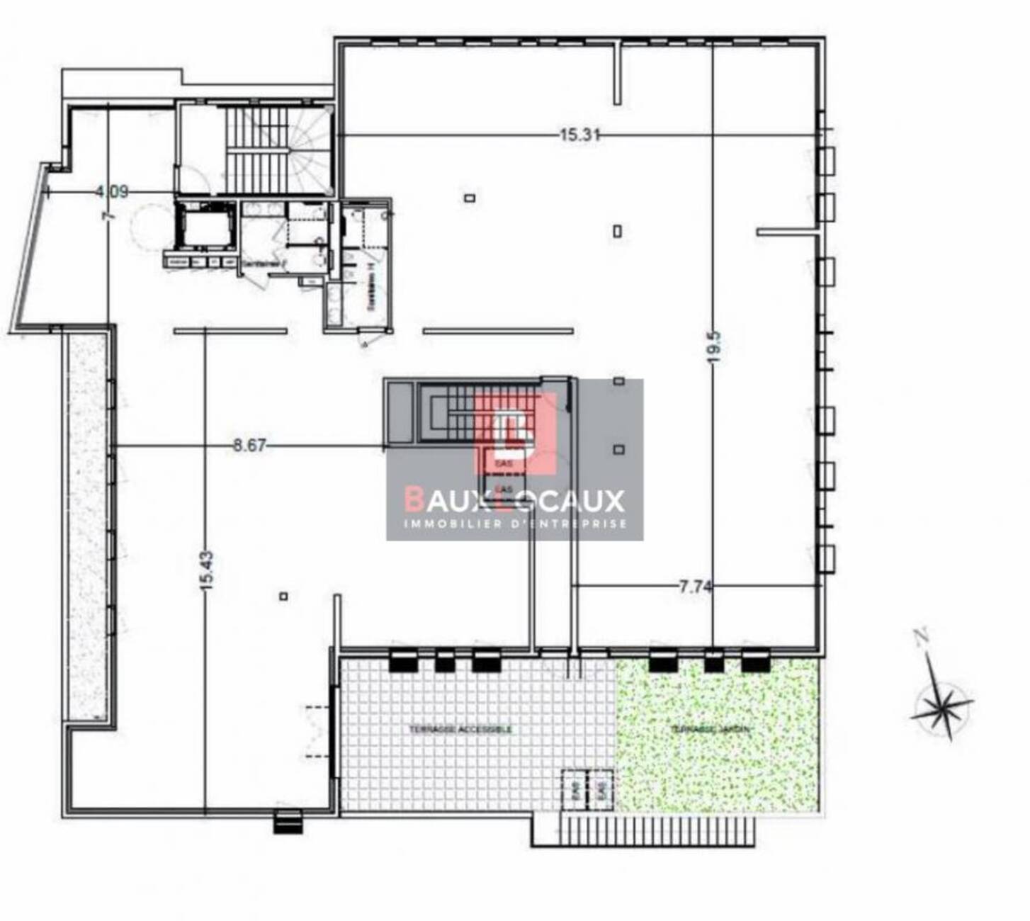
À vendre - Plateau de bureaux 306 m² avec terrasse - AvignonÀ Avignon, dans un environnement dynamique et à proximité immédiate de toutes commodités, découvrez ce nouveau programme tertiaire offrant un emplacement de qualité.L'immeuble en R+3 dispose de 23 places de stationnement en rez-de-chaussée, dont 2 PMR et 2 bornes de recharge électrique à répartir.Le plateau disponible, situé au 3ᵉ étage, offre une surface d'environ 306 m² de bureaux, livrés finis non cloisonnés, et bénéficie d'une terrasse privative de 177 m² accessible, idéale pour le confort des occupants.Caractéristiques principales :Accès via un hall d'accueil avec ascenseur et escaliersParkings en rez-de-chaussée (dont PMR et bornes électriques)Plateau lumineux, modulable selon vos besoinsProgramme tertiaire neuf, emplacement stratégique à AvignonPossibilité d'acquérir plusieurs plateaux selon vos projets.
Prestations du bien
- Accès Handicapés
- Ascenseur
- Climatisation
- Double vitrage
- Hall accueillant
- Jardin
- Nbre Parkings extérieurs : 23
- Plinthes périphériques
- Plateaux non cloisonnés
Informations financières
- Charges minimales : 4 700 €
- Taxe foncière : 3 672 €
Ce local professionnel vous est présenté par
Vous souhaitez nous joindre ?
Localisation et accessibilité
- Bus: Tramway St Roch - Université des métiers à 2'
Gare Centre à 10' à pied - Autoroute: A7 à 15 minutes
| Batiment - Lot | Etage | Type | Surface | Loyer annuel | Charges annuelles | Parkings | Disponibilité |































