Ref : 3448219524_TH
Location Bureau
BUREAUX A VENDRE OU A LOUER
Baillargues (34670)
Loyer : 36 996 € / an
Surface 207 m²
Description du bien
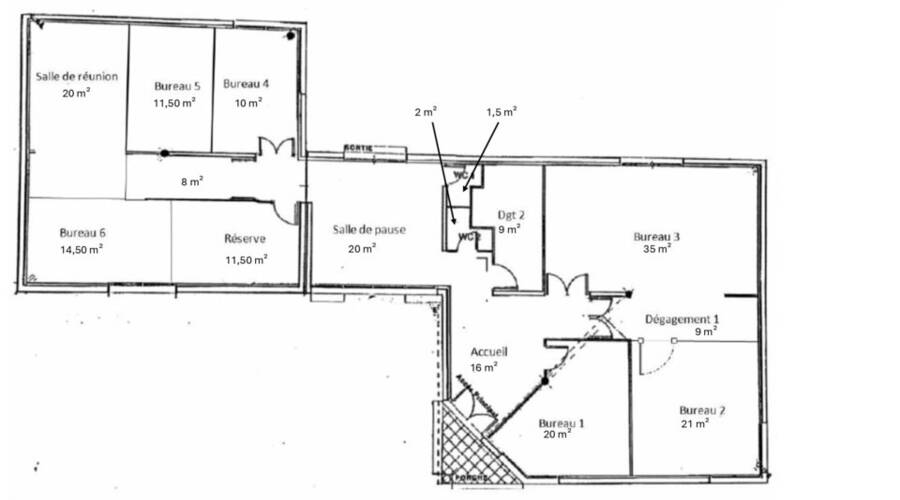
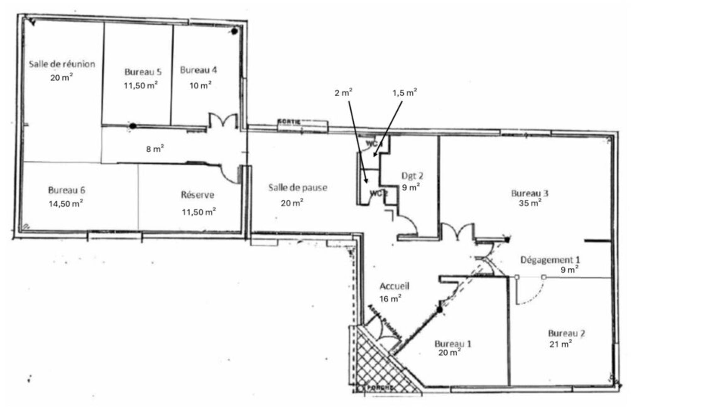
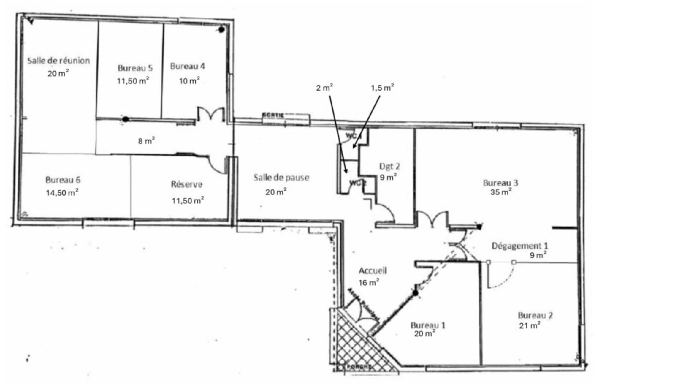
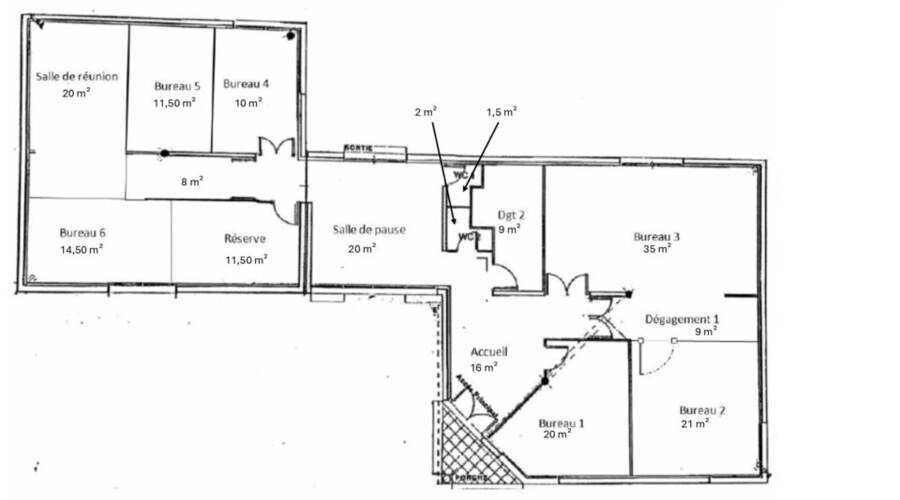
THELENE ENTREPRISES propose un immeuble indépendant en pleine propriété, offrant 207 m² de bureaux de plain-pied, situés sur un terrain de 750 m².
DESCRIPTIF DES LOCAUX
Aménagement optimisé : accueil, trois bureaux cloisonnés, salle de réunion, open space dédié aux techniciens, locaux d'archives.
Espaces fonctionnels : kitchenette, espace déjeuner, deux blocs sanitaires.
Confort et prestations : bureaux climatisés, cloisonnés et lumineux.
Stationnement & accessibilité : plusieurs places de parking privatives sur site.
EMPLACEMENT STRATÉGIQUE
Proximité immédiate de la RN113 et de l'autoroute A709 (sortie 28).
Environnement calme et verdoyant, idéal pour une activité tertiaire.
CONDITIONS
Loyer mensuel : 3 083 Euros HT
Prix de vente : 480 000 Euros net vendeur
Pas de charges de copropriété
Honoraires de commercialisation en sus : 15 % HT du loyer annuel HT HC dans le cadre d'une location et 5% HT du prix de vente net vendeur dans le cadre d'une vente
Pour plus d'informations ou pour organiser une visite, contactez-nous.
Retrouvez l'ensemble de nos offres sur notre site : https://www.thelene-entreprises.com/
Les informations sur les risques auxquels ce bien est exposé sont disponibles sur le site Géorisques : www.georisques.gouv.fr
Prestations du bien
- Banque d'accueil
- Bureaux cloisonnés
- Climatisation
- Kitchenette
- Nbre Parkings extérieurs privatifs :
- Nombre de bureaux : 6
- Salle de repos
- Salle de réunion
- Sanitaires privés
Informations financières
- Taxe foncière : 3 900 €
Diagnostic énergétiques
Diagnostic de performance énergétique
C 121
Indice d'émission de gaz à effet de serre
A 3
Logement très performant
Logement extrêmement consommateur d'énergie
Peu d'émission de GES
Emissions de GES très importantes
Ce local professionnel vous est présenté par
Vous souhaitez nous joindre ?
Localisation et accessibilité
- Bus: Proche de laRN113 et de la sortie d'autoroute 28 de l'A709 (7 min)
- Autoroute: Proche de laRN113 et de la sortie d'autoroute 28 de l'A709 (7 min)
| Batiment - Lot | Etage | Type | Surface | Loyer annuel | Charges annuelles | Parkings | Disponibilité |




































