Ref : 95_0397_IN
Location Bureau
BUREAUX A LOUER
Bezons (95870)
Loyer : 9 520 008 € / an
Surface 34 000 m²
Divisible dès 904 m²
Description du bien
INVEST CONSEIL vous propose à la location des plateaux de bureaux à partir de 904 m² situé situés à BEZONS.
Les + :
- Immeuble neuf de 34 000 m² divisible
- Lots communicants possibles
- Excellentes prestations : triple certification
- Nombreux services
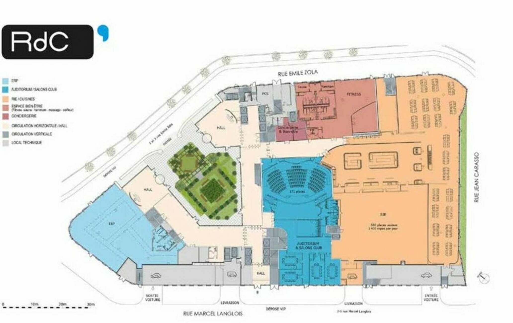
Prestations du bien
- Accès PMR
- Accueil
- Ascenseur
- Borne de rechargement électrique : 40
- Climatisation
- Cloisons amovibles
- Cuisine
- Double vitrage
- Espaces verts
- Etablissement recevant du public
- Faux plafond
- Gardien
- Goulotte technique
- Label BREEAM Excellent
- Open Space
- Parking 596 places en R-1-2 et -3
- Revêtement sol en moquette
- Salle de réunion
- Salle de sport
- Sanitaires communs
- Sanitaires privés
- Vestiaires
- Vidéosurveillance
- Restaurant de 580 places
- Terrasse
- Parking : 110 places moto en R-1-2 et -3198 pour vélo en R-1
- PC Sécurité
- Sauna, Hamann, auditorium, entrée VIP, 10 ascenseurs
- Bar en R+1
- Commerces en RDC et nurserie à venir
Informations financières
- Charges minimales : 1 700 000 €
- Bail : Commercial 3-6-9 ans
- Taxe foncière : 116 010 €
- Dépôt de garantie : 3 mois de loyer HT/HC
Ce local professionnel vous est présenté par
Vous souhaitez nous joindre ?
Surfaces des locaux
| Batiment - Lot | Etage | Type | Surface totale (en m2) | Emplacement(s) de parking | Loyer annuel HT/HC | Provision annuelle pour charges et taxes HT | Disponibilité |
| Lot A | R+7 | Bureaux | 1 307 | possible | 280 €/m² | 80 €/m²/an | immédiate |
| Lot B | R+7 | Bureaux | 786 | possible | 280 €/m² | 80 €/m²/an | immédiate |
| Lot C | R+7 | Bureaux | 861 | possible | 280 €/m² | 80 €/m²/an | immédiate |
| Lot D | R+7 | Bureaux | 913 | possible | 280 €/m² | 80 €/m²/an | immédiate |
| Lot A | R+6 | Bureaux | 1 300 | possible | 280 €/m² | 80 €/m²/an | immédiate |
| Lot B | R+6 | Bureaux | 904 | possible | 280 €/m² | 80 €/m²/an | immédiate |
| Lot C | R+6 | Bureaux | 924 | possible | 280 €/m² | 80 €/m²/an | immédiate |
| Lot D | R+6 | Bureaux | 975 | possible | 280 €/m² | 80 €/m²/an | immédiate |
| Lot A | R+5 | Bureaux | 1 306 | possible | 280 €/m² | 80 €/m²/an | immédiate |
| Lot B | R+5 | Bureaux | 908 | possible | 280 €/m² | 80 €/m²/an | immédiate |
| Lot C | R+5 | Bureaux | 1 003 | possible | 280 €/m² | 80 €/m²/an | immédiate |
| Lot D | R+5 | Bureaux | 1 040 | possible | 280 €/m² | 80 €/m²/an | immédiate |
| Lot A | R+4 | Bureaux | 1 306 | possible | 280 €/m² | 80 €/m²/an | immédiate |
| Lot B | R+4 | Bureaux | 909 | possible | 280 €/m² | 80 €/m²/an | immédiate |
| Lot C | R+4 | Bureaux | 987 | possible | 280 €/m² | 80 €/m²/an | immédiate |
| Lot D | R+4 | Bureaux | 1 040 | possible | 280 €/m² | 80 €/m²/an | immédiate |
| Lot A | R+3 | Bureaux | 1 307 | possible | 280 €/m² | 80 €/m²/an | immédiate |
| Lot B | R+3 | Bureaux | 909 | possible | 280 €/m² | 80 €/m²/an | immédiate |
| Lot C | R+3 | Bureaux | 987 | possible | 280 €/m² | 80 €/m²/an | immédiate |
| Lot D | R+3 | Bureaux | 1 025 | possible | 280 €/m² | 80 €/m²/an | immédiate |
| Lot A | R+2 | Bureaux | 1 207 | possible | 280 €/m² | 80 €/m²/an | immédiate |
| Lot B | R+2 | Bureaux | 744 | possible | 280 €/m² | 80 €/m²/an | immédiate |
| Lot C | R+2 | Bureaux | 993 | possible | 280 €/m² | 80 €/m²/an | immédiate |
| Lot D | R+2 | Bureaux | 1 032 | possible | 280 €/m² | 80 €/m²/an | immédiate |
| Lot A | R+1 | Bureaux | 1 169 | possible | 280 €/m² | 80 €/m²/an | immédiate |
| Lot B | R+1 | Bureaux | 26 | possible | 280 €/m² | 80 €/m²/an | immédiate |
| Lot C | R+1 | Bureaux | 1 026 | possible | 280 €/m² | 80 €/m²/an | immédiate |
| Lot D | R+1 | Bureaux | 1 064 | possible | 280 €/m² | 80 €/m²/an | immédiate |
| Lot A | RDC | Bureaux | 611 (ERP) | possible | 280 €/m² | 80 €/m²/an | immédiate |
Localisation et accessibilité
- Bus: T2
RER A
Ces biens pourraient vous intéresser
| Batiment - Lot | Etage | Type | Surface totale (en m2) | Emplacement(s) de parking | Loyer annuel HT/HC | Provision annuelle pour charges et taxes HT | Disponibilité |
| Lot A | R+7 | Bureaux | 1 307 | possible | 280 €/m² | 80 €/m²/an | immédiate |
| Lot B | R+7 | Bureaux | 786 | possible | 280 €/m² | 80 €/m²/an | immédiate |
| Lot C | R+7 | Bureaux | 861 | possible | 280 €/m² | 80 €/m²/an | immédiate |
| Lot D | R+7 | Bureaux | 913 | possible | 280 €/m² | 80 €/m²/an | immédiate |
| Lot A | R+6 | Bureaux | 1 300 | possible | 280 €/m² | 80 €/m²/an | immédiate |
| Lot B | R+6 | Bureaux | 904 | possible | 280 €/m² | 80 €/m²/an | immédiate |
| Lot C | R+6 | Bureaux | 924 | possible | 280 €/m² | 80 €/m²/an | immédiate |
| Lot D | R+6 | Bureaux | 975 | possible | 280 €/m² | 80 €/m²/an | immédiate |
| Lot A | R+5 | Bureaux | 1 306 | possible | 280 €/m² | 80 €/m²/an | immédiate |
| Lot B | R+5 | Bureaux | 908 | possible | 280 €/m² | 80 €/m²/an | immédiate |
| Lot C | R+5 | Bureaux | 1 003 | possible | 280 €/m² | 80 €/m²/an | immédiate |
| Lot D | R+5 | Bureaux | 1 040 | possible | 280 €/m² | 80 €/m²/an | immédiate |
| Lot A | R+4 | Bureaux | 1 306 | possible | 280 €/m² | 80 €/m²/an | immédiate |
| Lot B | R+4 | Bureaux | 909 | possible | 280 €/m² | 80 €/m²/an | immédiate |
| Lot C | R+4 | Bureaux | 987 | possible | 280 €/m² | 80 €/m²/an | immédiate |
| Lot D | R+4 | Bureaux | 1 040 | possible | 280 €/m² | 80 €/m²/an | immédiate |
| Lot A | R+3 | Bureaux | 1 307 | possible | 280 €/m² | 80 €/m²/an | immédiate |
| Lot B | R+3 | Bureaux | 909 | possible | 280 €/m² | 80 €/m²/an | immédiate |
| Lot C | R+3 | Bureaux | 987 | possible | 280 €/m² | 80 €/m²/an | immédiate |
| Lot D | R+3 | Bureaux | 1 025 | possible | 280 €/m² | 80 €/m²/an | immédiate |
| Lot A | R+2 | Bureaux | 1 207 | possible | 280 €/m² | 80 €/m²/an | immédiate |
| Lot B | R+2 | Bureaux | 744 | possible | 280 €/m² | 80 €/m²/an | immédiate |
| Lot C | R+2 | Bureaux | 993 | possible | 280 €/m² | 80 €/m²/an | immédiate |
| Lot D | R+2 | Bureaux | 1 032 | possible | 280 €/m² | 80 €/m²/an | immédiate |
| Lot A | R+1 | Bureaux | 1 169 | possible | 280 €/m² | 80 €/m²/an | immédiate |
| Lot B | R+1 | Bureaux | 26 | possible | 280 €/m² | 80 €/m²/an | immédiate |
| Lot C | R+1 | Bureaux | 1 026 | possible | 280 €/m² | 80 €/m²/an | immédiate |
| Lot D | R+1 | Bureaux | 1 064 | possible | 280 €/m² | 80 €/m²/an | immédiate |
| Lot A | RDC | Bureaux | 611 (ERP) | possible | 280 €/m² | 80 €/m²/an | immédiate |











































































