Ref : 2129160-0L_MA
Location Bureau
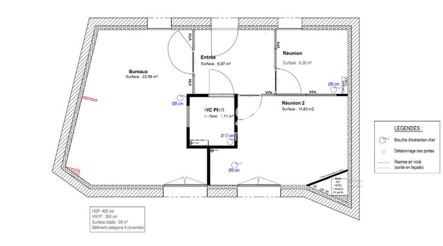
A LOUER - BUREAUX - 58 M² - BRON
Bron (69500)
Loyer : 14 376 € / an
Surface 58 m²
Description du bien
à la location, une surface de bureaux de 58 m² dans un immeuble récent à BRON, bénéficiant d'un accès et équipement normes PMR - Excellent état - Stationnement possible
Prestations du bien
- Au rez de chaussée d'un immeuble récent, une surface de bureaux d'environ 58 m² équipée suit
- Accueil
- Grand openspace de 4 à 7 places
- Un bureau
- Une salle de réunion "kitchenette" 6 à 8 places
- Sanitaire normres PMR
- un accès local à vélo partie commune fermé à clé
- Nombreux stationnements gratuits sont disponibles
Informations financières
- Charges minimales : 150 €
- Bail : commercial 3-6-9 ans
- Taxe foncière : 1 037 €
- Informations location :
Conditions particulières à la location : Location place parking possible BE Park : 54 euros / mois
- Dépôt de garantie : 3 mois de loyer HT/HC
Ce local professionnel vous est présenté par
Vous souhaitez nous joindre ?
Surfaces des locaux
| Étage | Bâtiment | Type | Surfaces | Disponibilité | Loyer | Charges | Honoraires | Fiscal | Bail | Révision annuelle | Prix | Charges | Honoraires | Fiscal | Paiement Loyer | lot | Coworking | |
|---|---|---|---|---|---|---|---|---|---|---|---|---|---|---|---|---|---|---|
| RDC | Bureaux | 58 | Immédiate | 247,86 HT/HC/m²/an | 1 800 HT/An | 15 % HT du loyer annuel HT à la charge du preneur, payables à la signature du bail | T.V.A. (20%) | commercial 3-6-9 ans | ILAT Indice des Loyers des Activités Tertiaires | Trimestriel d'avance | ||||||||
| Total | 58 m² |
Localisation et accessibilité
- SCNF: Vénissieux (Gare SNCF)
- Metro: Gare Part-Dieu V.Merle (Ligne B), Vaulx-En-Velin l
- Autoroute: A 7 (Entrée Boulevard Laurent Bonnevay Lyon États-Unis), A 42 (Entrée Villeurbanne-La Soie, Vaulx en Velin-La Côte), A 42 (Sort
Ces biens pourraient vous intéresser
| Étage | Bâtiment | Type | Surfaces | Disponibilité | Loyer | Charges | Honoraires | Fiscal | Bail | Révision annuelle | Prix | Charges | Honoraires | Fiscal | Paiement Loyer | lot | Coworking | |
|---|---|---|---|---|---|---|---|---|---|---|---|---|---|---|---|---|---|---|
| RDC | Bureaux | 58 | Immédiate | 247,86 HT/HC/m²/an | 1 800 HT/An | 15 % HT du loyer annuel HT à la charge du preneur, payables à la signature du bail | T.V.A. (20%) | commercial 3-6-9 ans | ILAT Indice des Loyers des Activités Tertiaires | Trimestriel d'avance | ||||||||
| Total | 58 m² |
























































