Ref : 1047947-0L_MA
Location Bureau
DARDILLY - Bureaux de 382 m² - A LOUER
Dardilly (69570)
Loyer : 57 300 € / an
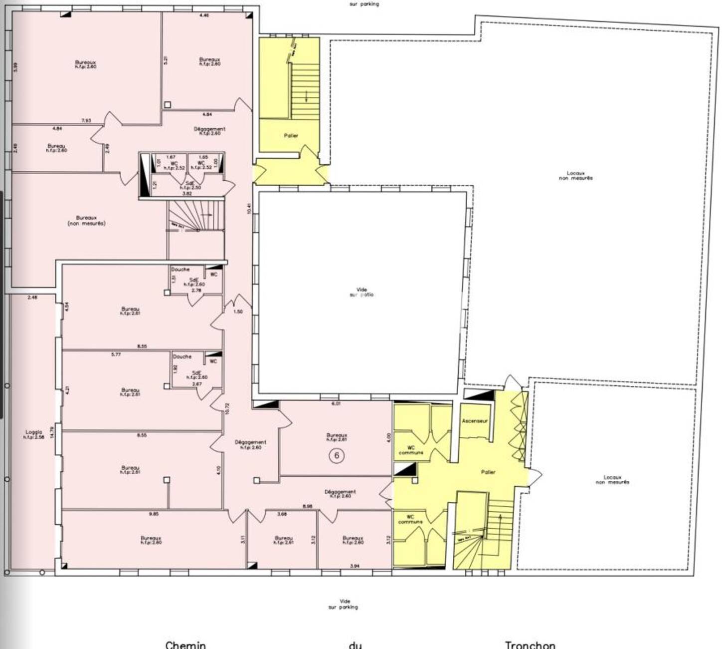
Surface 382 m²
Description du bien
MALSH Realty & Property vous propose à la location dans un immeuble de bureaux de bon standing, un plateau de bureau entièrement cloisonné et câblé, compatible ERP5. 9 places de parkings complètent ce bien.
Prestations du bien
- Sol PVC
- Faux plafond
- Vitrage important
- Éclairage encastré, LED
- Climatisation VRV 3 Tubes
- Goulotte en périphérie
- Interphone
- Terrasse privative
- Bloc sanitaire commun par étage
- Ascenseur
- 9 places de parking
- Sanitaires privatifs
- Kitchenette
- Accès PMR
- ERP
- Douche
- R+2 loggia de 37 m²
Informations financières
- Charges minimales : 764 €
- Bail : commercial 3-6-9 ans
- Taxe foncière : 19 €
- Informations location :
Conditions particulières à la location : Loyer Parking : 500 euros/U/an
- Dépôt de garantie : 3 mois de loyer HT/HC
Ce local professionnel vous est présenté par
Vous souhaitez nous joindre ?
Surfaces des locaux
| Étage | Bâtiment | Type | Surfaces | Disponibilité | Loyer | Charges | Honoraires | Fiscal | Bail | Révision annuelle | Prix | Charges | Honoraires | Fiscal | Paiement Loyer | lot | Coworking | |
|---|---|---|---|---|---|---|---|---|---|---|---|---|---|---|---|---|---|---|
| 2 | Bureaux | 382 | 150 HT/HC/m²/an | 24 m²/an HT | 15% HT d'un an de loyer HT à la charge du preneur, payables à la signature du bail | T.V.A. (20%) | commercial 3-6-9 ans | ILAT Indice des Loyers des Activités Tertiaires | Trimestriel d'avance | |||||||||
| Total | 382 m² |
Localisation et accessibilité
- Bus: Accès Bus via la ligne 89 depuis Vaise
- Autoroute: L'autoroute A7 à moins de 1 km
| Étage | Bâtiment | Type | Surfaces | Disponibilité | Loyer | Charges | Honoraires | Fiscal | Bail | Révision annuelle | Prix | Charges | Honoraires | Fiscal | Paiement Loyer | lot | Coworking | |
|---|---|---|---|---|---|---|---|---|---|---|---|---|---|---|---|---|---|---|
| 2 | Bureaux | 382 | 150 HT/HC/m²/an | 24 m²/an HT | 15% HT d'un an de loyer HT à la charge du preneur, payables à la signature du bail | T.V.A. (20%) | commercial 3-6-9 ans | ILAT Indice des Loyers des Activités Tertiaires | Trimestriel d'avance | |||||||||
| Total | 382 m² |


























































