Ref : 1384341-0L_MA
Location Bureau
Location Bureaux - Lyon 7ème (69007) - 187 m²
Lyon (69007)
Loyer : 37 404 € / an
Surface 187 m²
Description du bien
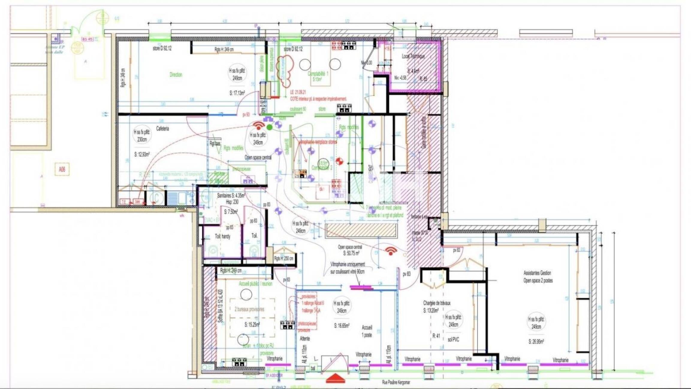
MALSH Realty vous propose à la location, des bureaux d'une surface totale d'environ 187 m² en RDC avec 2 parkings en sous-sol. Ces locaux sont cloisonnés, aménagés et climatisés.
Prestations du bien
- Locaux aménagés et cloisonnés
- Prestation qualitative
- Cloisons vitrées toute hauteur
- Porte vitrées coulissantes
- Sol souple aspect parquet
- Faux plafond avec éclairage LED encatsrés
- Nombreux placard muraux
- Climatisation réversible, cassettes plafonnières
- Espace réfectoire
- Sanitaires privatifs PMR
Informations financières
- Charges minimales : 167 €
- Bail : commercial 3-6-9 ans
- Taxe foncière : 3 250 €
- Dépôt de garantie : 3 mois de loyer HT/HC
Ce local professionnel vous est présenté par
Vous souhaitez nous joindre ?
Surfaces des locaux
| Étage | Bâtiment | Type | Surfaces | Disponibilité | Loyer | Charges | Honoraires | Fiscal | Bail | Révision annuelle | Prix | Charges | Honoraires | Fiscal | Paiement Loyer | lot | Coworking | |
|---|---|---|---|---|---|---|---|---|---|---|---|---|---|---|---|---|---|---|
| RDC | Bureaux | 187 | Immédiate | 200 HT/HC/m²/an | 2 000 HT/An | 20 % HT du loyer annuel HT/HC, à la charge du Preneur, payables à la signature du bail | T.V.A. (20%) | commercial 3-6-9 ans | ILAT Indice des Loyers des Activités Tertiaires | Trimestriel d'avance | ||||||||
| Parkings | - | Immédiate | 1 200 HT/HC/place/an | 20 % HT du loyer annuel HT/HC, à la charge du Preneur, payables à la signature du bail | T.V.A. (20%) | commercial 3-6-9 ans | ILAT Indice des Loyers des Activités Tertiaires | Trimestriel d'avance | ||||||||||
| Total | 187 m² | |||||||||||||||||
| 2 en sous-sol | ||||||||||||||||||
Localisation et accessibilité
- Bus: Lignes C4, c5 et C7
- SCNF: Lyon-Guillotière (France)
- Metro: Saxe - Gambetta (Ligne B), Bellecour (Ligne A), Ga
Ces biens pourraient vous intéresser
| Étage | Bâtiment | Type | Surfaces | Disponibilité | Loyer | Charges | Honoraires | Fiscal | Bail | Révision annuelle | Prix | Charges | Honoraires | Fiscal | Paiement Loyer | lot | Coworking | |
|---|---|---|---|---|---|---|---|---|---|---|---|---|---|---|---|---|---|---|
| RDC | Bureaux | 187 | Immédiate | 200 HT/HC/m²/an | 2 000 HT/An | 20 % HT du loyer annuel HT/HC, à la charge du Preneur, payables à la signature du bail | T.V.A. (20%) | commercial 3-6-9 ans | ILAT Indice des Loyers des Activités Tertiaires | Trimestriel d'avance | ||||||||
| Parkings | - | Immédiate | 1 200 HT/HC/place/an | 20 % HT du loyer annuel HT/HC, à la charge du Preneur, payables à la signature du bail | T.V.A. (20%) | commercial 3-6-9 ans | ILAT Indice des Loyers des Activités Tertiaires | Trimestriel d'avance | ||||||||||
| Total | 187 m² | |||||||||||||||||
| 2 en sous-sol | ||||||||||||||||||


























































