Ref : 91_017517_RX
Location Bureau
Bureau Massy
Massy (91300)
Loyer : 373 980 € / an
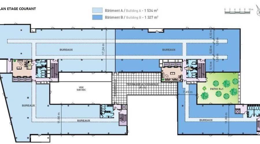
Surface 1 626 m²
Prestations du bien
- - 2 halls d'accueil
- - Hôte d'accueil
- - Maintenir technique
- - Ascenseur
- - Accès livraison avec aire de déchargement
- - Accès PMR
- - RIE
- - Bureaux rénovés en plateau nus
- - Possibilité de maintien des cloisons, réseau informatique...
- - Réunion possible de plateaux entre bâtiments
- - Restaurant et cafétéria
- - Climatisation réversible
- - Gestion technique centralisée
- - Surchage : 350 kg/m²
- - Equipe de property sur site
- - Emplacements de parking en sous-sol
Informations financières
- Charges minimales : 157 999 €
- Bail : Commercial 3/6/9 ans
- Taxe foncière : 66 608 €
- Dépôt de garantie : 3 mois de loyer HT/HC
Ce local professionnel vous est présenté par
Vous souhaitez nous joindre ?
Localisation et accessibilité
- Bus: - Au pied des Gares RER B & C et TGV
- Aéroport d'Orly à 15 mn via A10
- Gare routière à proximité (nombreuses lignes de bus) - Autoroute: - A proximité des axes routiers : A6/A10 - N118 - N20
| Etage | Surface | |
| R+3 | 1626 m² |



















































