Ref : 1422251-0L_MA
Location Bureau
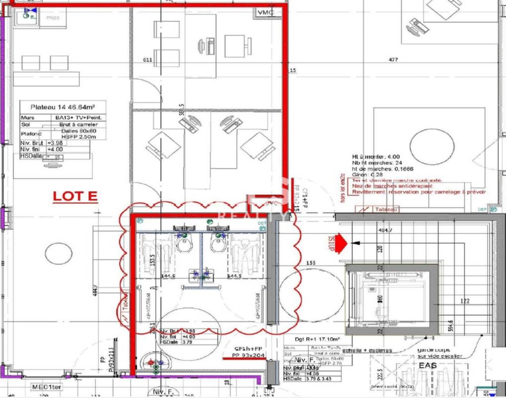
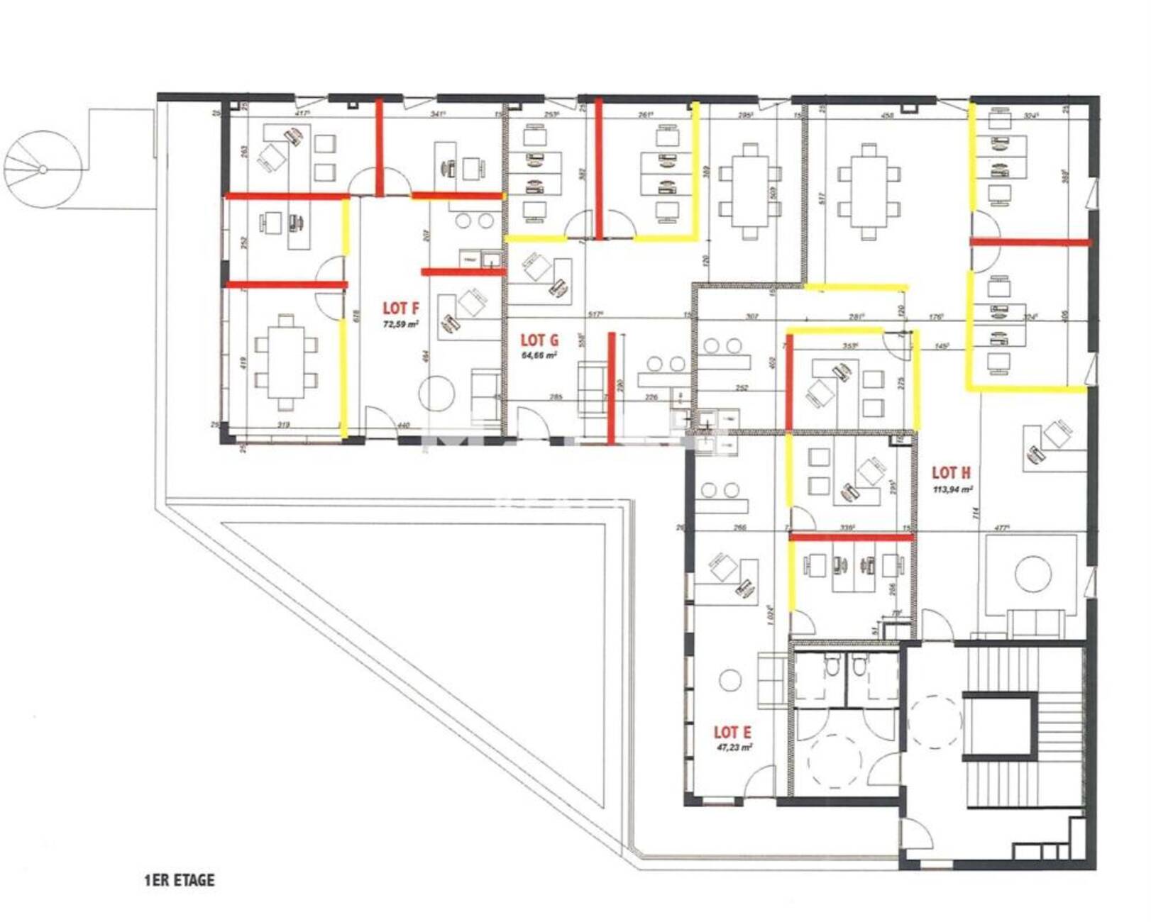
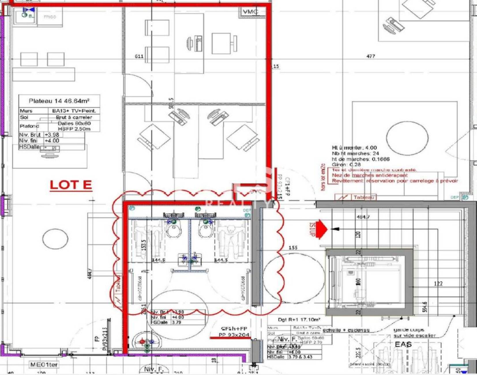
MONTAGNY - Bureaux - A LOUER - 46 m² - 2 places de stationnement incluses
Montagny (69700)
Loyer : 6 996 € / an
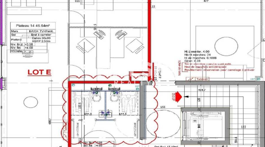
Surface 46 m²
Description du bien
MALSH Realty vous propose, à la location, des bureaux d'une superficie de 46 m² sur la commune de Montagny.
2 places de stationnement complètent ce bien.
Prestations du bien
- Immeuble bénéficiant d'une belle visibilité en bordure de la départementale 386
- Locaux récent en très bon état donnant sur une terrasse partagée
- Faux plafond avec pavé LED,
- Kitchenette équipée,
- Sol moquette dans les bureaux et sol souple dans la kitchenette
- Baie informatique, câblage déployé,
- Climatisation réversible cassettes plafonnières
- Sanitaires en parties communes
- Ascenseur
Informations financières
- Charges minimales : 123 €
- Taxe foncière : 720 €
- Informations location :
Conditions particulières à la location : Loyer parkings inclus dans le loyer global
- Dépôt de garantie : 3 mois de loyer HT/HC
Diagnostic énergétiques
Diagnostic de performance énergétique
B 65
Indice d'émission de gaz à effet de serre
A 2
Logement très performant
Logement extrêmement consommateur d'énergie
Peu d'émission de GES
Emissions de GES très importantes
Ce local professionnel vous est présenté par
Vous souhaitez nous joindre ?
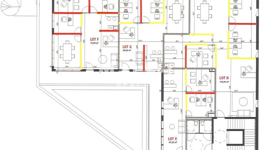
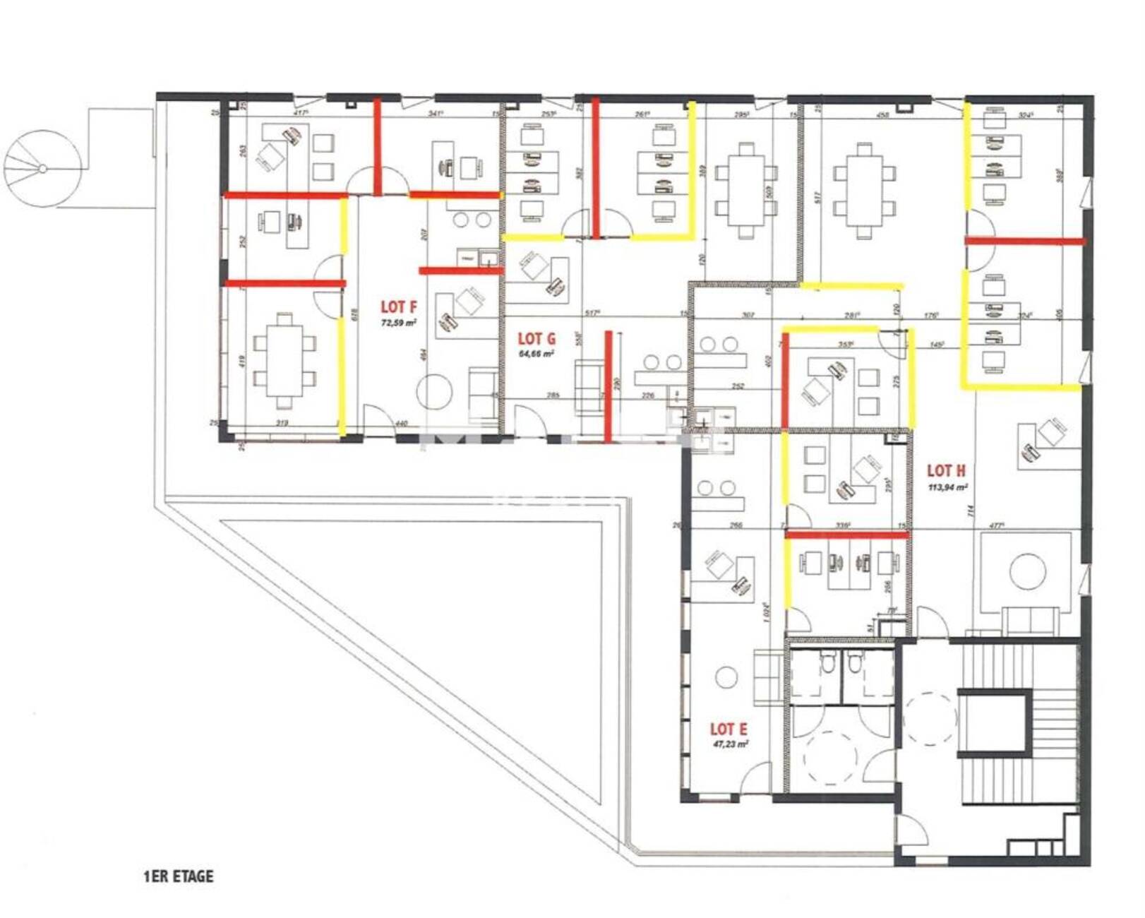
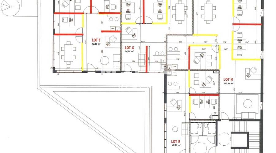
Surfaces des locaux
| Étage | Bâtiment | Type | Surfaces | Disponibilité | Loyer | Charges | Honoraires | Fiscal | Bail | Révision annuelle | Prix | Charges | Honoraires | Fiscal | Paiement Loyer | lot | Coworking | |
|---|---|---|---|---|---|---|---|---|---|---|---|---|---|---|---|---|---|---|
| R+1 | Bureaux | 46 | Immédiate | 152,09 HT/HC/m²/an | 1 476 /an HT | 15 % HT du loyer annuel HT à la charge du preneur, payables à la signature du bail | T.V.A. (20%) | ILAT Indice des Loyers des Activités Tertiaires | Trimestriel d'avance | Lot E | ||||||||
| Total | 46 m² |
Localisation et accessibilité
- Autoroute: Autoroute A7
Ces biens pourraient vous intéresser
| Étage | Bâtiment | Type | Surfaces | Disponibilité | Loyer | Charges | Honoraires | Fiscal | Bail | Révision annuelle | Prix | Charges | Honoraires | Fiscal | Paiement Loyer | lot | Coworking | |
|---|---|---|---|---|---|---|---|---|---|---|---|---|---|---|---|---|---|---|
| R+1 | Bureaux | 46 | Immédiate | 152,09 HT/HC/m²/an | 1 476 /an HT | 15 % HT du loyer annuel HT à la charge du preneur, payables à la signature du bail | T.V.A. (20%) | ILAT Indice des Loyers des Activités Tertiaires | Trimestriel d'avance | Lot E | ||||||||
| Total | 46 m² |








































