Ref : 3448220161_TH
Location Bureau
BUREAUX A LOUER
Montpellier (34000)
Loyer : 278 400 € / an
Surface 1 740 m²
Divisible dès 92 m²
Description du bien
Situé à proximité de toutes commodités, à 600 mètres de la ligne tramway 1, de l'autoroute A709, de la gare Sud de France, de l'aéroport de Montpellier et du grand centre commercial Odysseum.
THELENE ENTREPRISES vous propose à la location, un immeuble de bureaux d'une superficie de 1 740 m² environ sur 5 niveaux et divisibles en plusieurs lots allants de 92 à 214 m² environ, dans la zone Millénaire/Odysseum.
21 places de stationnement en sous-sol et 68 places de stationnement extérieurs (en sus du loyer).
Réhabilitation complete de l'immeuble (remise à neuf).
Espace de convivialité avec cuisine, machine à café et frigo connecté.
Bureaux entièrement climatisés et cablés.
Accès PMR.
Loyer annuel HT HC à partir de 160 Euros/m² (Honoraires de commercialisation en sus : 15% HT du loyer annuel HT HC)
Loyer parkings :
- Parking sous-sol : 1 200 Euros HT / unité
- Parking aérien : 400 Euros HT / unité
Retrouvez l'ensemble de nos offres sur notre site : https://www.thelene-entreprises.com/
Les informations sur les risques auxquels ce bien est exposé sont disponibles sur le site Géorisques : www.georisques.gouv.fr
Prestations du bien
- Accès PMR
- Ascenseur
- Câblage RJ45
- Climatisation
- Climatisation réversible
- Double vitrage
- Hall accueillant
- Nbre Parkings extérieurs : 68
- Nbre Parkings extérieurs privatifs : 68
- Nbre Parkings sous-sol : 21
- Parking Extérieur
Informations financières
- Charges minimales : 67 860 €
- Taxe foncière : 44 892 €
Ce local professionnel vous est présenté par
Vous souhaitez nous joindre ?
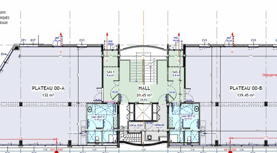
Surfaces des locaux
| Batiment - Lot | Etage | Surface PP | Surface locative PC inclus | Parkings | Loyer annuel au m² HT HC |
| 00A | RDC | 132 M² | 148.72 M² | 2 ss + 6 ext | 160 €/M²/AN HT HC |
| 00B | RDC | 139.45 M² | 157.12 M² | 2 ss + 6 ext | 160 €/M²/AN HT HC |
| 01A | R+1 | 152.85 M² | 172.21 M² | 2 ss + 7 ext | 160 €/M²/AN HT HC |
| 01B | R+1 | 94.50 M² | 106.47 M² | 1 ss + 4 ext | 165 €/M²/AN HT HC |
| 02A | R+2 | 152.85 M² | 192.93 M² | 2 ss + 8 ext | 165 €/M²/AN HT HC |
| 02B | R+2 | 73.90 M² | 93.28 M² | 1 ss + 4 ext | 160 €/M²/AN HT HC |
| 02C | R+2 | 73.20 M² | 92.39 M² | 1 ss + 4 ext | 165 €/M²/AN HT HC |
| 03A | R+3 | 152.60 M² | 190.14 M² | 2 ss + 7 ext | 165 €/M²/AN HT HC |
| 03B | R+3 | 170.05 M² | 211.89 M² | 3 ss + 8 ext | 165 €/M²/AN HT HC |
| 04A | R+4 | 128.30 M² | 160.93 M² | 2 ss + 6 ext | 170 €/M²/AN HT HC |
| 04B | R+4 | 170.90 M² | 214.37 M² | 3 ss + 8 ext | 165 €/M²/AN HT HC |
Localisation et accessibilité
| Batiment - Lot | Etage | Surface PP | Surface locative PC inclus | Parkings | Loyer annuel au m² HT HC |
| 00A | RDC | 132 M² | 148.72 M² | 2 ss + 6 ext | 160 €/M²/AN HT HC |
| 00B | RDC | 139.45 M² | 157.12 M² | 2 ss + 6 ext | 160 €/M²/AN HT HC |
| 01A | R+1 | 152.85 M² | 172.21 M² | 2 ss + 7 ext | 160 €/M²/AN HT HC |
| 01B | R+1 | 94.50 M² | 106.47 M² | 1 ss + 4 ext | 165 €/M²/AN HT HC |
| 02A | R+2 | 152.85 M² | 192.93 M² | 2 ss + 8 ext | 165 €/M²/AN HT HC |
| 02B | R+2 | 73.90 M² | 93.28 M² | 1 ss + 4 ext | 160 €/M²/AN HT HC |
| 02C | R+2 | 73.20 M² | 92.39 M² | 1 ss + 4 ext | 165 €/M²/AN HT HC |
| 03A | R+3 | 152.60 M² | 190.14 M² | 2 ss + 7 ext | 165 €/M²/AN HT HC |
| 03B | R+3 | 170.05 M² | 211.89 M² | 3 ss + 8 ext | 165 €/M²/AN HT HC |
| 04A | R+4 | 128.30 M² | 160.93 M² | 2 ss + 6 ext | 170 €/M²/AN HT HC |
| 04B | R+4 | 170.90 M² | 214.37 M² | 3 ss + 8 ext | 165 €/M²/AN HT HC |









































