Ref : 13_000411_BA
Location Bureau
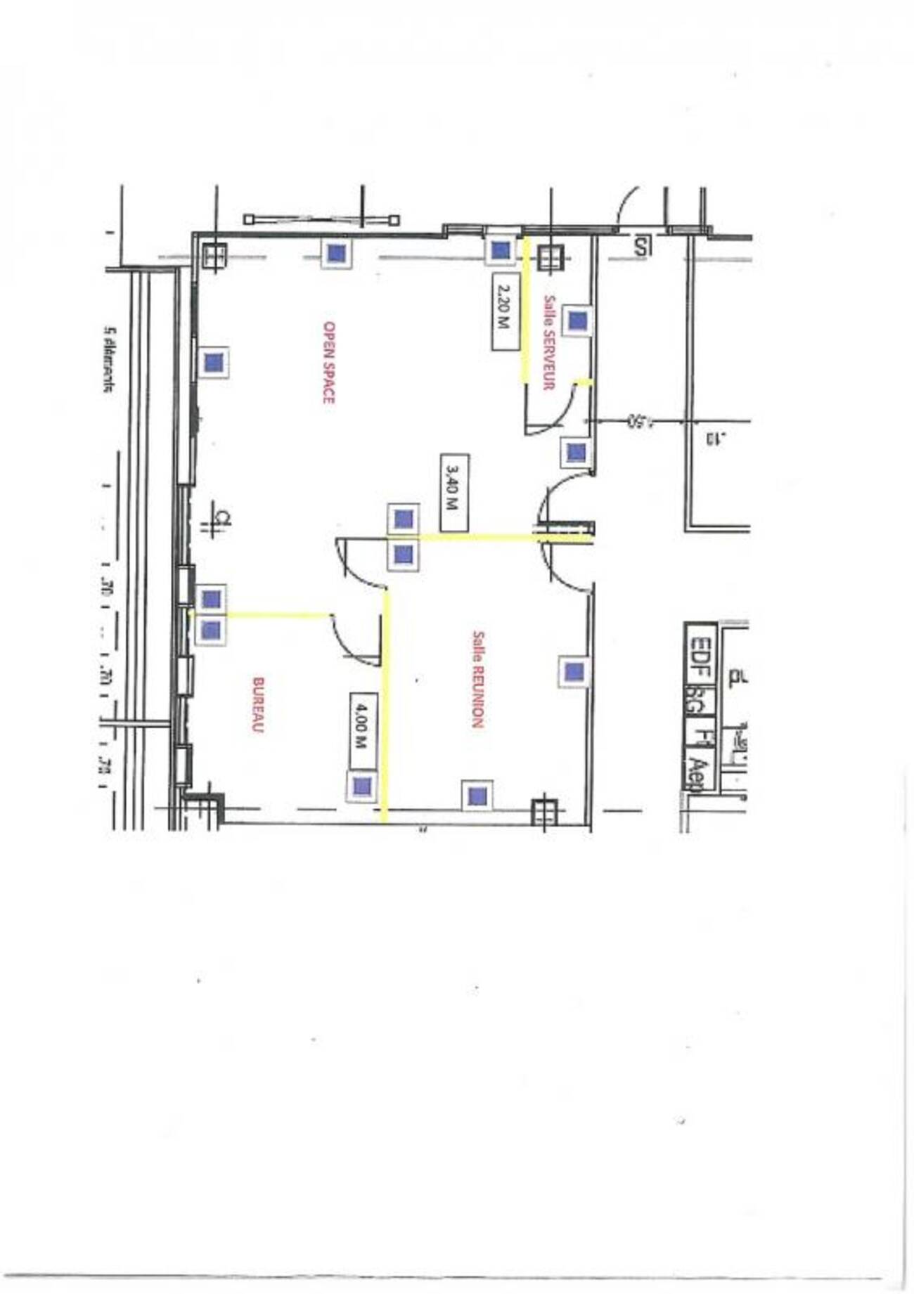
BUREAUX A LOUER
Saint-Martin-de-Crau (13310)
Loyer : 9 600 € / an
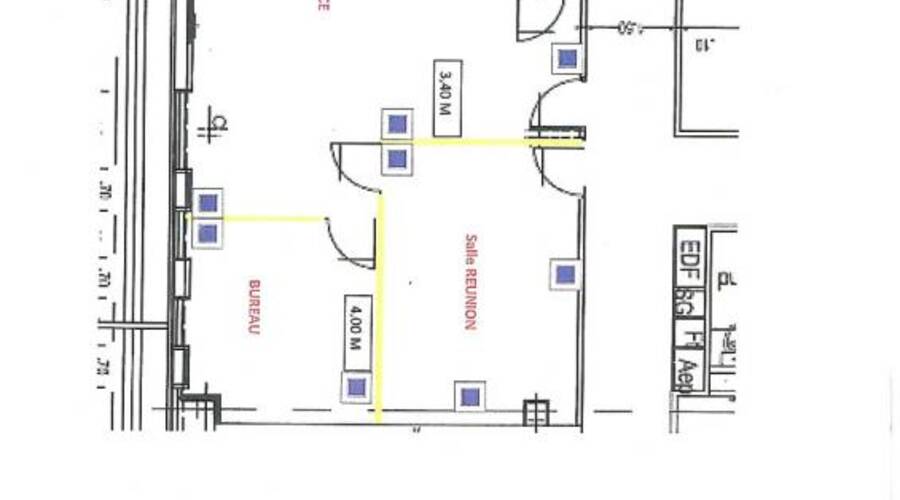
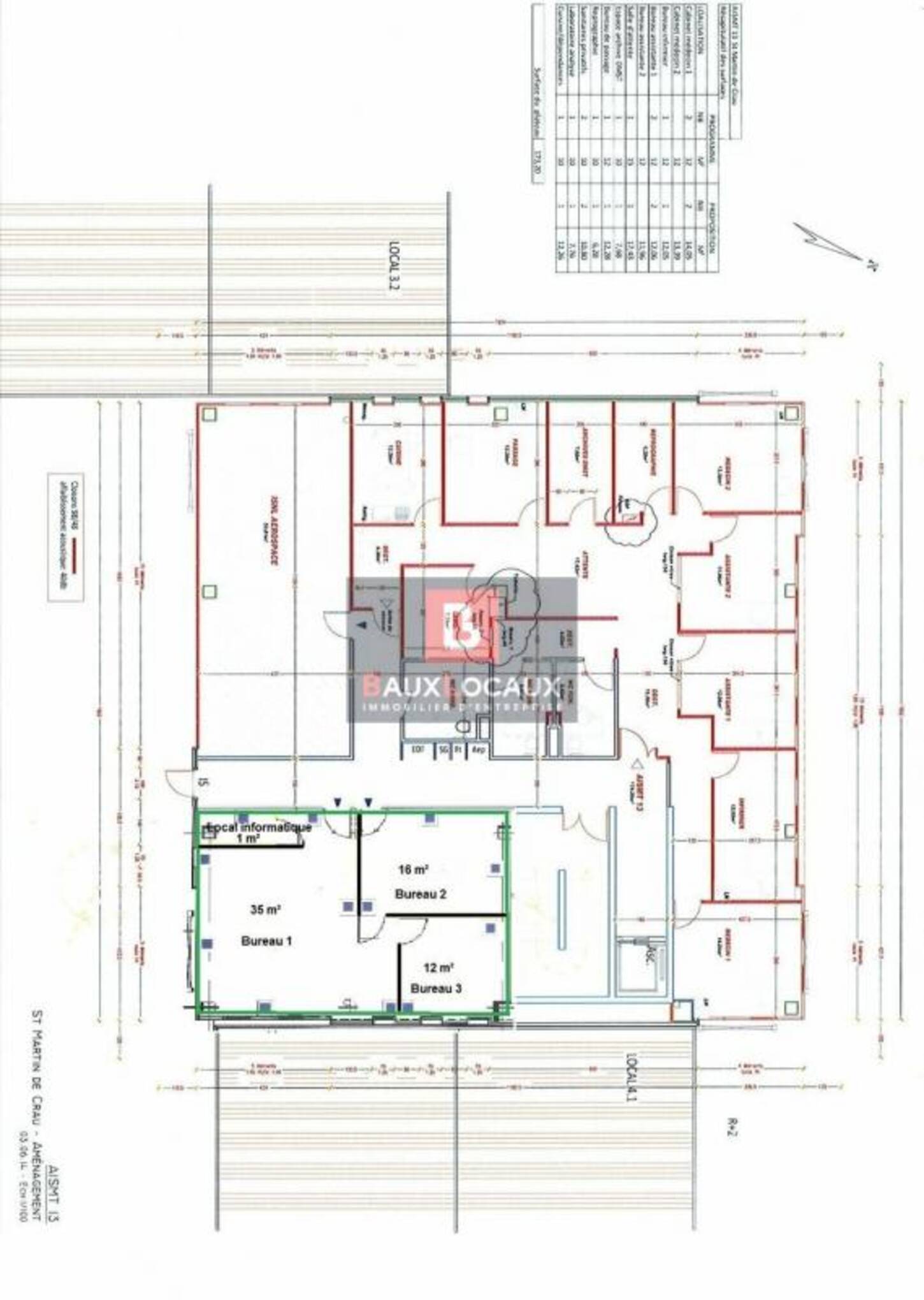
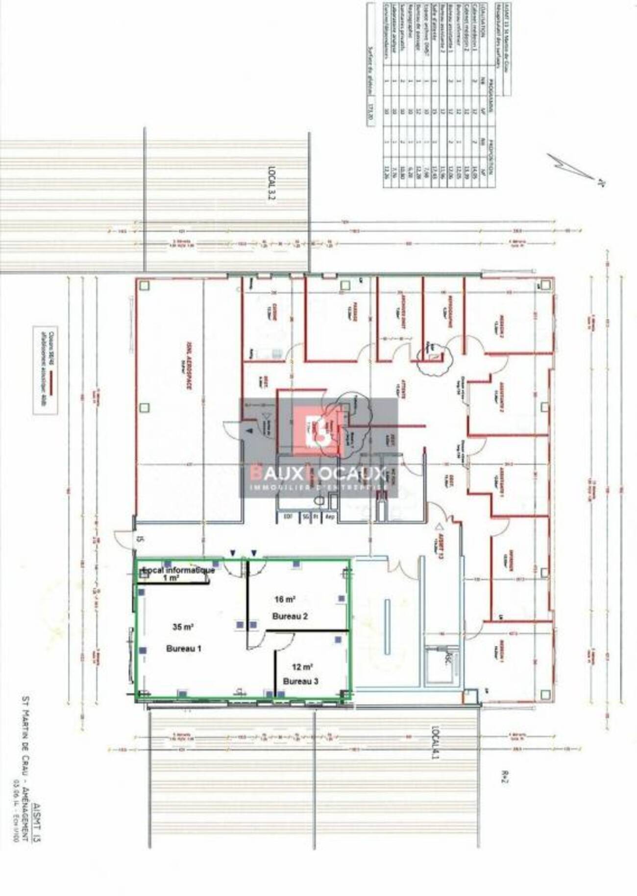
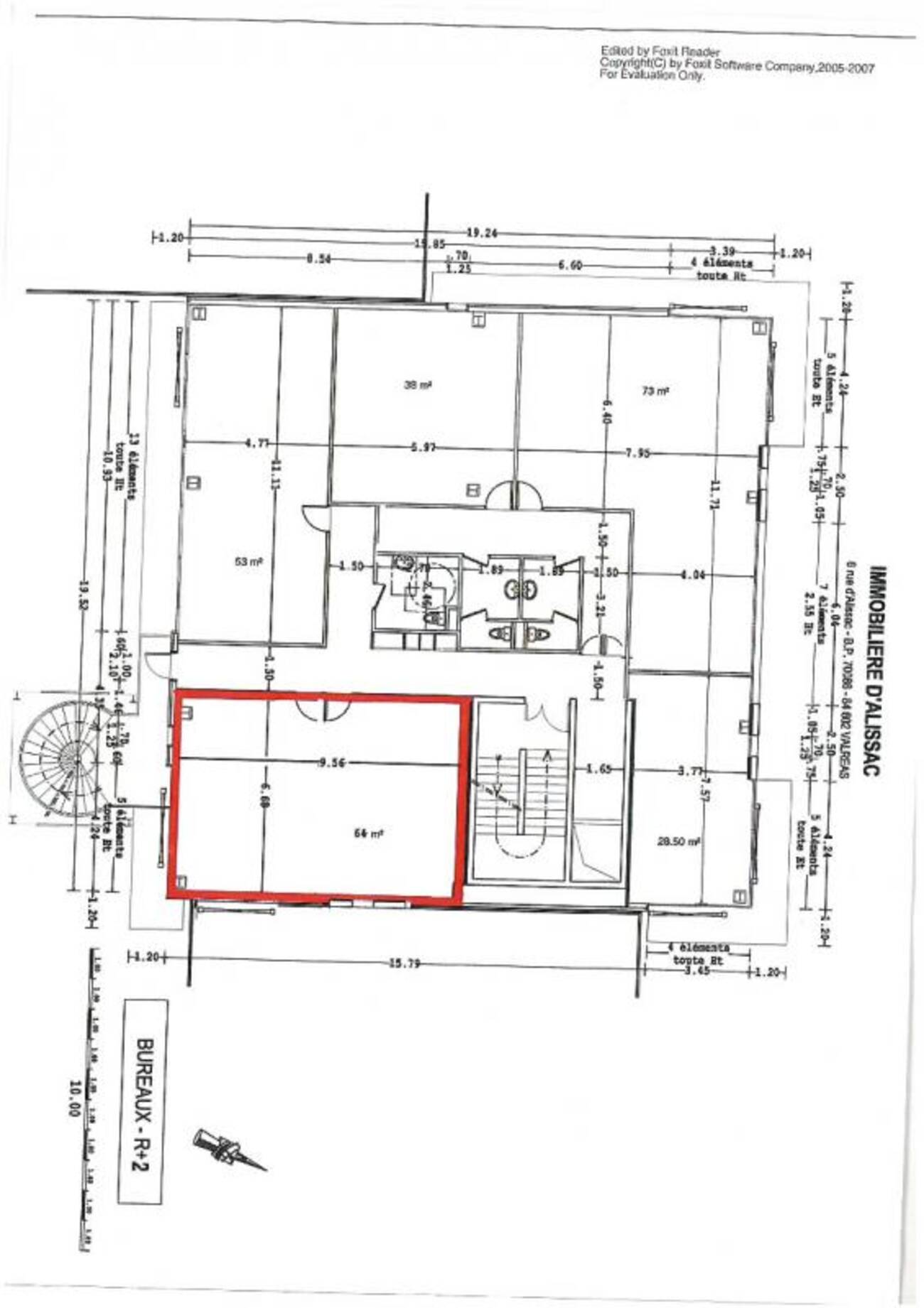
Surface 64 m²
Description du bien
Saint Martin de Crau, location d'un bureau d'environ 64 m² avec un grand open space, deux espaces fermés, salle serveur, climatisation.
Au deuxième étage d'un petit bâtiment récent, sécurisé, avec ascenseur.
Situé à 2 minutes de la sortie d'autoroute A54, entre Salon de Provence et Arles, ce bien se trouve dans une zone artisanale, commerciale et de bureaux.
Nombreux parkings à disposition.
Prestations du bien
- A.D.S.L.
- Accès Handicapés
- Alarme anti intrusions
- Ascenseur
- Bureaux cloisonnés
- Câblage RJ45
- Chauffage réversible
- Climatisation
- Courant faible
- Eclairage
- Etablissement recevant du public
- Immeuble indépendant
- Installation électrique existante
- Interphone
- Issue de secours
- Luminaires faux plafond
- Menuiseries posées
- Open Space
- Parking Extérieur
- Peinture
- Sanitaires communs
Informations financières
- Charges minimales : 2 012 €
- Bail : 3/6/9 ans ou professionnel 3/6/9 ans
- Dépôt de garantie : 2 mois de loyer HT/HC
Ce local professionnel vous est présenté par
Vous souhaitez nous joindre ?
Localisation et accessibilité
- Autoroute: Proche autoroute A54
Ces biens pourraient vous intéresser
| Batiment - Lot | Etage | Type | Surface | Loyer annuel | Charges annuelles | Parkings | Disponibilité |

































