Ref : 1012281-0L_MA
Location Bureau
ST QUENTIN FALLAVIER - Bureaux de 515 m² divisibles à partir de 60 m² - A LOUER
Saint-Quentin-Fallavier (38070)
Loyer : 47 508 € / an
Surface 515 m²
Divisible dès 60 m²
Description du bien
MALSH Realty & Property vous propose à St Quentin Fallavier à la location, des bureaux d'une surface totale d'environ 515 m² divisibles à partir de 60 m².
Possibilité de regrouper plusieurs lots.
Loyer mensuel attractif parking facile, gratuit et illimité.
Disponibilité immédiate !
Prestations du bien
- Bureaux cloisonnés
- Parkings extérieurs
- Lot 16 : Local climatisé
Informations financières
- Charges minimales : 1 224 €
- Bail : commercial 3-6-9 ans
- Taxe foncière : 17 €
- Informations location :
Conditions particulières à la location : Possibilité de regrouper plusieurs lots
- Dépôt de garantie : 3 mois de loyer HT/HC
Ce local professionnel vous est présenté par
Vous souhaitez nous joindre ?
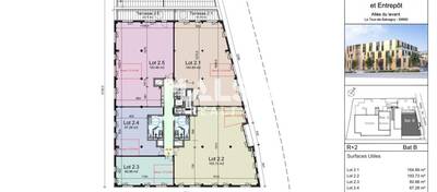
Surfaces des locaux
| Étage | Bâtiment | Type | Surfaces | Disponibilité | Loyer | Charges | Honoraires | Fiscal | Bail | Révision annuelle | Prix | Charges | Honoraires | Fiscal | Paiement Loyer | lot | Coworking | |
|---|---|---|---|---|---|---|---|---|---|---|---|---|---|---|---|---|---|---|
| 1 | Bureaux | 132 | Immédiate | 90,91 HT/HC/m²/an | 28,53 HT/m²/an | 15 % HT du loyer annuel HT/HC, à la charge du preneur, payables à la signature du bail | T.V.A. (20%) | commercial 3-6-9 ans | ILAT Indice des Loyers des Activités Tertiaires | Trimestriel d'avance | Lot 10 | |||||||
| 1 | Bureaux | 118 | Immédiate | 93,22 HT/HC/m²/an | 28,53 HT/m²/an | 15 % HT du loyer annuel HT/HC, à la charge du preneur, payables à la signature du bail | T.V.A. (20%) | commercial 3-6-9 ans | ILAT Indice des Loyers des Activités Tertiaires | Trimestriel d'avance | Lot 12 | |||||||
| 1 | Bureaux | 97 | Immédiate | 92,78 HT/HC/m²/an | 28,53 HT/m²/an | 15 % HT du loyer annuel HT/HC, à la charge du preneur, payables à la signature du bail | T.V.A. (20%) | commercial 3-6-9 ans | ILAT Indice des Loyers des Activités Tertiaires | Trimestriel d'avance | Lot 11 | |||||||
| 1 | Bureaux | 60 | Immédiate | 91,67 HT/HC/m²/an | 28,53 HT/m²/an | 15 % HT du loyer annuel HT/HC, à la charge du preneur, payables à la signature du bail | T.V.A. (20%) | commercial 3-6-9 ans | ILAT Indice des Loyers des Activités Tertiaires | Trimestriel d'avance | Lot 13 | |||||||
| 2 | Bureaux | 108 | 1er avril 2026 | 92,59 HT/HC/m²/an | 28,53 HT/m²/an | 15 % HT du loyer annuel HT/HC, à la charge du preneur, payables à la signature du bail | T.V.A. (20%) | commercial 3-6-9 ans | ILAT Indice des Loyers des Activités Tertiaires | Trimestriel d'avance | Lot 16 | |||||||
| Total | 515 m² |
Localisation et accessibilité
- Bus: Flexibus bus Ruban à proximité immédiate du site
- SCNF: Gare de St-Quentin-Fallavier à 2 km
- Autoroute: En bordure de la D75 et à proximité immédiate de l'autoroute A43
Ces biens pourraient vous intéresser
| Étage | Bâtiment | Type | Surfaces | Disponibilité | Loyer | Charges | Honoraires | Fiscal | Bail | Révision annuelle | Prix | Charges | Honoraires | Fiscal | Paiement Loyer | lot | Coworking | |
|---|---|---|---|---|---|---|---|---|---|---|---|---|---|---|---|---|---|---|
| 1 | Bureaux | 132 | Immédiate | 90,91 HT/HC/m²/an | 28,53 HT/m²/an | 15 % HT du loyer annuel HT/HC, à la charge du preneur, payables à la signature du bail | T.V.A. (20%) | commercial 3-6-9 ans | ILAT Indice des Loyers des Activités Tertiaires | Trimestriel d'avance | Lot 10 | |||||||
| 1 | Bureaux | 118 | Immédiate | 93,22 HT/HC/m²/an | 28,53 HT/m²/an | 15 % HT du loyer annuel HT/HC, à la charge du preneur, payables à la signature du bail | T.V.A. (20%) | commercial 3-6-9 ans | ILAT Indice des Loyers des Activités Tertiaires | Trimestriel d'avance | Lot 12 | |||||||
| 1 | Bureaux | 97 | Immédiate | 92,78 HT/HC/m²/an | 28,53 HT/m²/an | 15 % HT du loyer annuel HT/HC, à la charge du preneur, payables à la signature du bail | T.V.A. (20%) | commercial 3-6-9 ans | ILAT Indice des Loyers des Activités Tertiaires | Trimestriel d'avance | Lot 11 | |||||||
| 1 | Bureaux | 60 | Immédiate | 91,67 HT/HC/m²/an | 28,53 HT/m²/an | 15 % HT du loyer annuel HT/HC, à la charge du preneur, payables à la signature du bail | T.V.A. (20%) | commercial 3-6-9 ans | ILAT Indice des Loyers des Activités Tertiaires | Trimestriel d'avance | Lot 13 | |||||||
| 2 | Bureaux | 108 | 1er avril 2026 | 92,59 HT/HC/m²/an | 28,53 HT/m²/an | 15 % HT du loyer annuel HT/HC, à la charge du preneur, payables à la signature du bail | T.V.A. (20%) | commercial 3-6-9 ans | ILAT Indice des Loyers des Activités Tertiaires | Trimestriel d'avance | Lot 16 | |||||||
| Total | 515 m² |























