Ref : 78_002255_AP
Location Bureau
BUREAUX A LOUER
Versailles (78000)
Loyer : 19 800 € / an
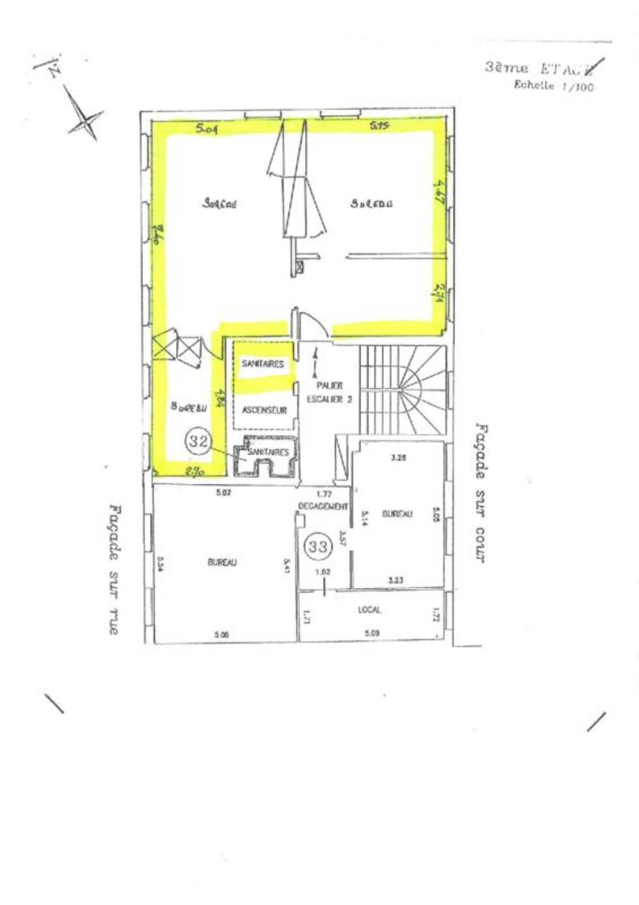
Surface 90 m²
Description du bien
AP CONSEIL vous propose à la location une surface de 90 m² comprenant quatre bureaux, au sein d'un immeuble avec ascenseur, idéalement située au pied de la gare des Chantiers à Versailles.Ces locaux offrent un cadre de travail fonctionnel et facilement accessible, au coeur d'un secteur dynamique.N'hésitez pas à nous contacter afin d'organiser une visite.
Prestations du bien
- Ascenseur
- Bureaux cloisonnés
- Etablissement recevant du public
- Salle de réunion
Informations financières
- Charges minimales : 1 660 €
- Bail : Commercial 3/6/9 ans
- Taxe foncière : 1 843 €
- Dépôt de garantie : 3 mois de loyer HT/HC
Ce local professionnel vous est présenté par
Vous souhaitez nous joindre ?
Localisation et accessibilité
- Bus: Gare Versailles Chantiers (liaison directe vers Gare Montparnasse en 13 min).
Futur ligne M18 - Aéroport d'Orly - Versailles Ch - Autoroute: Autoroutes A12 et A86
| Bat / Etage | Type | Surface | Prix | Prix /m2 | Disponibilité |
| 3e étage | BUREAUX | 90 m2 | 19800 € | 220 €/m2 | IMMEDIATE |






















