Ref : 13_002061_SV
Location Entrepôt
MIXTE ACTIVITES-BUREAUX A LOUER
Aix-en-Provence (13080)
Loyer : 110 004 € / an
Surface 840 m²
Description du bien
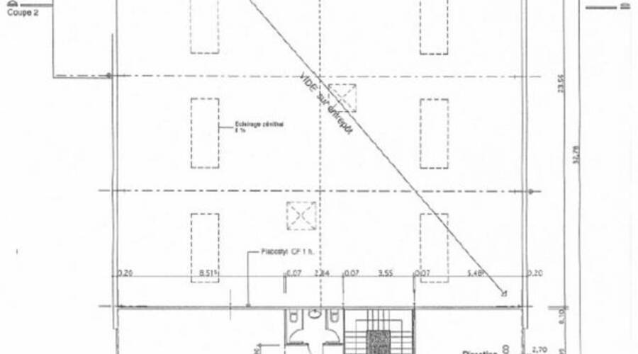
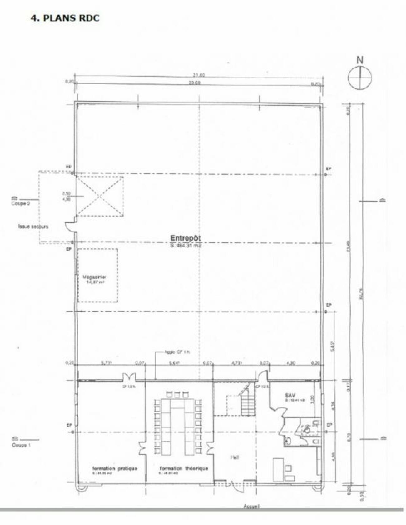
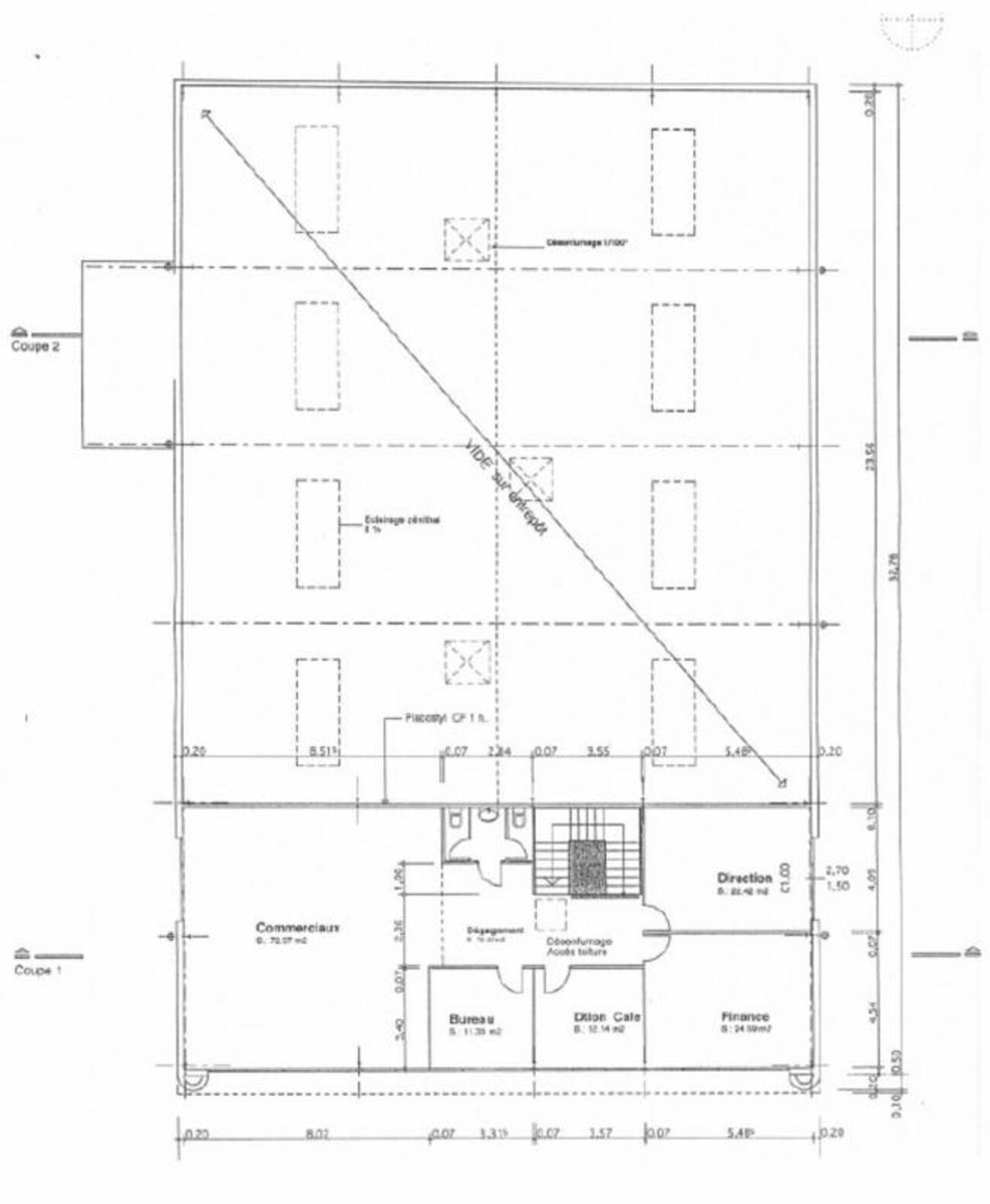
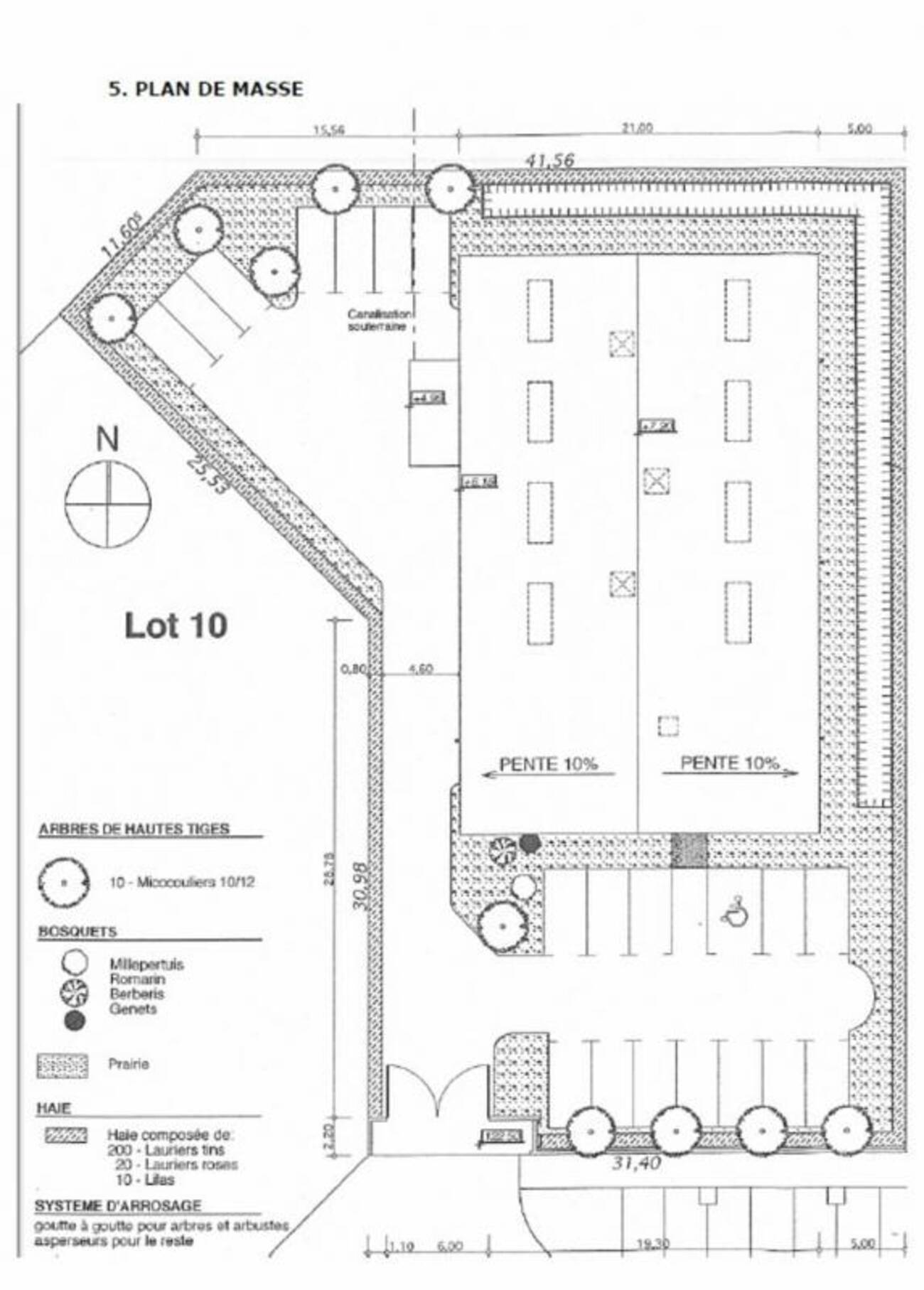
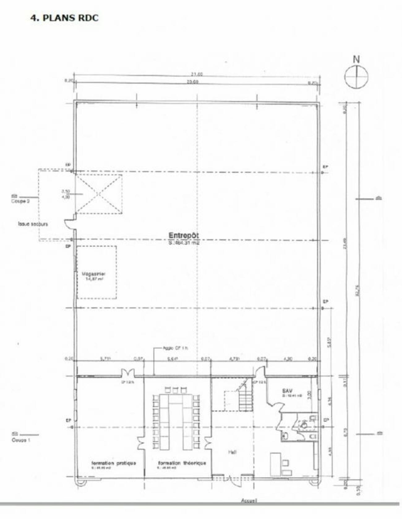
SVRE vous propose à la location un bâtiment indépendant, mixte développant au total 840m2 : 340m² bureaux + 500m² activités. (670m² au sol). Ce bâtiment se situe sur un site clôturé de 2074 m², situé sur le Pôle d'activité d'Aix ACTIMART II.
Prestations du bien
- Voierie enrobée
- 20 emplacements de parkings extérieurs
- Hauteur zone activité 6.7m-5.6m sans poteau
- Porte sectionnelle L=3.50 x H=4.00
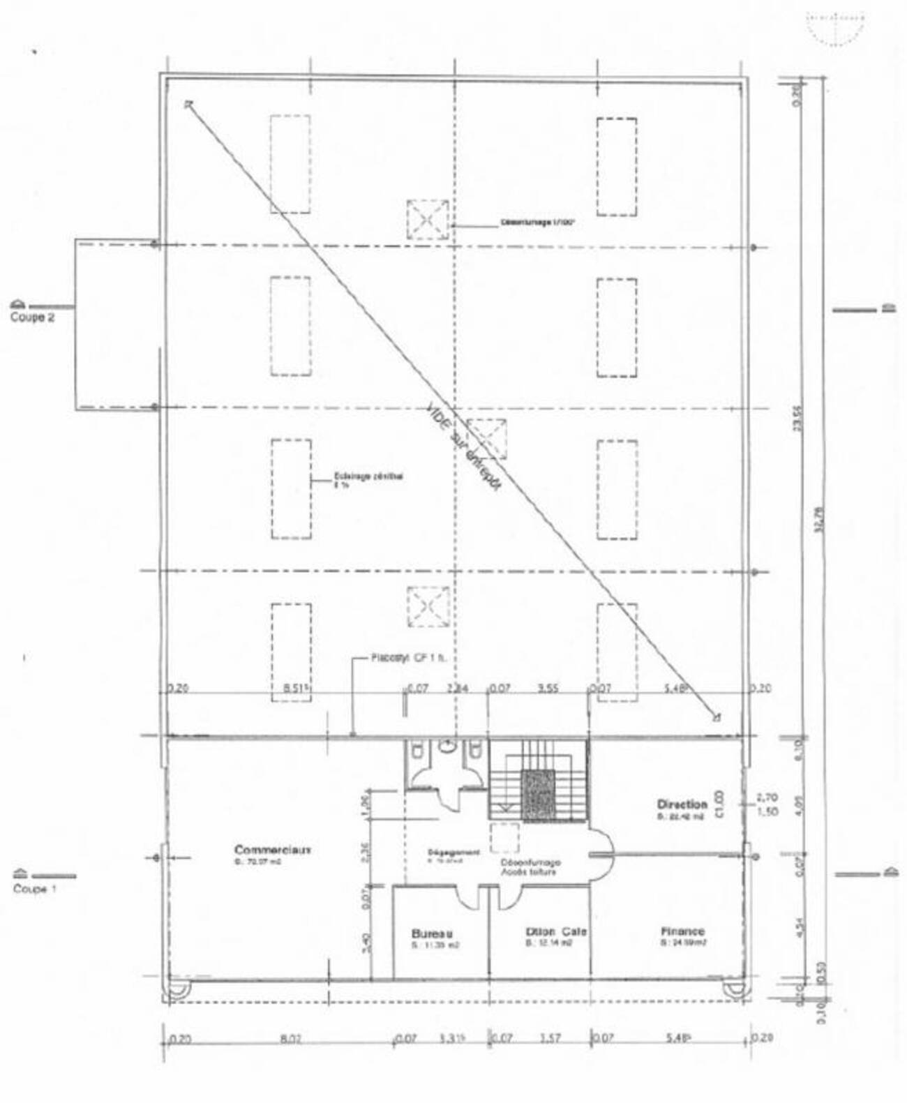
- 170m² de bureau en mezzanine + 170m² au sol
- Toiture en bardage double peau éclairée par 8 skydomes
- Accessibilité VL et PL
- Climatisation réversible (dans les bureaux)
Informations financières
- Charges minimales : 5 200 €
- Bail : Commercial 3/6/9 ans
- Taxe foncière : 10 625 €
- Dépôt de garantie : 3 mois de loyer HT/HC
Ce local professionnel vous est présenté par
Vous souhaitez nous joindre ?
Localisation et accessibilité
Ces biens pourraient vous intéresser
| Bat / Etage | Type | Surface | Prix | Prix /m2 | Disponibilité |
| RDC | Entrepôt | 500 | |||
| R+1 | Bureaux | 340 |



































