Ref : 77_002822_RX
Location Entrepôt
Entrepôt Coupvray
Coupvray (77700)
Loyer : 462 420 € / an
Surface 3 557 m²
Divisible dès 407 m²
Prestations du bien
- Bureaux:
- Conception favorisant l'éclairement naturel des bureaux
- Protections solaires par brise soleil bois extérieures pour les bureaux
- Emploi de produits intérieurs A+
- Éclairage Led à détecteur de présence intégré dans faux-plafond
- Sols souples aspect bois
- Rafraîchissement des bureaux par climatisation
- Sanitaires hydro-économes Prises de courant fort /courant faibles (6 postes de travail par lot)
- Activités:
- Accès de plain-pied par portes sectionnelles 3,5 m x 3,5 m (bâtiment B) et 4 m x 5 m (bâtiment A) à commande électrique
- Dalle béton finition quartz. Charge au sol 3tonnes / m2
- HSP : 6,5 mètres
- Chauffage par aérothermes électriques
- Éclairage Led
- Production d'énergie photovoltaïque en toiture
- Extérieur:
- Espaces verts, voirie douce et éclairage extérieur
- Emplacements de parking VL avec chargeur électrique possible
Informations financières
- Charges minimales : 24 899 €
- Bail : Commercial 3/6/9 ans
- Taxe foncière : 35 570 €
- Dépôt de garantie : 3 mois de loyer HT/HC
Ce local professionnel vous est présenté par
Vous souhaitez nous joindre ?
Localisation et accessibilité
- Bus: Accès Autoroute A4 sortie « Ferrières en Brie »
Gare RER Ligne A « Bussy Saint Georges »
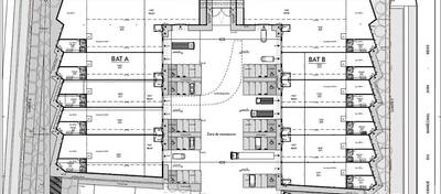
| Batiment - Lot | Surface totale | |
| Lot A1 | 970m² | |
| Lot A2 | 471m² | |
| Lot A3 | 451m² | |
| Lot B1 | 444m² | |
| Lot B2 | 394m² | |
| Lot B3 | 407m² | |
| Lot B4 | 420m² | |
| Lot B5 | 433m² | |
| Lot B6 | 719m² |



































