Ref : 91_018700_RX
Location Entrepôt
Entrepôt Gometz-le-Châtel
Gometz-le-Châtel (91940)
Loyer : 97 008 € / an
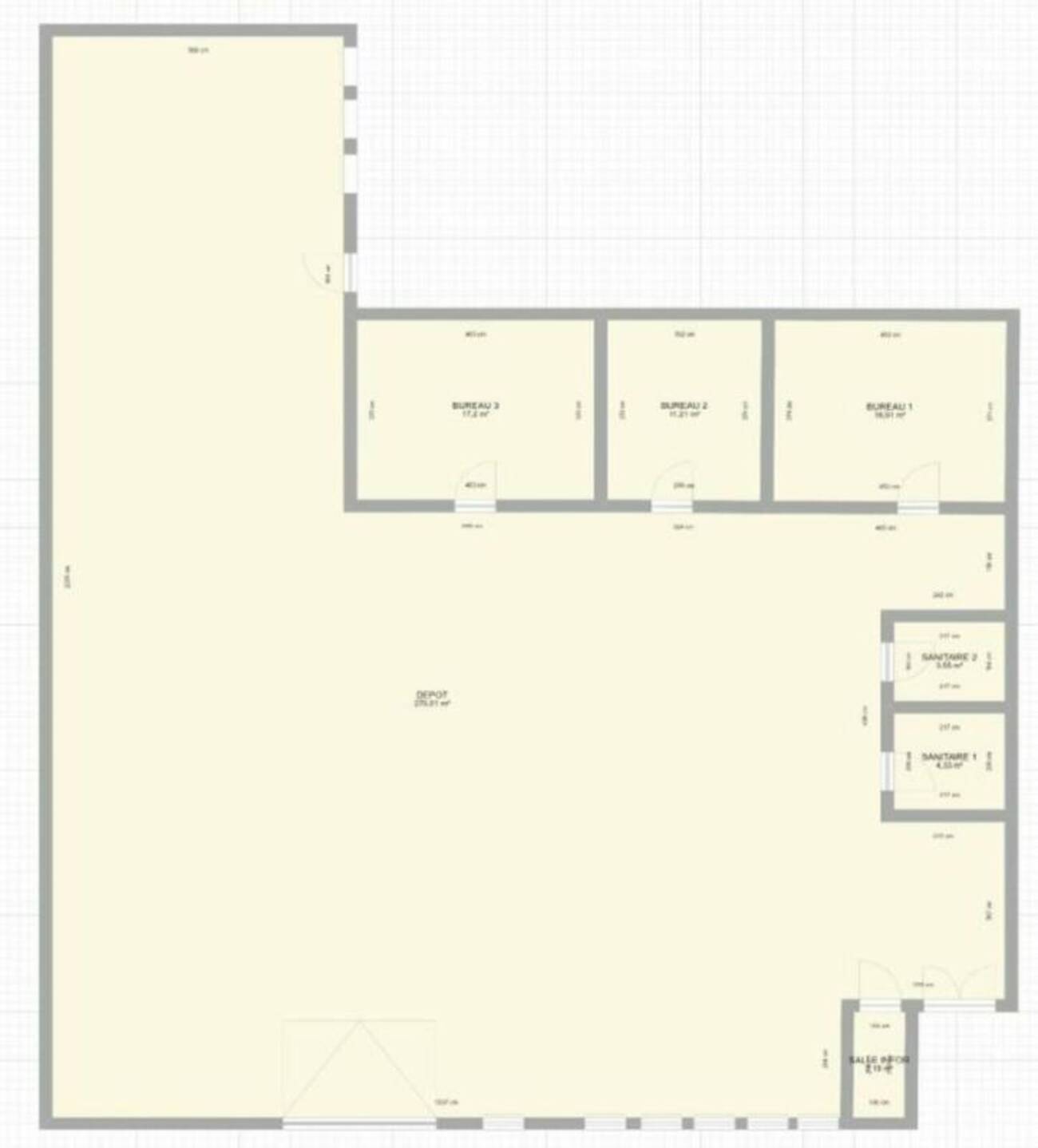
Surface 970 m²
Divisible dès 320 m²
Prestations du bien
- Activité:
- - Charpente métallique
- - Accès plain pied
- - Porte sectionnelle : 2,50 m de haut par 2,90 m de large
- - site clos par barrière métallique avec fermeture soir et week-end
- - site sécurisé avec alarme individuelle plus vidéo surveillance extérieure
- - HSP : 5 m
- - Parking VL : 10 places
- - Restaurants et commerces à proximité
- Bureaux:
- - chauffage individuel électrique
- - sol en moquette
- - Câblage informatique
- - luminaires encastrés
- - Patio
Informations financières
- Charges minimales : 12 610 €
- Bail : Commercial 3/6/9 ans
- Taxe foncière : 4 314 €
- Dépôt de garantie : 3 mois de loyer HT/HC
Ce local professionnel vous est présenté par
Vous souhaitez nous joindre ?
Localisation et accessibilité
- Bus: A 5 minutes à pieds des lignes de bus 21 et 22
A 1 heure du coeur de Paris
A 30 minutes en bus du RER B et C "Massy Palaiseau" - Autoroute: Proximité Autoroute A10/N118
A 25 min des portes de Paris par l'A6 et l'A10
A 20 min de l'aéroport de Paris-Orly
| Lot | Bureaux | Activités | TOTAL SURFACE |
| Lot 7 | 47 m² | 273m² | 320 m² |
| Lot 3 | 122 m² | 528 m² | 650 m² |










































