Ref : 91_018761_RX
Location Entrepôt
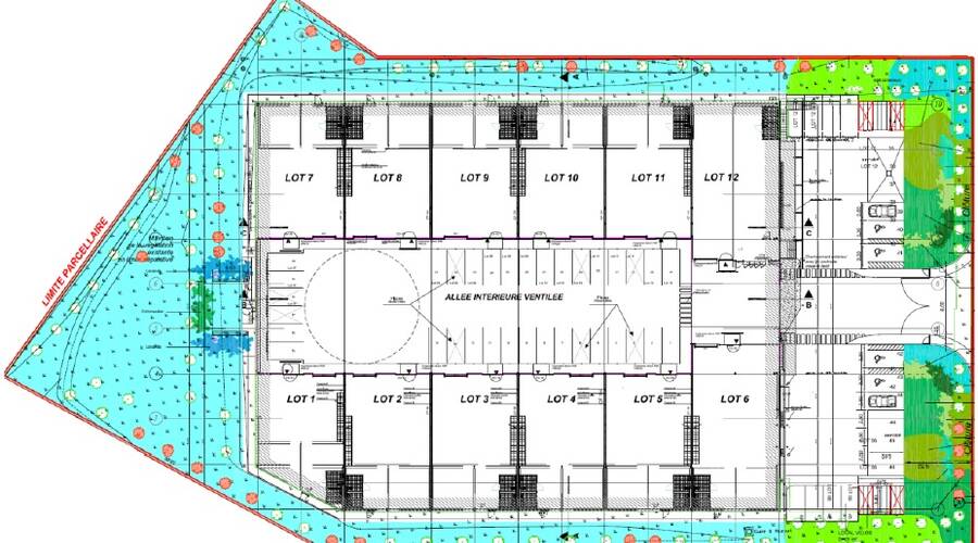
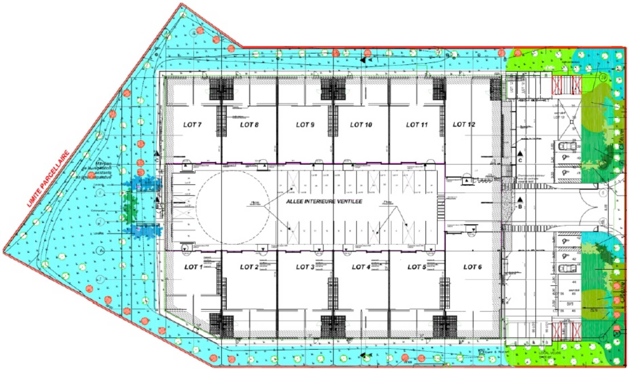
Entrepôt Palaiseau
Palaiseau (91120)
Loyer : 33 696 € / an
Surface 293 m²
Prestations du bien
- - Locaux restructurés très lumineux
- - Bâtiment clos et sécurisé
- - Façade vitrée avec porte sectionnelle d'accès véhicule par lot (plain-pied)
- - Isolation thermique et phonique
- - Bardage exterieur isolé double peau
- - VMC
- - Chauffage mixte (radiant gaz + electrique d'appoint)
- - Sol en dallage béton armé
- - Bureaux en mezzanine avec goulotte périphérique
- - Sanitaires privatifs
- - Fibre optique
- - 3 places de parkings intérieurs par lot
- - 1 parking extérieur par lot
- - Emplacement pour bennes
- - Restauration à proximité
Informations financières
- Charges minimales : 3 223 €
- Bail : Commercial 3/6/9 ans
- Taxe foncière : 6 579 €
- Dépôt de garantie : 3 mois de loyer HT/HC
Ce local professionnel vous est présenté par
Vous souhaitez nous joindre ?
Localisation et accessibilité
- Bus: - RER : Ligne B et C Station ' Palaiseau '
- A 7min en vélo de la gare RER & TGV
' Massy Palaiseau '
- BUS : DM12/DM153 à 5 mi - Autoroute: Accès routiers :
- A 18 Kms de la porte d'Orléans
- Proximité A10 / A6 / N118
| LOTS | Activités | Bureaux | Surface globale |
| Lot 4 | 218.1 m² | 74.8 m² | 292,9 m² |





































