Ref : 13_001956_SV
Location Local commercial
LOCAL COMMERCIAL A VENDRE OU A LOUER
Éguilles (13510)
Loyer : 42 000 € / an
Surface 225 m²
Description du bien
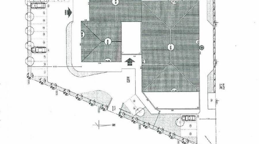
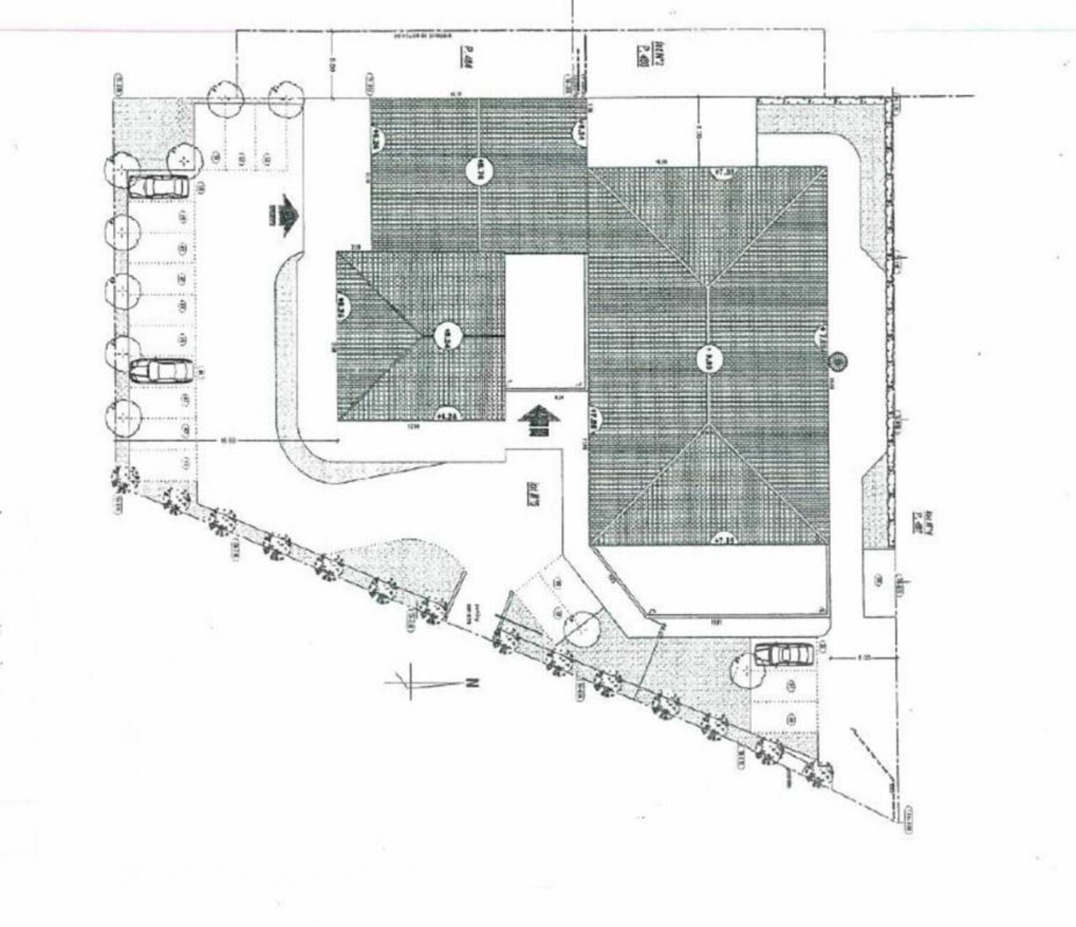
Nouvelle Exclusivité : SVRE vous propose à la location, avec une belle visibilité commerciale à l'une des entrées/sorties de la ZI des Jalassières, un local commercial de 225 m² (Loi Carrez) pour une surface au sol totale de 279 m² associé à 4 places de parking en souterrain. Cet espace commercial dispose d'une double vitrine, et double accès pour plus de 9 m linéaires et de l'usage privatif d'une grande terrasse extérieure de 50 m² environ exposée plein sud.
Le local est loué totalement nu ne recevant comme équipement, que des sanitaires aux normes.
Ce local commercial est également disponible à la vente.
Prestations du bien
- Accès PMR
- Linéaire vitrine : 9 m
- Nbre Parkings sous-sol : 4
- Parking Extérieur
- Rez-de-chaussée
- Rideau motorisé
- Terrasse
Informations financières
- Charges minimales : À définir
- Bail : Commercial 3/6/9 ans
- Taxe foncière : 4 502 € / an charge preneur
- Dépôt de garantie : 3 mois de loyer HT/HC
Ce local professionnel vous est présenté par
Vous souhaitez nous joindre ?
Localisation et accessibilité
- Autoroute: Axes autoroutiers à proximité : A8 , D10 et D7N
Ces biens pourraient vous intéresser
| Bat / Etage | Type | Surface | Prix | Prix /m2 | Disponibilité |
| RDC | Local commercial | 225 | |||
| sous-sol | Parking | 4 |



























