Ref : 1436291-0L_MA
Location Local commercial
À LOUER - Local commercial 120 m² - LYON 5
Lyon (69005)
Loyer : 10 008 € / an
Surface 116 m²
Divisible dès 51 m²
Description du bien
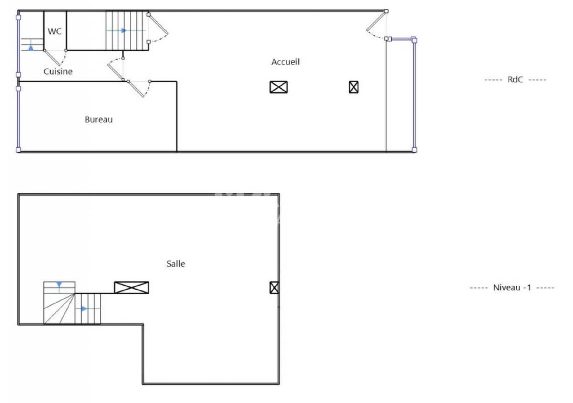
MALSH Realty vous propose à la location, un local commercial d'une surface totale de 120 m² situé à Lyon 5e. Il se compose d'un sous-sol de 65 m² environ et d'un RDC de 55 m² avec accès direct. Le local bénéficie d'un volet roulant pour la sécurité . Espace fonctionnel, idéal pour tout type d'activité commerciale. Situé dans un secteur dynamique de l'ouest lyonnais.
Prestations du bien
- Volet roulant
- Chauffage individuel électrique
- Eau chaude : cumulus
- Sous sol : 55 m²
Informations financières
- Charges minimales : 108 €
- Bail : commercial 3-6-9 ans
- Taxe foncière : 1 431 € / an charge preneur
- Dépôt de garantie : 3 mois de loyer HT/HC
Ce local professionnel vous est présenté par
Vous souhaitez nous joindre ?
Surfaces des locaux
| Étage | Bâtiment | Type | Surfaces | Disponibilité | Loyer | Charges | Honoraires | Fiscal | Bail | Révision annuelle | Prix | Charges | Honoraires | Fiscal | Paiement Loyer | lot | Coworking | |
|---|---|---|---|---|---|---|---|---|---|---|---|---|---|---|---|---|---|---|
| RDC | Locaux Commerciaux | 65 | 30% HT du loyer annuel HT à la charge du preneur, payables à la signature du bail | Non soumis à la T.V.A. | ILC Indice des Loyers Commerciaux | Trimestriel d'avance | ||||||||||||
| Total Cellule | Locaux Commerciaux | 65 | Immédiate | 153,85 HT/HC/m²/an | 1 300 /an | 30% HT du loyer annuel HT à la charge du preneur, payables à la signature du bail | Non soumis à la T.V.A. | commercial 3-6-9 ans | ILC Indice des Loyers Commerciaux | Trimestriel d'avance | ||||||||
| Sous-Sol | Locaux Commerciaux | 51,56 | 30% HT du loyer annuel HT à la charge du preneur, payables à la signature du bail | Non soumis à la T.V.A. | ILC Indice des Loyers Commerciaux | Trimestriel d'avance | ||||||||||||
| Total | 116,56 m² |
Localisation et accessibilité
- Bus: Lignes C21, 45, 46 et 90
- SCNF: Gare de Vaise et Gare Perrache à 10 min
| Étage | Bâtiment | Type | Surfaces | Disponibilité | Loyer | Charges | Honoraires | Fiscal | Bail | Révision annuelle | Prix | Charges | Honoraires | Fiscal | Paiement Loyer | lot | Coworking | |
|---|---|---|---|---|---|---|---|---|---|---|---|---|---|---|---|---|---|---|
| RDC | Locaux Commerciaux | 65 | 30% HT du loyer annuel HT à la charge du preneur, payables à la signature du bail | Non soumis à la T.V.A. | ILC Indice des Loyers Commerciaux | Trimestriel d'avance | ||||||||||||
| Total Cellule | Locaux Commerciaux | 65 | Immédiate | 153,85 HT/HC/m²/an | 1 300 /an | 30% HT du loyer annuel HT à la charge du preneur, payables à la signature du bail | Non soumis à la T.V.A. | commercial 3-6-9 ans | ILC Indice des Loyers Commerciaux | Trimestriel d'avance | ||||||||
| Sous-Sol | Locaux Commerciaux | 51,56 | 30% HT du loyer annuel HT à la charge du preneur, payables à la signature du bail | Non soumis à la T.V.A. | ILC Indice des Loyers Commerciaux | Trimestriel d'avance | ||||||||||||
| Total | 116,56 m² |







































