Ref : 2014291-0L_MA
Location Local commercial
À LOUER - Local commercial 100 m² - LYON 6
Lyon (69006)
Loyer : 20 004 € / an
Surface 100 m²
Description du bien
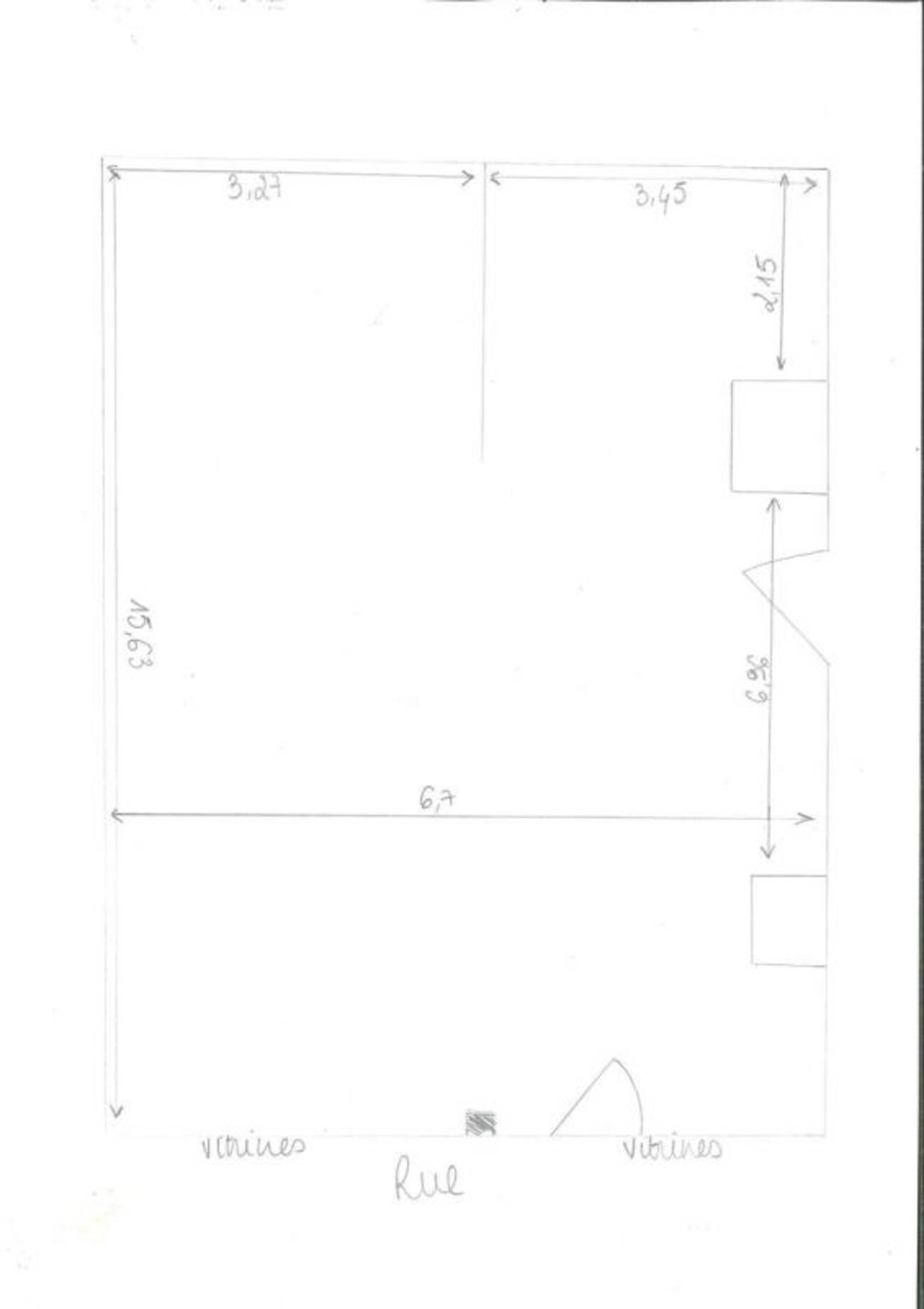
Nous vous proposons à la location un local commercial en rez-de-chaussée d'environ 100 m², idéalement situé dans le 6ème arrondissement de Lyon, à proximité du secteur Foch, apprécié pour son dynamisme et sa desserte. Il se compose d'une grande pièce magasin lumineuse, éclairée par deux vitrines sur rue protégées par un rideau métallique électrique, offrant une bonne visibilité et une sécurité renforcée
Prestations du bien
- Rideau de fer électrique
- 2 pièces en arrière boutique
- WC
- Sanitaires intérieurs
- Chauffage individuel au gaz
Informations financières
- Charges minimales : 83 €
- Bail : commercial 3-6-9 ans
- Taxe foncière : 1 400 € / an charge preneur
- Dépôt de garantie : 3 mois de loyer HT/HC
Ce local professionnel vous est présenté par
Vous souhaitez nous joindre ?
Surfaces des locaux
| Étage | Bâtiment | Type | Surfaces | Disponibilité | Loyer | Charges | Honoraires | Fiscal | Bail | Révision annuelle | Prix | Charges | Honoraires | Fiscal | Paiement Loyer | lot | Coworking | |
|---|---|---|---|---|---|---|---|---|---|---|---|---|---|---|---|---|---|---|
| RDC | Locaux Commerciaux | 100 | Immédiate | 200 HT/HC/m²/an | 1 000 HT/an | 30 % HT du loyer annuel HT/HC, à la charge du preneur, payables à la signature du bail | Non soumis à la T.V.A. | commercial 3-6-9 ans | ILC Indice des Loyers Commerciaux | Trimestriel d'avance | ||||||||
| Total | 100 m² |
Localisation et accessibilité
- Bus: Lignes TB11, C5, C13, C14, C23 et 27
- SCNF: Gare Part-Dieu à 10 min
| Étage | Bâtiment | Type | Surfaces | Disponibilité | Loyer | Charges | Honoraires | Fiscal | Bail | Révision annuelle | Prix | Charges | Honoraires | Fiscal | Paiement Loyer | lot | Coworking | |
|---|---|---|---|---|---|---|---|---|---|---|---|---|---|---|---|---|---|---|
| RDC | Locaux Commerciaux | 100 | Immédiate | 200 HT/HC/m²/an | 1 000 HT/an | 30 % HT du loyer annuel HT/HC, à la charge du preneur, payables à la signature du bail | Non soumis à la T.V.A. | commercial 3-6-9 ans | ILC Indice des Loyers Commerciaux | Trimestriel d'avance | ||||||||
| Total | 100 m² |




















