Ref : 1338043-0L_MA
Location Local commercial
Location Local commercial - Lyon 6ème (69006) - 237 m²
Lyon (69006)
Loyer : 42 900 € / an
Surface 237 m²
Description du bien
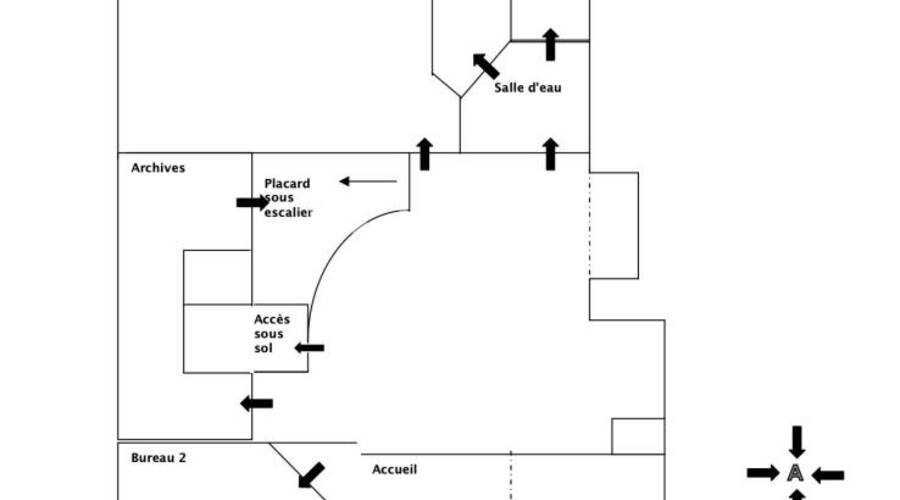
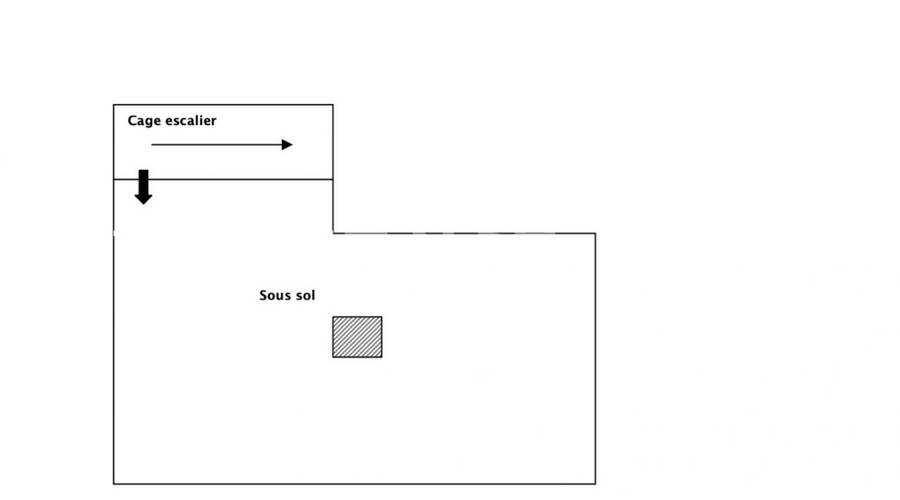
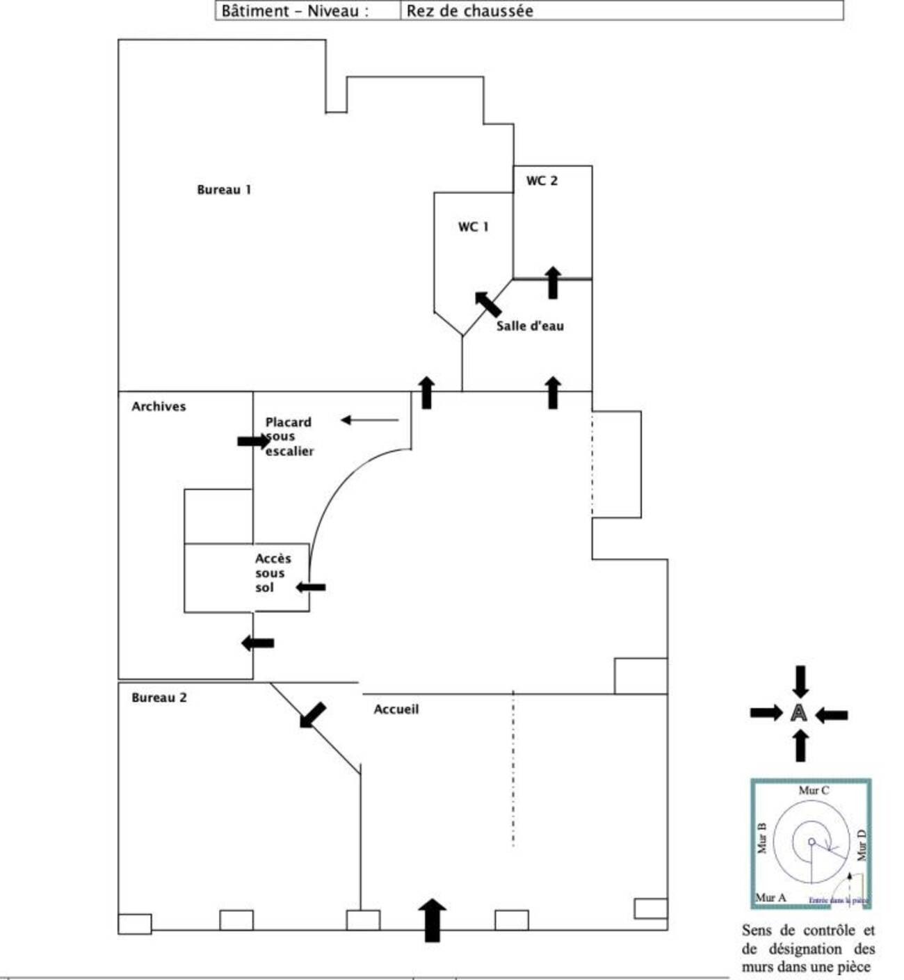
MALSH Realty & Property vous propose à la location au coeur du 6ème arrondissement de Lyon, un local commercial d'une surface totale d'environ 237 m² répartis sur 3 niveaux.
Disponible immédiatement !
Prestations du bien
- Sol en béton ciré
- Quatre vitrines
- Local traversant
- Sanitaire homme / femme
- Chauffage électrique
- Point d'eau
- Spot
- Escalier intérieur
Informations financières
- Charges minimales : 250 €
- Bail : commercial 3-6-9 ans
- Taxe foncière : 3 500 € / an charge preneur
- Dépôt de garantie : 3 mois de loyer HT/HC
Ce local professionnel vous est présenté par
Vous souhaitez nous joindre ?
Surfaces des locaux
| Étage | Bâtiment | Type | Surfaces | Disponibilité | Loyer | Charges | Honoraires | Fiscal | Bail | Révision annuelle | Prix | Charges | Honoraires | Fiscal | Paiement Loyer | lot | Coworking | |
|---|---|---|---|---|---|---|---|---|---|---|---|---|---|---|---|---|---|---|
| Sous-Sol | Stockage | 41,2 | 30 % HT du loyer annuel HT/HC, à la charge du preneur, payables à la signature du bail | T.V.A. (20%) | ILC Indice des Loyers Commerciaux | Trimestriel d'avance | ||||||||||||
| R+1 | Locaux Commerciaux | 87,28 | 30 % HT du loyer annuel HT/HC, à la charge du preneur, payables à la signature du bail | T.V.A. (20%) | ILC Indice des Loyers Commerciaux | Trimestriel d'avance | ||||||||||||
| RDC | Locaux Commerciaux | 108,97 | 30 % HT du loyer annuel HT/HC, à la charge du preneur, payables à la signature du bail | T.V.A. (20%) | ILC Indice des Loyers Commerciaux | Trimestriel d'avance | ||||||||||||
| Total Cellule 2 | Locaux Commerciaux | 237,45 | Immédiate | 192,97 HT/HC/m²/an | 3 000 HT/an | 30 % HT du loyer annuel HT/HC, à la charge du preneur, payables à la signature du bail | T.V.A. (20%) | commercial 3-6-9 ans | ILC Indice des Loyers Commerciaux | Trimestriel d'avance | 2 | |||||||
| Total | 237,45 m² |
Localisation et accessibilité
- Bus: Bus TCL lignes C3, C4, C5, C6, C9, C13, C14, 9, 27, 38, A32 et A71
- Metro: Métro ligne A station "Foch"
Ces biens pourraient vous intéresser
| Étage | Bâtiment | Type | Surfaces | Disponibilité | Loyer | Charges | Honoraires | Fiscal | Bail | Révision annuelle | Prix | Charges | Honoraires | Fiscal | Paiement Loyer | lot | Coworking | |
|---|---|---|---|---|---|---|---|---|---|---|---|---|---|---|---|---|---|---|
| Sous-Sol | Stockage | 41,2 | 30 % HT du loyer annuel HT/HC, à la charge du preneur, payables à la signature du bail | T.V.A. (20%) | ILC Indice des Loyers Commerciaux | Trimestriel d'avance | ||||||||||||
| R+1 | Locaux Commerciaux | 87,28 | 30 % HT du loyer annuel HT/HC, à la charge du preneur, payables à la signature du bail | T.V.A. (20%) | ILC Indice des Loyers Commerciaux | Trimestriel d'avance | ||||||||||||
| RDC | Locaux Commerciaux | 108,97 | 30 % HT du loyer annuel HT/HC, à la charge du preneur, payables à la signature du bail | T.V.A. (20%) | ILC Indice des Loyers Commerciaux | Trimestriel d'avance | ||||||||||||
| Total Cellule 2 | Locaux Commerciaux | 237,45 | Immédiate | 192,97 HT/HC/m²/an | 3 000 HT/an | 30 % HT du loyer annuel HT/HC, à la charge du preneur, payables à la signature du bail | T.V.A. (20%) | commercial 3-6-9 ans | ILC Indice des Loyers Commerciaux | Trimestriel d'avance | 2 | |||||||
| Total | 237,45 m² |

































