Ref : 1360113-0L_MA
Location Local commercial
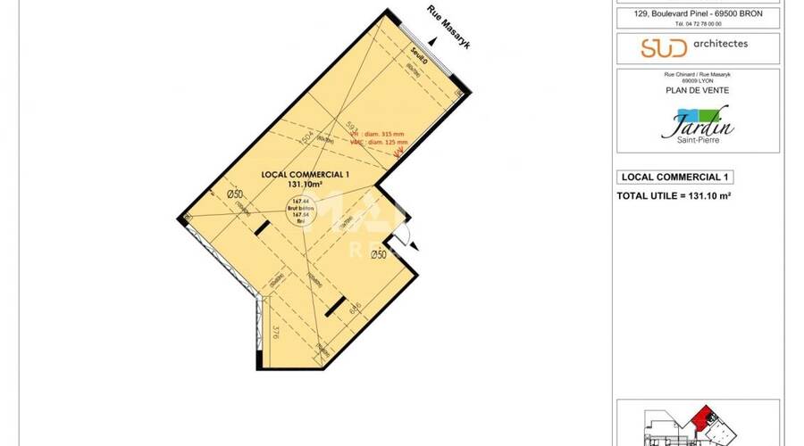
Location Local commercial - Lyon 9 (69009) - Vaise - 131 m²
Lyon (69009)
Loyer : 32 760 € / an
Surface 131 m²
Description du bien
MALSH Realty & Property vous propose à la location dans le secteur de Vaise à Lyon 9ème, un local commercial d'une surface totale d'environ 131 m². Ce local dispose d'une vitrine de 3 mètres linéaires.
Prestations du bien
- Brut de béton, fluides en attente
- Gaine de 350 VH & 125 VMC.
- Vitrine posée de 3 ml
- Flux piéton :Modéré
- Flux véhicules :Modéré
Informations financières
- Charges minimales : 185 €
- Bail : commercial 3-6-9 ans
- Dépôt de garantie : 3 mois de loyer HT/HC
Ce local professionnel vous est présenté par
Vous souhaitez nous joindre ?
Surfaces des locaux
| Étage | Bâtiment | Type | Surfaces | Disponibilité | Loyer | Charges | Honoraires | Fiscal | Bail | Révision annuelle | Prix | Charges | Honoraires | Fiscal | Paiement Loyer | lot | Coworking | |
|---|---|---|---|---|---|---|---|---|---|---|---|---|---|---|---|---|---|---|
| RDC | Locaux Commerciaux | 131 | Immédiate | 250 HT/HC/m²/an | 2 219 HT/an | 30 % HT du loyer annuel HT/HC, à la charge du preneur, payables à la signature du bail | T.V.A. (20%) | commercial 3-6-9 ans | ILC Indice des Loyers Commerciaux | Trimestriel d'avance | ||||||||
| Total | 131 m² |
Localisation et accessibilité
- Bus: Nombreuses lignes de bus TCL dont les lignes C6, C14, 2,31...
- SCNF: Gare Lyon Vaise à proximité immédiate
- Metro: Métro ligne D station "Gare de Vaise"
- Autoroute: A proximité immédiate du Bd Périphérique Nord et de l'autoroute A6
| Étage | Bâtiment | Type | Surfaces | Disponibilité | Loyer | Charges | Honoraires | Fiscal | Bail | Révision annuelle | Prix | Charges | Honoraires | Fiscal | Paiement Loyer | lot | Coworking | |
|---|---|---|---|---|---|---|---|---|---|---|---|---|---|---|---|---|---|---|
| RDC | Locaux Commerciaux | 131 | Immédiate | 250 HT/HC/m²/an | 2 219 HT/an | 30 % HT du loyer annuel HT/HC, à la charge du preneur, payables à la signature du bail | T.V.A. (20%) | commercial 3-6-9 ans | ILC Indice des Loyers Commerciaux | Trimestriel d'avance | ||||||||
| Total | 131 m² |

































