Ref : 1082781-0L_MA
Location Local commercial
Local commercial Lyon
Lyon (69009)
Loyer : 35 004 € / an
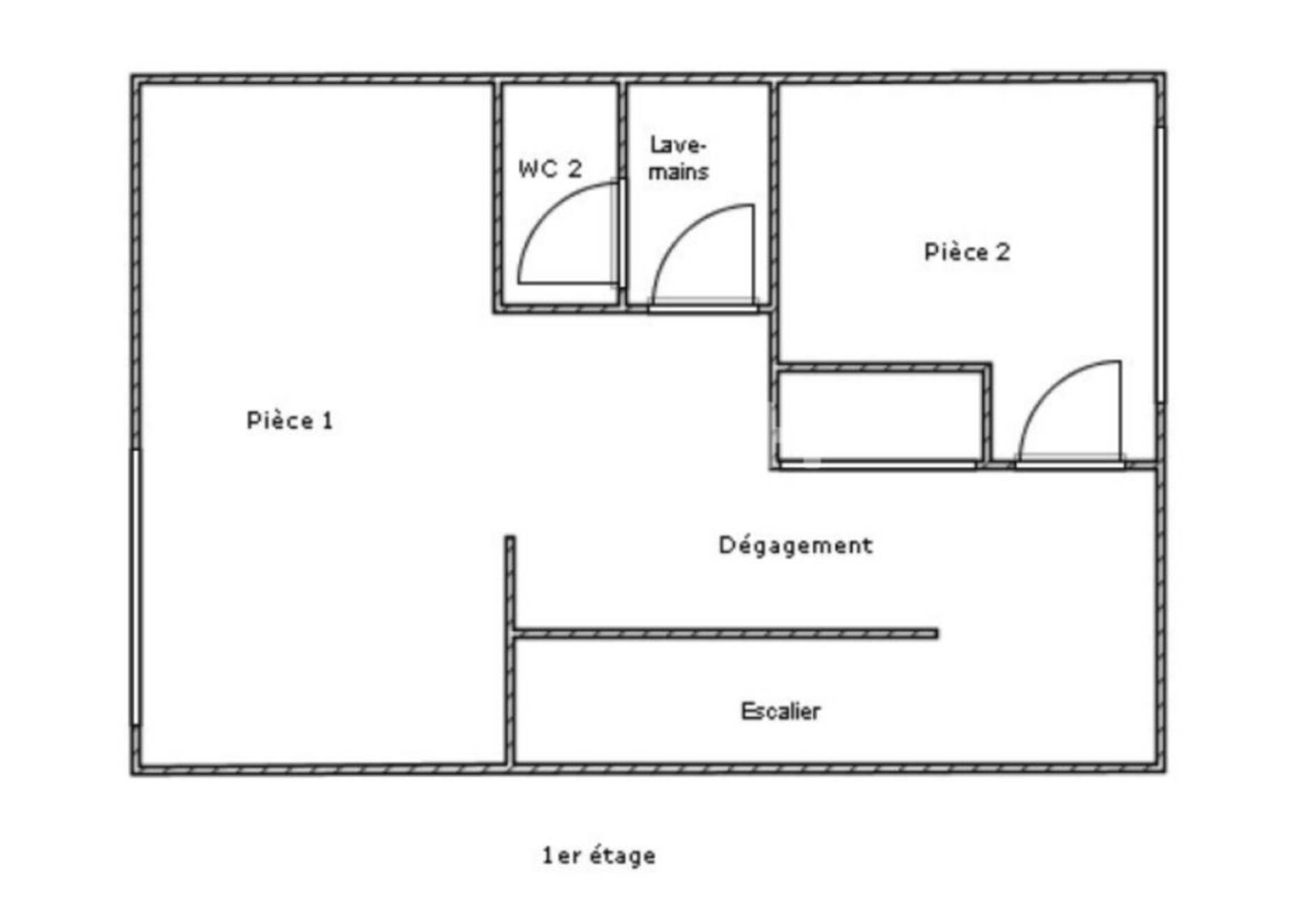
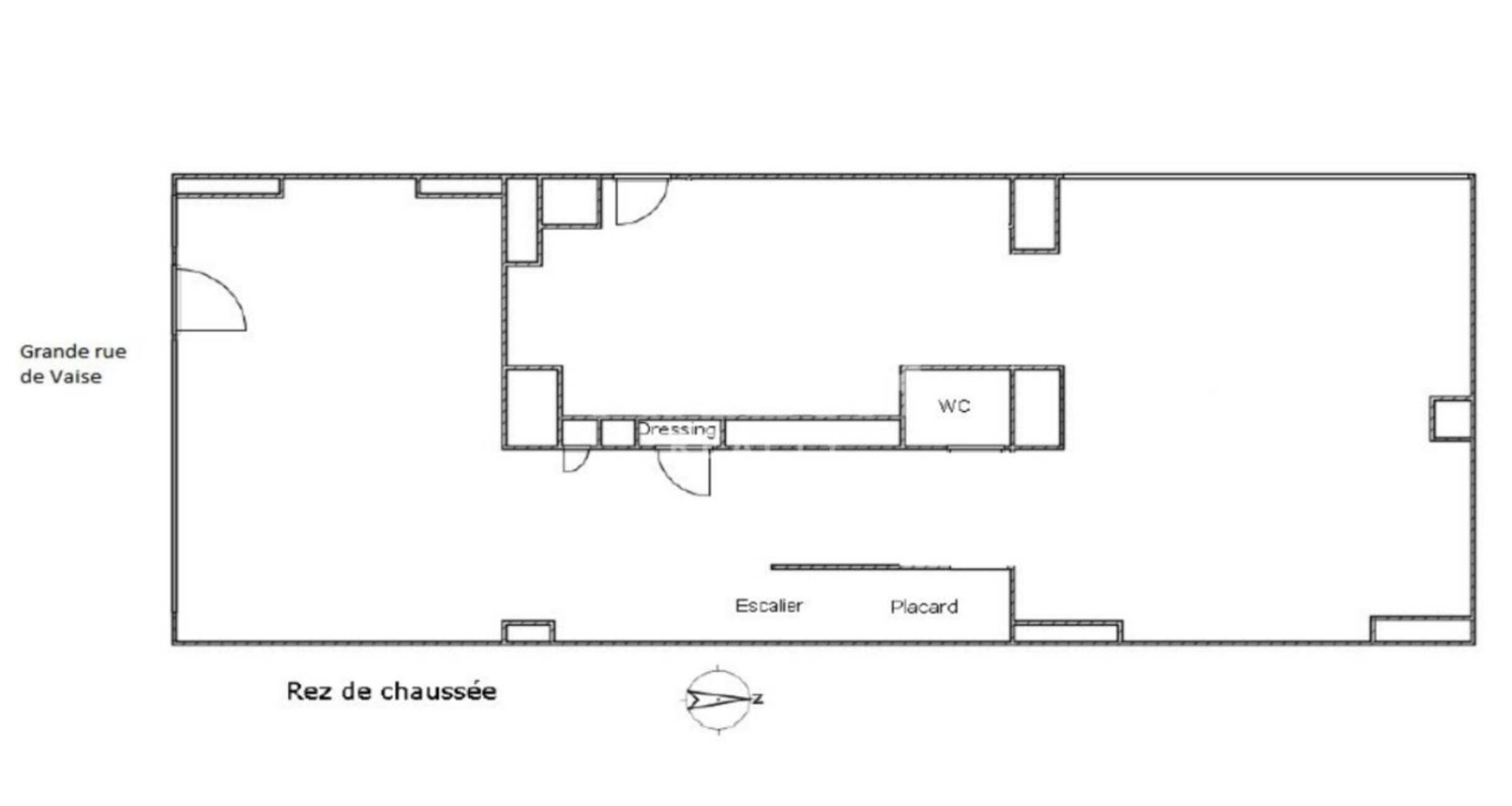
Surface 151 m²
Description du bien
MALSH Realty vous propose à la location un local commercial d'une surface totale d'environ 150 m², en parfait état, à Lyon 9. Ces locaux climatisés et lumineux sont situés sur un axe de passage, à proximité du métro Valmy. Toutes les activités sont autorisées, à l'exception de celles nécessitant une gaine d'extraction.
Prestations du bien
- Mezzanine
- Rideau métallique
- visibilité maximal
- Emplacement n°1
- A proximité d'enseignes
- Vitrines sur rue
- Surface RDC : 107 m²
Informations financières
- Charges minimales : 167 €
- Bail : commercial 3-6-9 ans
- Taxe foncière : 2 000 € / an charge preneur
- Dépôt de garantie : 3 mois de loyer HT/HC
Ce local professionnel vous est présenté par
Vous souhaitez nous joindre ?
Surfaces des locaux
| Étage | Bâtiment | Type | Surfaces | Disponibilité | Loyer | Charges | Honoraires | Fiscal | Bail | Révision annuelle | Prix | Charges | Honoraires | Fiscal | Paiement Loyer | lot | Coworking | |
|---|---|---|---|---|---|---|---|---|---|---|---|---|---|---|---|---|---|---|
| Mezzanine | 34 | 30% HT du loyer annuel HT à la charge du preneur, payables à la signature du bail | T.V.A. (20%) | ILC Indice des Loyers Commerciaux | Trimestriel d'avance | |||||||||||||
| Cave | 10 | 30% HT du loyer annuel HT à la charge du preneur, payables à la signature du bail | T.V.A. (20%) | ILC Indice des Loyers Commerciaux | Trimestriel d'avance | |||||||||||||
| RDC | Locaux Commerciaux | 107 | 30% HT du loyer annuel HT à la charge du preneur, payables à la signature du bail | T.V.A. (20%) | ILC Indice des Loyers Commerciaux | Trimestriel d'avance | ||||||||||||
| Total Cellule | Locaux Commerciaux | 151 | Immédiate | 231,79 HT/HC/m²/an | 2 000 /an HT | 30% HT du loyer annuel HT à la charge du preneur, payables à la signature du bail | T.V.A. (20%) | commercial 3-6-9 ans | ILC Indice des Loyers Commerciaux | Trimestriel d'avance | ||||||||
| Total | 151 m² |
Localisation et accessibilité
- Bus: Valmy (BUS-C6, BUS-C14, BUS-2, BUS-5, BUS-31, BUS-PL3), St-Pierre de Vaise (BUS-19, BUS-45, BUS-90), Pont Clémenceau (BUS-40)
- SCNF: Lyon-Vaise (France)
- Metro: Valmy (METRO-D)
Ces biens pourraient vous intéresser
| Étage | Bâtiment | Type | Surfaces | Disponibilité | Loyer | Charges | Honoraires | Fiscal | Bail | Révision annuelle | Prix | Charges | Honoraires | Fiscal | Paiement Loyer | lot | Coworking | |
|---|---|---|---|---|---|---|---|---|---|---|---|---|---|---|---|---|---|---|
| Mezzanine | 34 | 30% HT du loyer annuel HT à la charge du preneur, payables à la signature du bail | T.V.A. (20%) | ILC Indice des Loyers Commerciaux | Trimestriel d'avance | |||||||||||||
| Cave | 10 | 30% HT du loyer annuel HT à la charge du preneur, payables à la signature du bail | T.V.A. (20%) | ILC Indice des Loyers Commerciaux | Trimestriel d'avance | |||||||||||||
| RDC | Locaux Commerciaux | 107 | 30% HT du loyer annuel HT à la charge du preneur, payables à la signature du bail | T.V.A. (20%) | ILC Indice des Loyers Commerciaux | Trimestriel d'avance | ||||||||||||
| Total Cellule | Locaux Commerciaux | 151 | Immédiate | 231,79 HT/HC/m²/an | 2 000 /an HT | 30% HT du loyer annuel HT à la charge du preneur, payables à la signature du bail | T.V.A. (20%) | commercial 3-6-9 ans | ILC Indice des Loyers Commerciaux | Trimestriel d'avance | ||||||||
| Total | 151 m² |












































