Ref : 1130716-0L_MA
Location Local commercial
VILLEURBANNE - Grand local commercial de 191,82 m² - A LOUER
Villeurbanne (69100)
Loyer : 30 696 € / an
Surface 191 m²
Description du bien
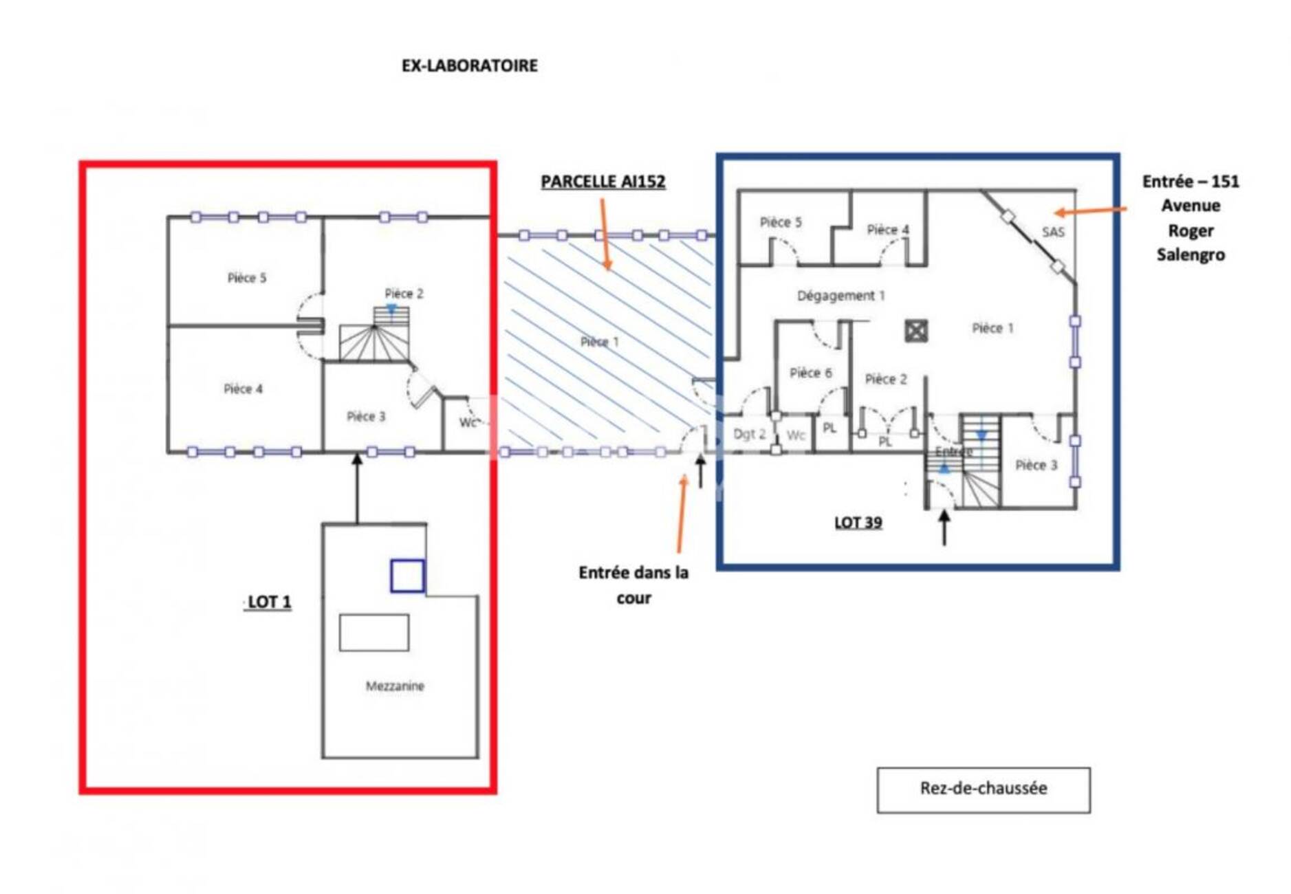
MALSH Realty & Property vous propose à la location sur l'avenue Roger Salengro à Villeurbanne un local commercial. La superficie de 191m² permettra d'installer confortablement votre boutique. Tout commerce sauf CHR et Alimentaire.
Prestations du bien
- - Faux plafonds
- - Luminaires encastrés
- - Carrelage
- - Chauffage individuel au gaz
- - Climatisation simple
- - Sanitaires privatifs
- - Vitré
- - Accès cour
- - Rideau électrique
- Surface RDC : 191,82 m²
Informations financières
- Charges minimales : 125 €
- Bail : commercial 3-6-9 ans
- Taxe foncière : 2 506 € / an charge preneur
- Dépôt de garantie : 3 mois de loyer HT/HC
Ce local professionnel vous est présenté par
Vous souhaitez nous joindre ?
Surfaces des locaux
| Étage | Bâtiment | Type | Surfaces | Disponibilité | Loyer | Charges | Honoraires | Fiscal | Bail | Révision annuelle | Prix | Charges | Honoraires | Fiscal | Paiement Loyer | lot | Coworking | |
|---|---|---|---|---|---|---|---|---|---|---|---|---|---|---|---|---|---|---|
| RDC | 1&39 | Locaux Commerciaux | 191,82 | 160 HT/HC/m²/an | 1 500 /an HT | 30 % HT du loyer annuel HT à la charge du preneur, payables à la signature du bail | T.V.A. (20%) | commercial 3-6-9 ans | ILC Indice des Loyers Commerciaux | Trimestriel d'avance | 1&39 | |||||||
| Total | 191,82 m² |
Localisation et accessibilité
- Bus: Place Croix-Luizet (BUS-C17, BUS-C26, BUS-37, BUS-69), INSA - Einstein (BUS-PL1)
- Tramway: Croix-Luizet (TRAMWAY-T1), La Doua - Gaston Berger (TRAMWAY-T4)
| Étage | Bâtiment | Type | Surfaces | Disponibilité | Loyer | Charges | Honoraires | Fiscal | Bail | Révision annuelle | Prix | Charges | Honoraires | Fiscal | Paiement Loyer | lot | Coworking | |
|---|---|---|---|---|---|---|---|---|---|---|---|---|---|---|---|---|---|---|
| RDC | 1&39 | Locaux Commerciaux | 191,82 | 160 HT/HC/m²/an | 1 500 /an HT | 30 % HT du loyer annuel HT à la charge du preneur, payables à la signature du bail | T.V.A. (20%) | commercial 3-6-9 ans | ILC Indice des Loyers Commerciaux | Trimestriel d'avance | 1&39 | |||||||
| Total | 191,82 m² |

































