Ref : 13_002118_SV
Location Local commercial
LOCAL COMMERCIAL A LOUER
Vitrolles (13127)
Loyer : 40 008 € / an
Surface 181 m²
Description du bien
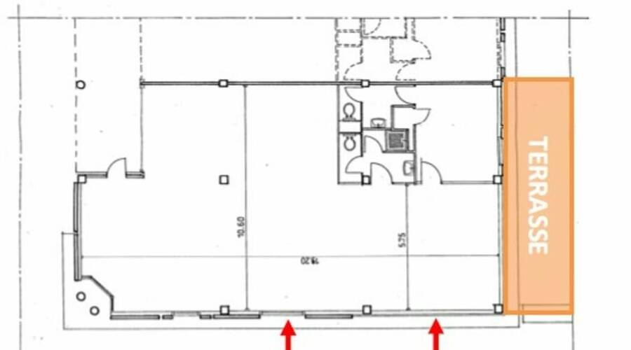
Au sein de l'Atrium, à proximité immédiate du Nouveau Lidl de la ZI des Estroublans, SVRE vous propose à la location un local commercial ERP5 de 181m² en RDC avec Terrasse extérieure.
Cet ancien restaurant pouvant être utilisé dans une destination commerciale similaire ou autre activité commerciale autorisée au sein de la zone.
L'adjonction d'un autre lot commercial indépendant mais mitoyen de 100 m² est possible pour porter le ocal à un cumul de 281 m² avec terrasse.
Prestations du bien
- Portails automatiques / Interphone vidéo
- Une dizaine de cameras avec enregistrement et levé de doute 24/24.
- Alarme pour sécuriser les parties communes raccordée à une société de télésurveillance (CDTS)
- Façades et parties communes rénovées
- Ascenseurs PMR dans les deux halls
- 2 bornes de recharge véhicules électriques
- Fibre Optique
- Nettoyages des parties communes du lundi au vendredi (ONET) et entretien mensuel des espaces verts
Informations financières
- Charges minimales : 1 307 €
- Bail : Commercial 3/6/9 ans
- Taxe foncière : 2 360 € / an charge preneur
- Dépôt de garantie : 3 mois de loyer HT/HC
Ce local professionnel vous est présenté par
Vous souhaitez nous joindre ?
Localisation et accessibilité
- Bus: SNCF : gare de Marseille Saint-Charles à 25 min
Aéroport de Marseille-Provence à 5 min - Autoroute: Accès routiers : A55 à 5 minutes, A7 à 2 min, A8/A51 à 20 min, D9
. Echangeur Griffon
Ces biens pourraient vous intéresser
| Bat / Etage | Type | Surface | Prix | Prix /m2 | Disponibilité |
| RDC | Local commercial | 181 |


































