Ref : 2074227-0L_MA
Location Local d'activités
Location Bâtiment d'activités réhabilité équipé de 2 quais - Logistique dernier kilomètre - Caluire et Cuire (69300) - 8497 m²
Caluire-et-Cuire (69300)
Loyer : 1 019 640 € / an
Surface 8 497 m²
Description du bien
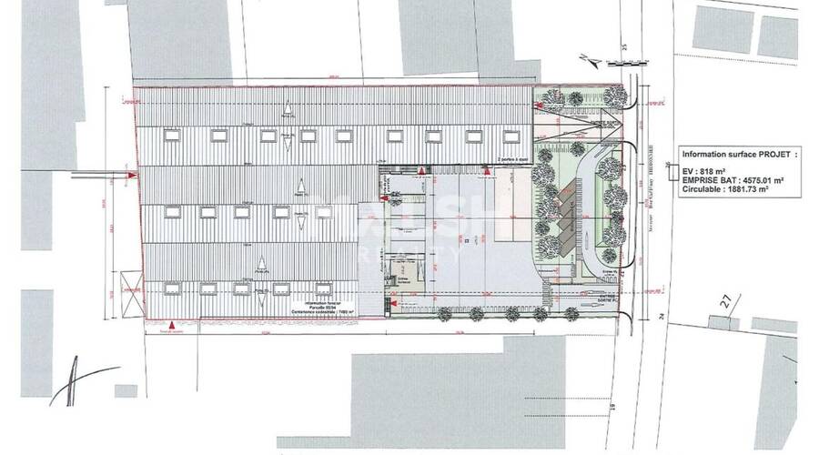
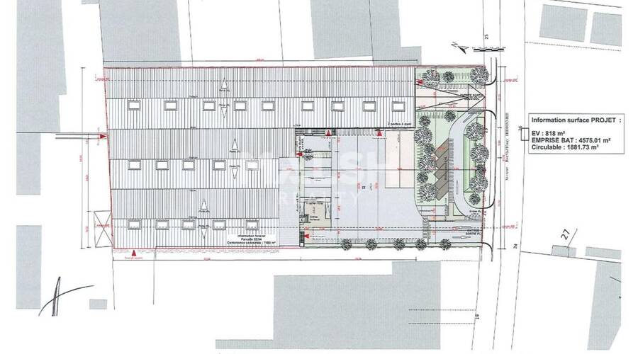
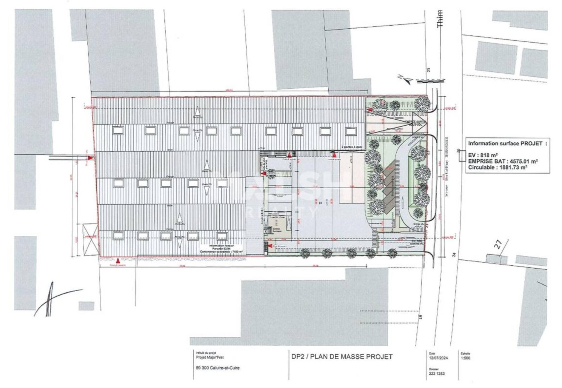
MALSH Realty vous propose à la location à Caluire-et-Cuire, sur un terrain indépendant de 7 490 m², un bâtiment d'activités réhabilité équipé de 2 quais d'une surface totale d'environ 8 497 m² comprenant 7960 m² d'activités et 537 m² de bureaux et locaux sociaux répartis sur 3 niveaux (RDC, R+1 et Sous-sol). Ce local bénéficie de 12 places de parking en sous-sol et 5 places de parking en extérieur. Idéal pour de la logistique du dernier kilomètre.
Disponible immédiatement !
Prestations du bien
- Destination : Logistique du dernier kilomètre
- Le bâtiment :
- - Entièrement rénové / RE 2020
- - Certification BREEAM Excellent
- - Charpente métallique / Isolation par l'extérieur
- - Panneaux photovoltaïque en toiture
- - Site sécurisé avec portail et barrière d'accès
- - Raccordé au chauffage urbain
- - Rampe sous-sol
- - Sous-sol semi-enterré
- - Stationnements : 5 places de parking extérieures + 12 places de parking en sous-sol
- L'activité :
- - Porte sectionnelle motorisée (3x3,5m)/ 2 portes à quai niveleurs (2,75x3m)
- - HSP au RDC : 4 m / HSP sous-sol : 2,95 m
- - Sol résine époxy
- - Chauffage aérotherme
- - 4 montes charges
- - Charges sous-sol : 2T/m² / Charges RDC : 1T/m²
- - Tarif jaune 250 KVA
- Les bureaux :
- - Livrés neufs à cloisonner : Moquette au sol, Faux plafond avec luminaires encastrés, Plinthes périphériques
- - Sanitaires, douches, cuisine
- - GBT
- Immeuble indépendant
- Surface terrain : 7490
Informations financières
- Bail : commercial 6-9 ans
- Dépôt de garantie : 3 mois de loyer HT/HC
Ce local professionnel vous est présenté par
Vous souhaitez nous joindre ?
Surfaces des locaux
| Étage | Bâtiment | Type | Surfaces | Disponibilité | Loyer | Charges | Honoraires | Fiscal | Bail | Révision annuelle | Prix | Charges | Honoraires | Fiscal | Paiement Loyer | lot | Coworking | |
|---|---|---|---|---|---|---|---|---|---|---|---|---|---|---|---|---|---|---|
| Sous-Sol | Activités | 3 860 | 15 % HT du loyer annuel HT/HC à la charge du preneur, payables à la signature du bail | T.V.A. (20%) | ILAT Indice des Loyers des Activités Tertiaires | Trimestriel d'avance | ||||||||||||
| RDC | Activités | 4 100 | 15 % HT du loyer annuel HT/HC à la charge du preneur, payables à la signature du bail | T.V.A. (20%) | ILAT Indice des Loyers des Activités Tertiaires | Trimestriel d'avance | ||||||||||||
| SS/RDC/R+1 | Bureaux | 537 | 15 % HT du loyer annuel HT/HC à la charge du preneur, payables à la signature du bail | T.V.A. (20%) | ILAT Indice des Loyers des Activités Tertiaires | Trimestriel d'avance | ||||||||||||
| Parkings | - | 15 % HT du loyer annuel HT/HC à la charge du preneur, payables à la signature du bail | T.V.A. (20%) | ILAT Indice des Loyers des Activités Tertiaires | Trimestriel d'avance | |||||||||||||
| Parkings | - | 15 % HT du loyer annuel HT/HC à la charge du preneur, payables à la signature du bail | T.V.A. (20%) | ILAT Indice des Loyers des Activités Tertiaires | Trimestriel d'avance | |||||||||||||
| Total Cellule | Activités | 8 497 | Immédiate | 120 HT/HC/m²/an | 15 % HT du loyer annuel HT/HC à la charge du preneur, payables à la signature du bail | T.V.A. (20%) | commercial 6-9 ans | ILAT Indice des Loyers des Activités Tertiaires | Trimestriel d'avance | |||||||||
| Total | 8 497 m² | |||||||||||||||||
| 12 en sous-sol 5 extérieur | ||||||||||||||||||
Localisation et accessibilité
- Bus: Bus TCL lignes C2, Zi4 et S5
- SCNF: Gare Lyon Part-Dieu à 20 min en voiture
| Étage | Bâtiment | Type | Surfaces | Disponibilité | Loyer | Charges | Honoraires | Fiscal | Bail | Révision annuelle | Prix | Charges | Honoraires | Fiscal | Paiement Loyer | lot | Coworking | |
|---|---|---|---|---|---|---|---|---|---|---|---|---|---|---|---|---|---|---|
| Sous-Sol | Activités | 3 860 | 15 % HT du loyer annuel HT/HC à la charge du preneur, payables à la signature du bail | T.V.A. (20%) | ILAT Indice des Loyers des Activités Tertiaires | Trimestriel d'avance | ||||||||||||
| RDC | Activités | 4 100 | 15 % HT du loyer annuel HT/HC à la charge du preneur, payables à la signature du bail | T.V.A. (20%) | ILAT Indice des Loyers des Activités Tertiaires | Trimestriel d'avance | ||||||||||||
| SS/RDC/R+1 | Bureaux | 537 | 15 % HT du loyer annuel HT/HC à la charge du preneur, payables à la signature du bail | T.V.A. (20%) | ILAT Indice des Loyers des Activités Tertiaires | Trimestriel d'avance | ||||||||||||
| Parkings | - | 15 % HT du loyer annuel HT/HC à la charge du preneur, payables à la signature du bail | T.V.A. (20%) | ILAT Indice des Loyers des Activités Tertiaires | Trimestriel d'avance | |||||||||||||
| Parkings | - | 15 % HT du loyer annuel HT/HC à la charge du preneur, payables à la signature du bail | T.V.A. (20%) | ILAT Indice des Loyers des Activités Tertiaires | Trimestriel d'avance | |||||||||||||
| Total Cellule | Activités | 8 497 | Immédiate | 120 HT/HC/m²/an | 15 % HT du loyer annuel HT/HC à la charge du preneur, payables à la signature du bail | T.V.A. (20%) | commercial 6-9 ans | ILAT Indice des Loyers des Activités Tertiaires | Trimestriel d'avance | |||||||||
| Total | 8 497 m² | |||||||||||||||||
| 12 en sous-sol 5 extérieur | ||||||||||||||||||












































